Zgrada MBM 23 u Pančevu: Erkeri na fasadi kao interpretacija vojvođanskog kibic fenstera
Projekat koji teži da svaki detalj na objektu bude specifičan uspostavlja dijalog i pronalazi sklad između savremene arhitekture i arhitekture ranijih epoha.
Višeporodična stambena zgrada MBM 23 u Pančevu jedan je od onih objekata čiji je investitor ujedno i arhitekta, odnosno njen projektant, a to je u ovom slučaju lokalna arhitektonska firma ARH Collection d.o.o. osnovana 2018. godine sa temeljima u savremenoj arhitekturi.
Zgrada zauzima površinu od 1.367 kvadratnih metara, spratnost joj je P+2+Ps, a projektovao ju je 2021. godine Dušan Ogrizović, mia, koji za Gradnju kaže da, s obzirom na gore navedenu okolnost, nije bilo teško doneti pravu odluku i postaviti projektni zadatak.
Pročitajte još na Gradnja.rs:
- Novi momenat u Hilandarskoj: Zgrada s fasadom od kompozitnog betona
- Isprogramiraj mi fasadu: Ovaj startap iz Pančeva projektuje fasadne omotače uz pomoć AI

Specifičnost svakog detalja
Na početku razgovora, pančevački arhitekta navodi da je svaki objekat specifičan sam po sebi, kako zbog zakonske regulative koja ga određuje, tako i zbog oblika parcele, odnosno, konteksta u kom će se nalaziti i koncepta koji će baš njega definisati.
„Ali, ako bi nešto posebno trebalo izdvojiti, na nivou mikroambijenta (ulice) i makroambijenta (grada), onda bi to bili materijali koji su primenjivani u izradi fasade i principi na kojima su bazirani penthaus stanovi, kao i težnja da svaki detalj na objektu bude specifičan – ručni rad“, kaže Ogrizović.

Projektovanje je podrazumevalo pažljivo raščlanjivanje elemenata i razumevanje postojećih slojeva ambijenta.
Višeporodični objekat MBM 23 u Pančevu projektovan je u mikroambijentu sa izraženim lokalnim karakterom i tradicijom, što je podrazumevalo pažljivo raščlanjivanje elemenata i razumevanje postojećih slojeva tog ambijenta.
„Dekodiranje konteksta, odnosno uspostavljanje dijaloga i pronalaženje sklada između savremene arhitekture i arhitekture prethodnih epoha, te interpretacija tradicionalnih elementa i materijala, u duhu savremenog izražavanja, bila je premisa projekta“, kaže naš sagovornik.

Erkeri kao kibic fensteri
Kako dodaje Ogrizović, na fasadi zgrade MBM 23 se jasno mogu iščitati dva osnovna elementa.
Prvi su erkeri kao interpretacija vojvođanskog kibic fenstera, čiji su elementi prozori i otvori lođa ujednačenih proporcija, i koji su na nivou funkcije koncipirani kao protočna struktura između dnevnih i spavaćih zona unutar stanova.
Oblaganje fasade kamenim pločama utkalo je koloritno i materijalizacijom objekat u mikroambijent, te jasno naglasilo volumetriju istog.
Drugi je ulaz, kao psihološki element i element koji spaja homogeno i heterogeno područje, a u isto vreme svojom pojavnošću predstavlja element iskušenja.
„Oblaganje fasade kamenim pločama, utkalo je koloritno i materijalizacijom objekat u mikroambijent, te jasno naglasilo volumetriju istog, dok je obloga prizemlja drvenom zavesom objedinila elemente svih ulaza, sa namerom da zaintrigira posmatrača svojom pojavnošću“, objašnjava arhitekta.

Travertin ploče u dimenzijama prilagođenim fasadi
Kada je reč o materijalizaciji, objekat je projektovan kao armirano-betonski skeletni sistem, u kombinaciji sa tradicionalnim elementima – termoblokom i opekom.
„Sendvič zidovi između stanova, izgrađeni su sistemom opeka-kamena vuna-opeka, i dali su sjajne rezultate kada su u pitanju i termička i akustična svojstva“, navodi Ogrizović.
Fasada je izgrađena od kamene vune koje je armirana i zatim malterisana, a kao završna obrada su se ostavljale/ankerisale travertin ploče debljine 20 mm proizvedene u dimenzijama prilagođenim ovoj fasadi, odnosno, neki delovi su izvedeni kao demit fasada – preko kamene vune i lepka se nanosila silikatno silikonska fasada.
Prizemlje objekta je izgrađeno od sibirskog ariša na potkonstrukciji.

Važnost prijemčivosti projekta
Kada ste u isto vreme i projektant i investitor, Ogrizović kaže da morate voditi računa o dva detalja.
„Ne smete izaći iz zone komfora i narušiti arhitekturu, odnosno mikroambijent u kome se nalazi objekat zarad profita, a u isto vreme morate osetiti i potrebu krajnjeg korisnika i tako mu na najbolji način prezentovati kvalitet onog što nudite i predstaviti mu projekat prijemčivim“ – navodi on.
Kada proizvodite kvalitetnu arhitekturu, ne postoji bolji agent prodaje u takvim okolnostima od samog projektanta.
Kada se ispune oba ova kriterijuma, kako dodaje, dobijate kvalitetnu arhitekturu, a korisnik prostora (stanar) biva izuzetno zadovoljan ambijentom u kome živi.
„Pritom, kada proizvodite kvalitetnu arhitekturu, ne postoji bolji agent prodaje u takvim okolnostima od samog projektanta“, smatra naš sagovornik.

U stanovima su jasno odvojene dnevne i spavaće zone, dok su penthausi organizovani oko centralnih kuhinja.
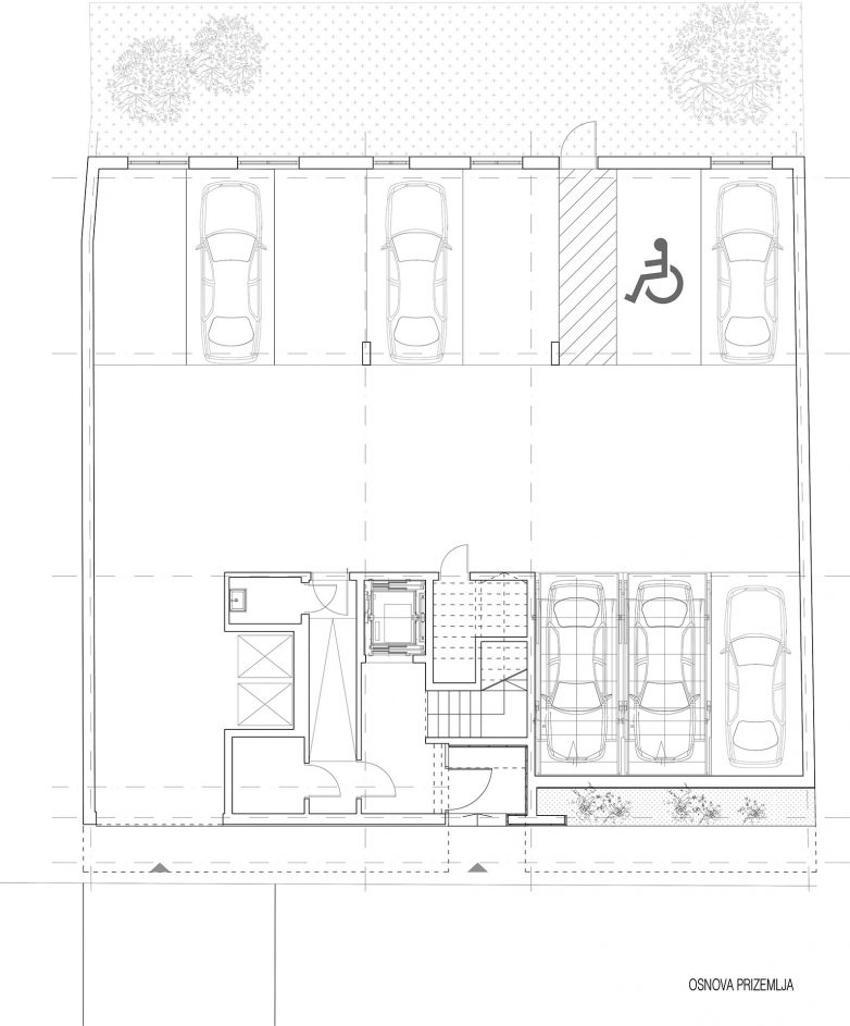
Objekat je projektovan kao višeporodični stambeni objekat, a sastoji se od 12 stanova i 12 garažnih mesta. Garažna mesta su smeštena u prizemlju objekta, dok je na spratovima raspoređeno 12 stanova.
Projektovano je pet na stanova na tipskoj etaži i dva penthausa na povučenom spratu. U stanovima su jasno odvojene dnevne i spavaće zone, dok su penthausi organizovani oko centralnih kuhinja. Objekat poseduje i zadnju baštu namenjenu stanarima zgrade.

Težnja ka skulpturalnosti prostora
U enterijeru zajedničkih prostorija (komunikacija) dominiraju drvene obloge zidova koje u jednom momentu postaju ograde stepenica, čime se težilo postizanju skulpturalnosti prostora.
Završne obrade podova su izvedene u granitnom teracu.

Grafički prilozi
Faktografija
MBM 23
Pančevo
ARH Collection d.o.o,
ARH Collection d.o.o. (Dušan Ogrizović, mia)
2021.
2021–2022.
1.367 m2
P+2+Ps


Objekat van konteksta je simpatičan, detalji jako lepo osmišljeni i realizovani. Ali molim vas, kakvo crno poredjenje erkera i kibic fenstera? Arhitektonski potpuno van konteksta ušorenih vojvođanskih ulica, sa erkerom koji prelazi preko viševekovne regulacije. Ovim ne kritikujem samog arhitektu, već urbaniste.
Ne znam samo kako je prošao urbanistički projekat i kako je dobio Lokacijske uslove kad prema PGR-u nije dozvoljeno da erkeri zauzimaju više od 50% fasade iznad prizemlja. Čini mi se da ni neke dimenzije u stanovima nisu u skladu sa Pravilnikom. Ovo je propust gradske uprave i komisije za planove koja traži dlaku u jajetu i odbacuju projekte zbog gluposti samo pojedincima.
Sve je tačno.
Nažalost, sve više dizajna, a sve manje arhitekture …
Kupatila i kuhinje bez prirodne ventilacije (i svetla). Stanovi naspram stepeništa „isilovani“ … dnevne sobe nedopustivo uske …
Džaba vam pismeni detalji kad vam je funkcija na poslednjem mestu.
Za kibic fenster se slažem, nema veze ovo sa tim, ali mora neki zvučan naslov da se napiše tako da ne vidim problem.
Što se tiče objekta – više nego pismeno, veoma dopadljivo, daleko smo mi kao društvo od toga da ovakve objekte smatramo nedovoljno dobrima.
Jesu malo neke širine prostorija nategnute, ali ništa preterano. Nedostatak prirodne ventilacije jeste nepoželjan ali nije protiv pravilnika. Što se tiče erkera i zauzetosti iznad prizemlja – tu treba vrlo dobro biti informisan o tome kako se računa zauzetost i onda će neke stvari postati malo jasnije. Ne kažem zasigurno da ovde nije bilo prekoračenja, ali moje je mišljenje da taj uslov treba da postoji da bi doneo dinamiku na fasadama i da ne bi svi zauzimali 100% fasade sa erkerima a ne da bi se gledalo lupom da li neko ima 52% ili 62% ako je to lepo uklopljeno, a ovde se ne može osporiti estetika.
Znači malo poštujete pravilnike, a malo ne, kako Vam odgovara?
Iako su nažalost dozvoljeni pravilnicima, jednostrani preduboki stanovi su sve samo ne funkcionalni i zdravi prostori za život sa veštačkom ventilacijom i manjkom prirodnog svetla. Svima nam je jasno zašto je to tako… ili možda nekima i nije pa to podržavaju, ali time samo bivaju loše arhitekte.
Šta biste Vi uradili na predmetnoj parceli?
Kupujte dok se ne razgrabi.