Planirani objekat u Ulici Cara Dušana u Zemunu; Vizuelizacija: Fer gradnja
Novi objekti

Stambeno-poslovna četvorospratnica od 2.100 kvadrata planirana u Zemunu

Investitor „Fer gradnja“ planira izgradnju objekta sa 12 stambenih jedinica, jednim lokalom i 17 parking mesta projektovanih u podzemnoj garaži i dvorištu.

U Ulici Cara Dušana u Zemunu uskoro bi mogao da nikne još jedan stambeno-poslovni objekat, čija je izgradnja ove nedelje prezentovana javnosti u vidu urbanističkog projekta.

Nosilac izrade i obrađivač projekta je „Fer gradnja” iz Zemuna, koja je zahtev za potvrđivanje podnela u svoje ime kao investitor, dok je odgovorni urbanista i odgovorni projektant arhitekture Said Talić, dia.

Pročitajte još na Gradnja.rs:

Postojeće stanje

Parcela od 968 kvadrata

Lokacija koja zahvata katastarsku parcelu površine od 968 m2 nalazi se u GO Zemun, u bloku između ulica Cara Dušana, Niške i Banatske, na adresi Cara Dušana 191-193.

Neposredno okruženje čine individualni stambeni objekti spratnosti od P+0 do P+Pk, a na parceli postoje više prizemnih objekta, koje pre početka gradnje treba ukloniti, navodi se u dokumentaciji.

Planirano stanje

Projektovano 12 stanova i jedan lokal

Na predmetnoj lokaciji projektovan stambeno-poslovni objekat spratnosti Po+P+3+Ps i ukupne BGRP 2.126 m2, od čega na nadzemno otpada 1.695 m2, a na podzemno preostalih 431 m2.

Što se tiče funkcionalnih jedinica, u objektu su projektovani jedan lokal, 12 stanova i jedna jednoetažna garaža sa 10 parking mesta. U dvorištu objekta obezbeđeno je još 7 parking mesta.

Objekat ima spratnost Po+P+3+Ps; Vizuelizacija: Fer gradnja

Tri stana po etaži

Objekat ima 4 stambene etaže (I, II, III i Ps) sa ukupno 12 stambenih jedinica različitih struktura i površina, od kojih se na svakoj etaži nalaze po 3 stana.

Slobodne i zelene površine parcele usklađene su sa pravilima građenja PGR.

Kolski i pešački pristup ostvaruje se preko postojeće saobraćajnice u Ulici Cara Dušana; Vizuelizacija: Fer gradnja

Primedbe i sugestije najkasnije do 8. marta

Zainteresovana lica mogu tokom javne prezentacije da izvrše uvid u Urbanistički projekat, kao i da svoje primedbe i sugestije dostave najkasnije do 8. marta 2023. godine.

Grafički prilozi

Situacija sa osnovom prizemlja
Situacija sa osnovom prizemlja
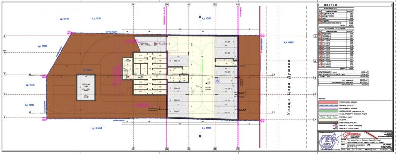
Osnova podruma
Osnova podruma
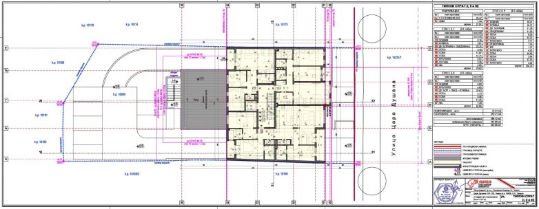
Osnova tipskog sprata (I, II i III)
Osnova tipskog sprata (I, II i III)
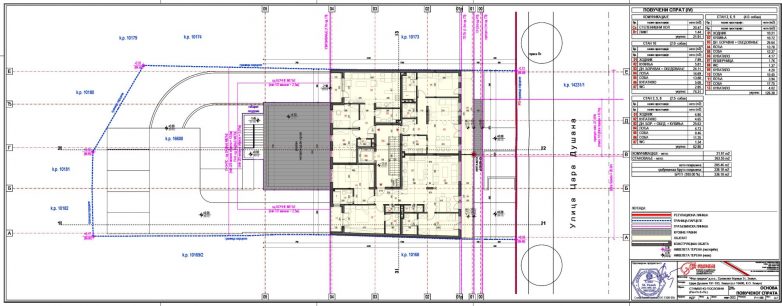
Osnova povučenog sprata
Osnova povučenog sprata
Presek 1-1
Presek 1-1
Presek 2-2
Presek 2-2

Izabrali smo za vas...

Postani deo Gradnja zajednice

Najnovije vesti s našeg portala svakog petka u vašem sandučetu.

Dizajn enterijera

Srodni tekstovi

Ostavite odgovor

Obavezna polja *