Bau 2025: Modularna kuća od opeke za one koji žele dom u kratkom roku ali od čvrstog materijala
Potpuno montažni moduli dolaze na mesto ugradnje sa svim električnim i sanitarnim priključcima, podom, unutrašnjim zidovima i kuhinjom… ali cena naravno nije baš mala.
Ne verujete u montažne kuće od drveta? Ipak želite kuću od opeke ali ne želite da čekate godinu dana kao i da se bavite organizacijom majstora? Upravo vam se obraća kompanija WMM Modulbau.
Naime, među brojnim izlagačima modularnih kuća na sajmu BAU 2025 u Minhenu upoznali smo se i sa inovativnim sistemom koji nudi ova nemačka kompanija specijalizovana za proizvodnju i izgradnju skalabilnih modularnih objekata od materijala kojeg nismo navikli da viđamo u brzoj gradnji – opeke.
WMM Modulbau pravi module koji se sastavljaju u fabrici i prevoze kamionom, te za 6 meseci možete imati kuću po sistemu „ključ u ruke“ za 2.900 evra po m².
Pročitajte još na Gradnja.rs:

LEGO princip
Potpuno montažni moduli dolaze sa svim električnim i sanitarnim priključcima, podom i zidovima. Sklapaju se lako, po principu LEGO kockica. Takođe, u fabrici su već postavljeni i parket, pločice i kuhinja, a svi moduli izrađeni su prema EnEv 40 standardu sa QNG sertifikatom.
Neke od glavnih prednosti ovog sistema gradnje su “niska potrošnja energije, čvrsta konstrukcija, prijatna unutrašnja klima i leti i zimi, kao i značajno bolja zvučna izolacija u poređenju sa drvenim modulima”, rekli su nam na sajmu Bau 2025 u Minhenu.
Spoljašnji zidovi od opeke su debljine 42,5 cm, dok su oni unutra od 17,5 centimetara.

Ovaj sistem gradnje ne zahteva skladištenje građevinskog materijala kao ni brojno ljudstvo na gradilištu.
Kratko vreme izgradnje omogućeno je zahvaljujući modularnoj prefabrikaciji u fabrici – gotovi moduli se isporučuju na već pripremljeno gradilište, odnosno na temelje koji ne ulaze u cenu. Ovaj sistem gradnje smanjuje prostorne i logističke zahteve na gradilištu, budući da ne zahteva skladištenje građevinskog materijala kao ni brojno ljudstvo na mestu ugradnje.
“U slučaju poplave, objekti se lako renoviraju za razliku od kuća od drvene konstrukcije”, tvrde iz kompanije koja je od 2020. godine proizvela preko 2.000 modula.

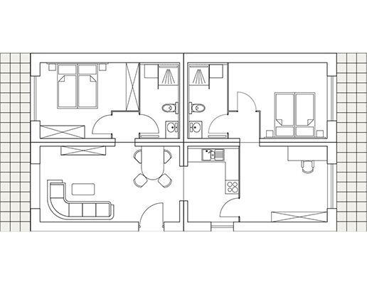
Pokazni stan od 50 kvadrata
Na štandu WMM Modulbau na minhenskom sajmu posetiocima je pružen uvid u model dvosobnog stana od 50 m², sastavljenog od dva modula ukupne težine od 66 tona.
Na korisniku je da odabere konfiguraciju modula spram njegovih potreba. Kuća je opremljena kuhinjom kao i svom potrebnom ugradnom tehnikom. Mali hodnik vodi do velikog kupatila i spavaće sobe.
Tuš kabina izvedena je od stakla debljine 10 mm i takođe je uključena u cenu.

Dodvoravanje kupcima
Izgradnja kuća od opeke je uobičajena za Nemačku ali gradnja modularnih objekata od ovog materijala baš i nije. Međutim, ova kompanija je uspela da pronađe način kako da se dodvori kupcima koji traže čvrst materijal za svoj objekat a pritom ga žele u kratkom roku.
Grafički prilozi







Izlijes temelj,ozidas to za 2 do 3 dana,odradis izolaciju i fasadu,stavis tisljeraj i krov po izboru,ubacis instalacije,keramiku i podove po zelji i eto ti kućice za 30 dana gotova za useljenje.Naravno ako zrlite tolicku kućicu.Ne mora da bude sve gotovo i da kista toliko,bolje platite preduzimača da vam to sve napravi na lucu mesta po vasoj zelji.
3kEUR/m² je drumsko razbojništvo.