Urbanizacija Vrdnika: U planu novogradnja od skoro 10.000 kvadrata
Stara kolonija dobija stambeno-poslovni objekat sa 96 stanova i 16 apartmana sa parkiranjem delimično rešenim u podzemnim garažama.
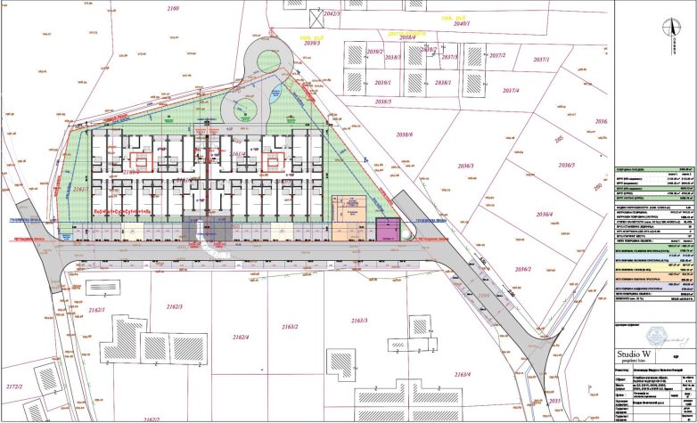
Poznato po svojim termalnim izvorima, ali i po sve većim turističkim kapacitetima iz godine u godinu, naselje Vrdnik u južnom delu Fruške gore uskoro bi moglo da dobije i novi stambeno-poslovni objekat ukupne bruto površine od 9.536 kvadratnih metara.
U pitanju je investicija dva privatna lica iz Beograda, koja uključuje i izradu urbanističkog projekta za koju je bio zadužen Domus Contruction iz Inđije, dok projekat arhitekture potpisuje beogradski Studio W, sa Vladanom Veličkovićem, dia, kao odgovornim projektantom.
Pročitajte još na Gradnja.rs:
Projektovano 96 stanova i 16 apartmana
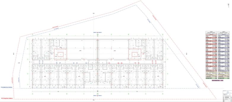
Na šest katastarskih parcela u Ulici Stara kolonija bb, ukupne površine od 3.033 m², projektovan je stambeno-poslovni objekat, spratnosti Po2+Po1+Su2+Su1+P+1+Ps.
Objekat je projektovan kao slobodnostojeći, u osnovi je pravougaoni i ima više funkcionalnih celina.
U podrumskim etažama (Po2 i Po1) smeštene su garaže i ostale tehničke i pomoćne prostorije, na etaži suteren 2 smeštene su poslovne prostorije – apartmani, dok su na ostalim etažama (Su1, P, 1 i Ps) projektovane stambene jedinice.
Objekat je podeljen na dve lamele – Lamel u br. 1 i Lamelu br. 2, a u svakoj je projektovano po 48 stambenih jedinica različitih struktura i veličina, kao i po 8 apartmana.

Objekat će imati ukupno 107 parking mesta, od čega je po 31 garažno mesto projektovano ispod svake lamele.
Parkiranje je delimično smešteno u garažama (Po2 i Po1), delimično na predmetnim parcelama, kao i u okviru okolnih saobraćajnica.
Objekat će imati ukupno 107 parking mesta, od čega je po 31 garažno mesto projektovano ispod svake lamele, ukupno 62.
Na predmetnim parcelama smeštena su 24 PM, a u okviru saobraćajnica još 21 parking mesto. Četiri parking mesta rezervisana su za invalide.
O Staroj koloniji
Za razvoj Vrdnika od najveće važnosti bilo je otkrivanje nalazišta mrkog uglja i početak njegove savremne eksploatacije 1840 godine. Tada se zbog potrebe za kvalifikovanijom radnom snagom, na tom području doseljavaju rudari iz svih delova Austrijske monarhije i za njih je izgrađeno novo naselje. Ono se danas zove Stara Kolonija, i nalazi se 2 kilometra severno od sela.
Javni uvid
Ceo urbanistički projekat možete pogledati na sajtu Opštine Irig.






Sve je to divno, gradite, pravite u Vrdniku ali niko ne pominje potencijalnim kupcima probleme sa vodom i vodovodom. Niko ne pominje da od 10 ujutru do 2 sledeceg jutra Vrdnicani nemaju vode. Niko ne pominje da su glavne vodovodne cevi koje vode od Rume stare proko 100 godina i da opstinu Irig, u cijem je sastavu Vrdnik, ne zanima, ne znaju i NECE da naprave projekat zamene tih cevi odnosno povecanje kapaciteta dovodnih cevi kako bi se povecao kapacitet dolaznih voda u Vrdniku. O tome se ne prica samo se gradi.
jeste, divno je…i Vrdnik pretvaramo u Zlatibor…. Vojvodinu smo pretvorili u pustinju bez drveta, humusa, ptice…..Frušku goru kasape, Vrdnik betoniraju….divota…..
Tako je
Savetujem svima da dobro razmisle pre nego kupe nekretninu u Vrdniku.I ja sam pre 13 godina nasela priči da će put biti saniran,a još uvek gazimo blato posle prve manje kiše.IA o tome da u letnjem periodu više nema nego što ima vode je posebna priča.A čelnici opštine Irig ne interesuje problem običnog čoveka nego onih koji su bogati.Ako im pišete nikada nećete dobiti pismeni od ozgovor,nego telefonom samo laži i izmotavanja.
Vrdnik kao mesto je lepo jer još ima mir i tišinu,ali ono je jedno zapušteno i prljavo Sremsko selo.
Arhitekta nema pojma sa projektovanjem i odnosom prema okolini. Unistice park kod hrama. Umesto trave bice beton. Totalno nerazumevanje i neshvatanje