Vinarija u Smederevu upakovana u istarski kamen i oregonski bor
Pogledajte kako je oblikovana vinarija Jeremić tako da arhitektura objekta može poslužiti i u marketinške svrhe.
Nekada kućno spravljanje vina za potrebe srodnika i prijatelja, porodica Jeremić iz Smedereva zamenila je pre više od deceniju modernom vinarijom, koja tradicionalne metode primenjuje u najsavremenijoj opremi i prati uz nova stručna saznanja.
Smeštena u izletištu Jugovo, udaljenom 5 kilometara od centra Smederava, na desnoj obali Dunava, Vinarija Jeremić zauzima podrum i prostor u prizemlju, svaki od po 650 kvadrata, a projektovao ju je 2011. godine beogradski arhitekta Petar Budnar.
Pročitajte još na Gradnja.rs:
- Vinarija Frug: Kako će izgledati rekonstruisan Navipov kompleks u Petrovaradinu
- Pejzaž kao primarni protagonist Fosterovog dizajna vinarije

Vinarija je trebala da ima svoj originalni arhitektonski izraz, koji bi kasnije bio iskorišćen u marketinške svrhe.
Zahtev klijenta je bio da se isprojektuje savremena vinarija koja bi pre svega omogućavala kvalitetan tehnološki proces pravljenja i čuvanja vina.
Pored ovog zahteva trebalo je obuhvatiti, isprojektovati i ostale prostore koji bi svojom funkcijom i sadržajem obogatili korišćenje vinarije.
“Pored funkcionalnih zahteva vinarija je trebala da ima svoj originalni arhitektonski izraz, koji bi kasnije bio iskorišćen u marketinške svrhe” – objašnjava Budnar za Gradnju.
Naglašava da se dugotrajnim zajedničkim angažovanjem na relaciji klijent – projektant, uz mnoštvo idejnih skica u raznim fazama projektovanja, došlo do odgovora na projektni zadatak.

Fasade oblikovane u nesimetričnom ritmu
Kao rezultat dobijen je objekat savremenog i originalnog arhitektonskog izraza izgrađen uz primenu klasičnih građevinskih materijala.
Prizemni objekat je razuđene osnove, koja se pokriva igrom jednovodnih krovova povezanih ravnim (mali nagib) krovovima sa atikom.
Fasade su pak oblikovane u nepravilnom (nesimetričnom) ritmu i u svemu pronalaze ravnotežu kroz primenu odgovarajućih materijala – kamen, drvo i staklo.
Prizemlje objekta je izdignuto 125 cm u odnosu na postojeću kotu terena, da bi se postigla dominacija i kvalitetnija sagledljivost objekta u postojećem okruženju i ambijentu.

Plafonske ploče ujedno i krovne ploče
Finalne obrade podrumskih prostora – podovi su u granitnoj keramici preko odgovarajućih slojeva, zidovi su malterisani i bojeni, delovi zidova imaju enterijersku oblogu od zidanog prirodnog kamena.
Prizemni deo vinarije je izveden u skeletnom sistemu armiranobetonskih stubova i greda. Podna ploča je armiranobetonska ploča preko armiranobetonskih zidova poruma.
Zidovi su od glinenih blokova, dok su plafonske ploče ujedno i krovne ploče, izvedene kao LMT.
Na određenim pozicijama zidova je izvedena enterijerska obloga od zidanog prirodnog kamena, istarskog Valežina.
Unutrašnja obrada prostora u prizemlju – podovi su izvedeni u pločama od prirodnog istarskog kamena Kanfanar, preko odgovarajućih slojeva podnog grejanja.
Zidovi su malterisani i bojeni, na određenim pozicijama zidova je izvedena enterijerska obloga od zidanog prirodnog kamena, istarskog Valežina.

Fasada od borovine
Delovi fasade su izvedeni od prirodnog kamena – istarski Valežin, kamen za zidanje, nepravilnih dimenzija (š 8–12cm, h 6–12c m i slobodne dužine).
Zidanje je izvedeno u suvom slogu. Delovi fasade su izvedeni sa finalnom oblogom od prirodnog drveta koje je isporučio JAF.
Drvena obloga su daske od borovine (Oregon pine) širine 9 cm debljine 2 cm i slobodne dužine, fiksirane za drvenu potkonstrukciju prohromskim iglama i zaštićene odgovarajućim premazima.
Delovi fasade (manje površine) su izvedeni kao demit fasada sa finalnom obradom u fasadnom dekorativnom malteru u boji.

Organizacija u službi vina
Podrumski deo objekta čine prostora za smeštaj tankova za preradu (pravljenje) vina, laboratorija, prostor za čuvanje vina (barik podrum), arhiv vina, prostor za prezentaciju i degustaciju.
U podrumi se nalaze i magacinski prostori (punjenje , pakovanje i odlaganje gotovog proizvoda) i prostori za horizontalnu i vertikalnu komunikaciju sa dva stepeništa i ulazno-izlazno kolskom rampom.

Višenamenska degustaciona sala sa kaminom i klavirom može da primi do 80 osoba u zavisnosti od vrste programa.
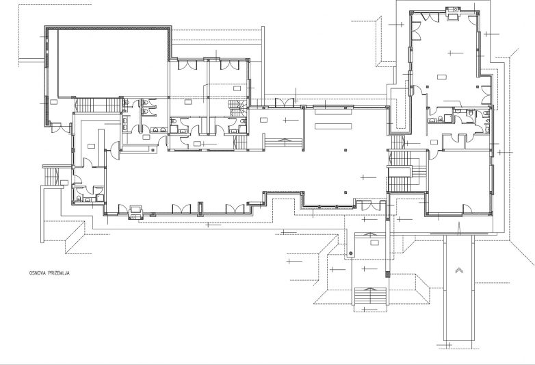
Na prizemlju su smešteni ulazni hol sa vinotekom (prijem i prodaja), kao i višenamenska degustaciona sala sa kaminom i klavirom koja može da primi do 80 osoba u zavisnosti od vrste programa.
Tu su i kuhinja za serviranje uz degustacionu salu, sanitarni blok, kancelarija sa prostorom za sastanke, apartmanski deo smešten u dva bloka 2+3. Svaki apartman je sa kupatilom.

Atraktivni arhiv vina
Stepenište sa staklenom žardinjerom omogućava atraktivnu vezu sa podrumom, a navedeni sadržaji u prizemlju su povezani horizontalnim komunikacijama koje omogućavaju kvalitetno korišćenje prostora.
Parter objekta rešen je prilaznim saobraćajnicama i parkingom pod nastrešnicom pokrivenom vinovom lozom.
Najdominantniji prostor u vinariji po oceni klijenta su vinske police, odnosno arhiv vina u podrumu objekta, sa čime se slaže i naš sagovornik.
Grafički prilozi
Faktografija
Vinarija Jeremić
Jugovo, Smederevo
Slavoljub Jeremić
Petar Budnar, dia
2011.
2011–2022.
podrum 650 m² , prizemlje 650 m²
Po + Pr
Martin Candir i Petar Budnar




Sterilno izgleda, ne bih je upamtio ni po čemu.
Original, skoro pa bukvalno, ma daaa.., cim sam video objekat pomislio sam na neki spomen dom, bitka na Batini i sl..socijalizam, Potpuno isti fazon. cak i restoranski deo kao da je iz tog vremena.. Neverovatnan osecaj , secanja na te neke dane.