Kuća za odmor projektovana je na parceli okruženoj maslinicima s pogledom prema Bračkom kanalu i plavetnilu Jadranskog mora.
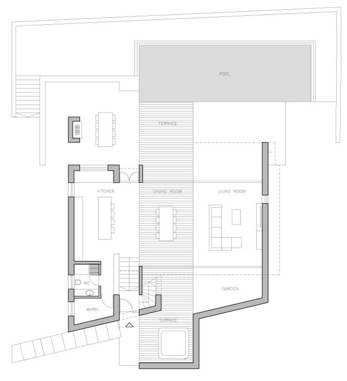
Prema projektu studija DAR612, urađen je projekat vile Ana nadomak Splita od 300 kvadrata na parceli od 800m2. Pošto je kuća okrenuta ka severu, to je uslovila dvostranu orijentaciju dnevnih prostora, a urbanistički uslov kosog krova inicirao je podelu na dva volumena spojena ravnim krovom.

Jedan deo kuće obložen je čuvenim bračkim kamenom koji se vadi sa susednog ostrva.

Prizemni deo kuće namenjen je odmoru i dnevnim aktivnostima a na spratu su smeštene četiri spavaće sobe s kupatilima.

Kuća je oblikovno podeljena na kameni postament vezan uz teren i levitirajući beli korpus dela sprata ispod kojeg su smešteni dnevni sadržaji.


U središnjem delu prizemlja smeštena je trpezarija, koja se u produžuje na severnu i južnu terasu, čineći tako središnju osu kuće.

Severna terasi završav se otvorenim bazenom, a južni kraj definisan je jacuzzijem.


Foto: Robert Leš
Pogledajte i kako izgleda kuća od balirane slame u Hrvatskoj.
Izdvojene firme iz Adresara:
Nikole Grulovića 71e, Beograd
Kompanija EuroDOM bavi se prodajom keramičkih pločica, granitne keramike i bazenske keramike reno...
GRADEX Invest je građevinska kompanije koja već sedam godina izvanredno ispunjava sve zahteve kli...
III Industrijska zona bb, 22314 Krnješevci, Stara Pazova
Mi smo članica ACO grupe svetske kompanije ACO Severin Ahlmann GmbH & Co KG za područje Srbij...
zgrada B, Zmajeva 12V, Belgrade, Serbia
Kompanija Delight Office Solution se od svog osnivanja afirmisala kao partner u uređivanju enteri...
Bulevar Arsenija Čarnojevića 69a, Beograd
Kompanija ATLAS d.o.o. osnovana je 1994. i bavi se proizvodnjom visokokvalitetnog i tapaciranog n...
Kostolačka 67, 11000 Beograd
Simprolit doo Beograd sa sedištem u Beogradu, Kostolačka 67 i proizvodnom pogonu u Belegišu, Vere...
Bulevar Zorana Đinđića 123g
Firma Floor 5 se bavi opremanjem velikih objekata i poslovnih prostora. Osnovana je 2016. godine ...
Vojvode Mišića 4, Нови Сад, Србија
Proslavljena dizajnerka enterijera, arhitekta Sonja Brstina. Sa više od 15 godina iskustva u proj...
Brick House iz Beograda je usko specijalizovana firma koja se bavi prodajom najkvalitetnijih klin...
Dr Zore Ilić Obradović, Belgrade, Serbia
LUPO Studio je arhitektonski studio iz Beograda. Studio je specijalizovan za dizajn i projektovan...
Kompanija TIS d.o.o. sa tradicijom od gotovo 30 godina je lider u distribuciji repromaterijala za...
Jurija Gagarina 20r, Beograd, Srbija
Tarkett kompanija bavi se dizajniranjem i izradom podova i sportskih površina, i predstavlja jeda...
JAF d.o.o. predstavlja jednog od vodećih veletrgovaca pločastim materijalima od drveta i na bazi ...
Žitna 9, Dobanovci 11272, Srbija
Brend HÖRMANN danas je sinonim kvaliteta, što je potpuno u duhu osnivača. Porodično preduzeće je ...
Vršačka 13, Novi Sad, Serbia
Naziv: ARH R DOO NOVI SAD BIRO ZA PROJEKTOVANJE I INŽENJERING PIB: 108988890 Matični broj: 211063...
Soko Skele DOO se primarno bavi pružanjem zaokružene usluge u skelarstvu po sistemu ključ u ruke ...
Dodaj firmu u Adresar