Vila u Nišu oblikovana oko japanske trešnje
Luksuzna kuća od 700 m2 s atrijumom, ogromnom spavaćom sobom i infinity bazenom gradiće se tako da pruža komfor ali i skrivenost od pogleda.
Pri projektovanju ovog jednoporodičnog stambenog objekta visokog standarda kvaliteta, programski zahtevi bili su precizno definisani – navodi za naš portal Andreja Buđevac iz projektnog biroa Arhitektura Buđevac. Glavni izazov je bio kako na uskoj parceli dimenzija 30×100 metara pružiti maksimalnu privatnost u odnosu na susede.
Specifičan zahtev klijenta bio je da se na imanju obavezno pojavi japanska trešnja upečatljive krošnje i boje cveta. Ovaj imperativ iskorišćen je kao centralni oblikovni i organizacioni motiv. Sa zastakljenim atrijumom, kuća je dobila specifični doživljaj pri kretanju, a sve to kroz dinamično pretapanje odnosa spolja/unutra i otvoreno/zatvoreno. Kako je japanska trešnja osetljiva vrsta drveta, arhitekte su imale izazovan zadatak da inženjerski reše zalivanje i mikro klimu neophodnu za rast ove egzotične biljke.

Japanska trešnja upečatljive krošnje i boje cveta iskorišćena je kao centralni oblikovni i organizacioni motiv.
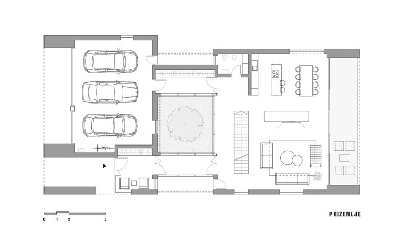
Sam objekat je atrijumskog tipa. Celokupna vila od 700 m2 površine organizovana je oko otvorenog atrijuma, okvirnih dimenzija 5×5 metara. „Atrijum se sagledava s prolaznih koridora i staklenih mostova na spratu koji spajaju ulaznu partiju od dnevnog boravka, kao i master blok sa dve dodatne spavaće sobe“ – obrazlaže Buđevac. Naime, rimski domus (kao stambeni tip ekonomski imućnih ljudi kroz istoriju) poslužio je kao polazište za stvaranje savremenog stambenog koncepta visokog reprezentativnog standarda.
U pogledu sadržaja, vila je jasno zonirana prednji i zadnji deo, prizemlje i sprat. Ka uličnoj strani objekta su garaža za tri automobila, ulaz sa čekaonicom i dve gostinske sobe s garderoberima i zajedničkim kupatilom (na spratu). Pogled ka dvorištu i bazenu imaju dnevna zona, trpezarija i kuhinja u prizemlju i glavna spavaća soba od preko 70 m2 površine (nalazi se na spratu). U podrumu je spa sa saunom i tehnički blok sa vešernicom, kotlarnicom i ostavama.

Svedena forma – luksuzni materijali
„Očekivanje klijenta nas je usmerilo ka svedenoj formi“ – naglašava Buđevac. Izražena dužina kuće (preko 25 metara) raščlanjena je drvenim vertikalama i odvajanjem fasade u dve završne obrade po vertikali. Donja masa čvrstog bazisa definisana MARAZZI keramičkom oblogom velikog formata koja nosi beli, lagani volumen. Spratni deo objekta rešen je u sistemu kontakt fasade s kamenom vunom kao termoizolacionim materijalom. Finalna obrada fasade je od dekorativnog maltera visoke paropropusne moći.

Predviđen je ravan krov sa oblucima radi sprečavanja pregrevanja u toku sunčanih letnjih meseci.
Specifični izgled objektu daju veliki stakleni portali, čiji raspon prevazilazi preko 10 metara. Iz tog razloga, arhitekte su se odlučile za klizna prozor/vrata od aluminijumske stolarije. Radi veće transparentnosti, arhitekte su se opredelile za staklenu ogradu čiji raster prati proporciju ulične i dvorišne fasade. Radi modernog izgleda, arhitekte su se odlučile za ravan krov koji je obložen oblucima radi sprečavanja pregrevanja u toku sunčanih letnjih meseci.
Posebni akcenat stavljen je i na parterno uređenje. Projektom se predviđa razigrano uređenje u ortogonalnom rasteru, kao i izgradnja „infinity bazena“ reprezentativnih razmera. Plato oko bazena popločan je u deking sistemu, a predviđa se primena mermera i travertina za vertikalne površine. Pristupne staze oko objekta rešene su u oblozi kvadratnog formata s naglašenim dilatacionim spojnicama.

Novi standard kvaliteta
Arhitektura vila jedna je od najzahtevnijih stambenih tipologija. Za poznatog klijenta potrebno je osmisliti i sagraditi kuću po najvišim standardima komfora i kvaliteta, a na način koji prethodno nije postojao u okvirima arhitektonske profesije i prakse. Sa stanovišta izvođenja u domaćim uslovima to je izuzetno zahtevan zadatak, pa je potrebno voditi računa i o najmanjem detalju.
https://www.instagram.com/p/CGsl7cHDZ8y/
Faktografija:
- naziv objekta: JA House
- mesto: Niš
- autori projekta: Arhitektura Buđevac
- autorski tim: Andreja Buđevac, Saša Buđevac i Dušan Kocić
- godina projektovanja: 2020.
- površina: 700 m2
- spratnost: Po+P+1
- renderi: Arhitektura Buđevac i Dušan Kocić
Grafički prilozi:
Renderi:
Kad ste već ovde…







Bolje sljivu da je zahtevao bilo bi makar iskreno i u skladu sa ambijentom.
elegantno, dobro projektovano! meni se ovo jako sviđa, bravo nišlije!
-bezlično. zar ne!?