URED Studio osvojio prvu nagradu na Bijenalu Mladih Arhitekata u Minsku
Na objektu C6 u Kragujevcu, arhitekte su klasične motive volumena, objekta na uglu, fasadnog pročelja, prozora, stuba, ulice i bloka uvezali na jedan krajnje kontekstualno specifičan način.
Najbolje ideje pobeđuju. Nikola Milanović, Hristina Stojanović, Ivana Lovrinčević, Bojana Marković i David Bilobrk, arhitekte okupljene oko URED Studija, dobitnici su prestižne nagrade Leonardo 2019 na VIII Međunarodnom Bijenalu Mladih Arhitekata u Minsku, Belorusija.
Mladi tim domaćih arhitekata prvonagrađen je u kategoriji Izvedeni višeporodični objekti za projekat Stambene zgrade C6, u Kragujevcu. Ova višeporodična, višespratna stambena zgrada, koja na hibridni način zatvara prsten tradicionalnog gradskog bloka, te pravi neposrednu vezu objekta, bloka i ulice, najuspelija je realizacija po mišljenju međunarodnog stručnog žirija.
Iako je ugaona parcela nepravilnog oblika, promišljenom postavkom i rasporedom osnovnih volumena, dobija se stepenasta arhitektonska kompozicija.
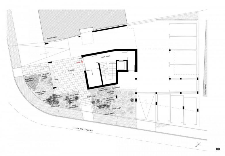
Višeporodična Stambena zgrada C6 ima 14 stambenih jedinica i nalazi se na uglu nedovršenog gradskog bloka. U kompaktnoj gradskoj matrici srednjeg urbaniteta, zgrada se jasno izdvaja svojom svedenošću. Kao takva, zgrada C6 čini novi sloj transformacije i proširivanja kompaktnosti i urbaniteta centralne gradske zone.
Objekat koristi specifičnost pozicije na uglu i prirodni pad terena. Iako je ugaona parcela nepravilnog oblika, promišljenom postavkom i rasporedom osnovnih volumena, dobija se stepenasta arhitektonska kompozicija. Reč je o funkcionalnom stambenom sklopu, sa dve do četri jedinice po spratu i pretežno dvostrano orijentisanim stanovima.
Otvorenost prizemlja
Centralni kvalitet Stambenog objekta C6 ogleda se u parternom uređenju. Svojom otvorenošću, pristupna etaža objekta neometano komunicira sa susedstvom, te formira zajednički prostor u formi oslobođenog prizemlja, zelenila i predbašte. S druge strane, otvorenost prizemlja u gradsku sredinu uvodi dozu pitomosti po meri čoveka.
Objektu i parceli pristupa se sa dve strane, u dva različita nivoa – što je neuobičajno. U zadnjem delu parcele i u podzemnoj etaži, parkiranje je skriveno od pogleda. Svaki stan ima svoje parking mesto. Stepenovanje nivoa privatnosti vrši se kroz kontrolu otvorenosti volumena, prodora pogleda i kontrolu kretanja korisnika kroz prostor.
Kompaktni volumeni
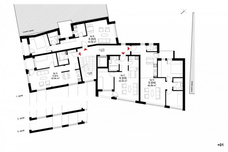
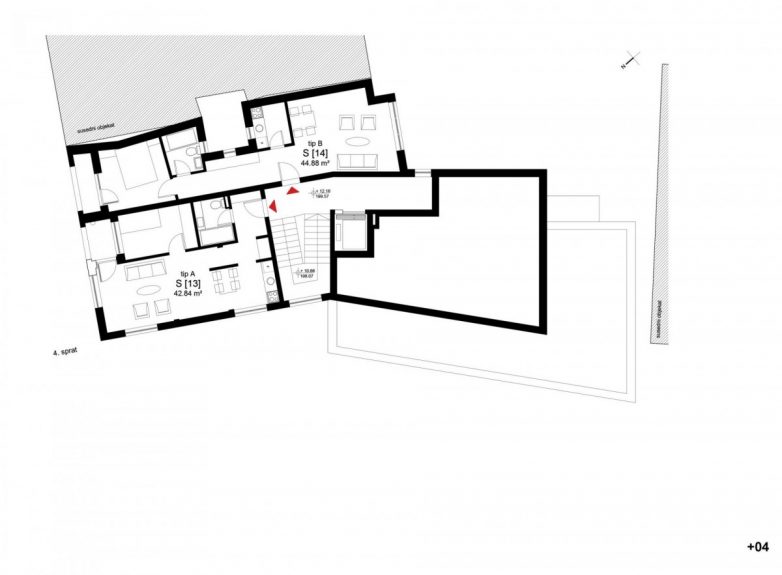
Mada je prizemlje otvoreno, hibridno i transparentno, nadzemni spratovi su krajnje kompaktni. Dva osnovna volumena međusobno se smiču po vertikali, prateći linije gradske parcele, topografiju terena i oblikovni kod susedstva. U rezultatu, izdvaja se krovna terasa kao posebni urbani kvalitet i pogodnost života u gradu.
Tretman fasade sproveden je kroz osnovne elemente i ritmični raspored prozorskih otvora, ujednačenih veličina. Materijalizacija fasade je demit. Sagledano u razmeri urbanog susedstva, u moru nasumičnih i neusklađenih geometrija, pojavnost Objekta C6 odiše redom, smislom i proporcijama.
Organizaciono, stambeni i servisni sadržaji nižu se oko centralnog jezgra u dva odvojena bloka. Veličina stanova skrojena je po meri lokalnog tržišta, i kreće se u rasponu od 40 do 60 kvadratnih metara. Na svakoj etaži nalazi se dva do četiri stana. Organizacija stanova rešena je po klasičnom modelu podele na dnevnu i noćnu zonu aktivnosti.
Arhitektura u kontektu
Kreativnost je sposobnost uvezivanja poznatih elemenata u nesvakidašnje sklopove. Najbolje ideje, koje rešavaju goruće probleme treba nagraditi. Arhitekte iz URED Studija su klasične motive volumena, objekta na uglu, fasadnog pročelja, prozora, stuba, ulice i bloka uvezali na jedan krajnje kontekstualno specifičan način. Po originalnosti svoje tipologije i oblikovanja, Stambena zgrada C6 je na sebe skrenula pažnju međunarodnog stručnog žirija Bijanala Mladih Arhitekata.
Kako dugo godina neki realizovan objekat u Srbiji nije stekao prestižno međunarodno priznanje. Prva nagrada na tako značajnoj smotri, prema tome, ima dodatnu vrednost i značaj.
Grafički prilozi:

Faktografija:
- Naziv: Stambeni objekat C6
- Lokacija: Cetinjska 6, Kragujevac
- Klijent: Primus kvadrati doo, Kragujevac
- Površina: oko 1.400,00 m2 bruto
- Kapacitet: 14 stambenih jedinica
- Projektovano: 2015. godine
- Realizacija: 2018. godine
- Učesnici na projektu C6:
- Projektanti: Nikola Milanović, Bojana Marković, Hristina Stojanović, Ivana Lovrinčević
- Saradnici: David Bilobrk, Fedor Jurić
- Konsultant: Milan Maksimović
- Foto: Relja Ivanić
Kad ste već ovde…









