U Vojvođanskoj ulici u Surčinu planirana zgrada sa 30 stanova i šest lokala
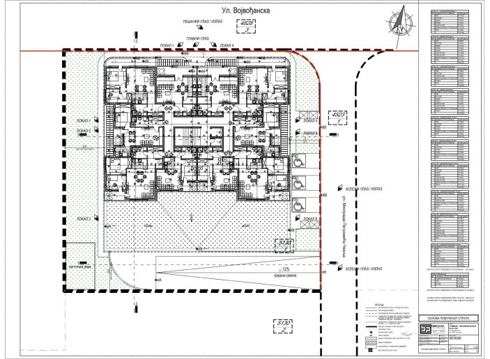
U trospratnici je projektovano po 10 stanova različitih struktura, dok je u podzemnoj garaži i na parceli predviđeno 47 parking mesta.
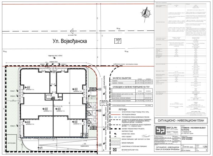
Grad Beograd oglasio je u sredu prezentaciju urbanističkog projekta za izgradnju stambeno-poslovnog objekta spratnosti Po+Pr+2+Ps, privatne investicije planirane na jednoj katastarskoj parceli u Vojvođanskoj bb u Surčinu.
Nosilac izrade urbanističkog projekta je preduzeće Best plan d.o.o. iz Beograda, kao odgovorni projektant idejnog rešenja potpisan je Nikola Janković, mia, a kao autor idejnog rešenja Milica Lazarević, mia.
Pročitajte još na Gradnja.rs:

Pristup iz Vojvođanske i Miodraga Petrovića Čkalje
U obuhvatu urbanističkog projekta je katastarska parcela 5130/1, KO Surčin, površine od 1.698 kvadratnih metara.
Parcela sa severne strane izlazi na Vojvođansku ulicu, sa koje se planira pešački pristup, a sa istočne na pristupni put – ulicu Miodraga Petrovića Čkalje, sa koje se planira kolski i pešački pristup.
Na parceli nema izgrađenih objekata, dok je teren je u blagom padu ka dubini parcele gledano iz Vojvođanske ulice.

Na prvom, drugom i povučenom spratu projektovano je po 10 stanova različitih struktura.
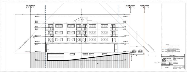
Na predmetnoj parceli planirana je izgradnja objekta spratnosti Po+P+2+Ps, ukupne bruto površine od 4.027 metara kvadratnih, (nadzemno 3.032 m², podzemno 995 m²).
Glavni ulaz planiran je sa severne strane, iz Vojvođanske ulice. U podrumu projektovana je garaža sa tehničkim prostorijama, a u prizemlju stambeni pristup objektu i šest lokala.
Na prvom, drugom i povučenom spratu projektovano je po 10 stanova različitih struktura – ukupno 30 stambenih jedinica.

Ukupno 47 parking mesta
Kako se navodi u projektnoj dokumentaciji, parkiranje se planira u podzemnoj garaži i na otvorenom prostoru na parceli.
Planira se ukupno 47 parking mesta, a u podzemnom delu smeštene su 4 klackalice sa 24 PM i 5 klackalica sa 20 PM.
Tri preostala parking mesta namenjena su osobama sa invaliditetom i smeštena su na parceli, gde su projektovana i dva stalka za bicikle sa po 5 mesta.

Primedbe i sugestije do 22. februara
Kao i uvek, podsećamo vas da tokom javne prezentacije možete izvršiti uvid u urbanistički projekat, dok svoje primedbe i sugestije na planirana rešenja možete dostaviti Sekretarijatu za urbanizam i građevinske poslove Grada Beograda, najkasnije do 22. februara 2024. godine.
Grafički prilozi






