Sojenica na Savi kao utočište od gradske vreve
Ova kuća postavljena je na plavno tlo i na proleće je veći deo terena poplavljen. Stoga je ona projektovana kao kuća na stubovima.
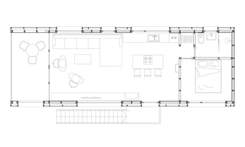
Po projektu biroa Remorker Architects, na obali reke Save, 30 kilometara od Beograda, na izolovanoj lokaciji rečne ade, podignuta je sojenica od 83 kvadrata koja pleni pažnju svojim arhetipskim oblikovanjem dobro uklopljenim u prostorni ambijent.
A ambijent je takav da u neposrednoj blizini nema drugih kuća. Teren je okrenut ka reci i ravan je svuda osim u prvih 10 metara najbližih Savi gde je nagib ujedno i granica rečnog korita. Vegetaciju čini uglavnom visoko drveće koje preživljava periode plavljenja. Pogled na drugu stranu reke prikazuje slično gusto rastinje. Ova tanka linija rastinja u daljini kao i linija reke definišu izrazito horizontalni prostorni ambijent.
Stepenice, stubovi i kućica u prizemlju koji su pod vodom u vreme plavljenja, ostali su u natur betonu.
Sojenica je zamišljena kao kuća za odmor ili vikendica. Mesto gde se može pobeći, izmestiti se iz svakodnevnog života ili sakriti. Jednostavna, arhetipska forma kuće – onakva kakvu bi dete nacrtalo –asocira na osnovnu ulogu kuće – sklonište. Sklonište od prirodnih uticaja, životinja i ljudi.
Osa simetrije je na liniji glavne vizure i upravna je na reku. Pogled iz kuće omogućen je kroz mnogobrojne otvore na obe bočne strane dok je glavna vizura ka reci naglašena velikom konzolnom terasom u produžetku dnevnog boravka.
Kuća je uvučena u odnosu na front reke i prvo visoko rastinje, da bi se između kuće i reke na nagnutom terenu formirao poluukopan prostor za sedenje oko ognjišta. Staze za kretanje od rizle oko sojenice naglašavaju pravougaoni oblik kuće.
Drvo i beton
Konstrukcija kuće je drvena. Krov je iz rogova sa raspinjačama i oslanja se na zidove od drvenih ramova. Cela drvena konstrukcija leži na betonskoj ploči koja se oslanja na uvučene stubove i uvučene betonske zidove prizemlja. Stepenice, stubovi i noseća kućica u prizemlju kao delovi sojenice koji su pod vodom u vreme plavljenja, ostali su u natur betonu. Kružni stubovi na kojima sojenica stoji doprinose lakoći sveukupnog utiska.
Krovni pokrivač kao i obloga fasada je od crnog mat lima. Svi otvori na fasadi su naglašeni drvenim elementima, dok su roletne u boji fasade. Crna spoljašnost naglašava topli drveni enterijer, sa vidnim gredama i raspinjačama, drvenom oblogom zidova i belim gipsanim krovnim površinama.
Pristup parceli je preko izgrađenog nasipa ili čamcem u plavnom periodu.
Grafičke podloge
Faktografija
- Lokacija: Beograd, reka Sava
- Godina izgradnje: 2017.
- Površina: 83m2
- Autor: Remorker Architects
- Fotografija: Miloš Martinović













Pozdrav, da li je na prodaju? Koja je cena ako jeste i da li moze da se dodje kolima, koja je tacna lokacija>?
Hvala
Kuca je fenomenalna!
Molim vas,koliko kosta gradnja takve kuce,bez stubova,dakle,kad bi bila na zemlji?