Las Vegas ima Sferu, a Novi Sad Kocku: Otvaramo vrata novog Studentskog kulturnog centra
Obilazimo završne radove na izgradnji i opremanju objekta čiju okosnicu čini crna kocka, odnosno multifunkcionalna koncertna sala koja može da primi i do hiljadu ljudi.
Vojvođanska prestonica uskoro će dobiti novi Studentski kulturni centar (SKCNS) – zgradu površine od oko 3.480 kvadratnih metara smeštenu u okviru Univerzitetskog centra na mestu bivše male menze.
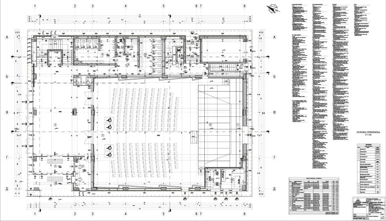
Srce kockastog objekta spratnosti Po+P+2 čini crna kocka, odnosno multifunkcionalna koncertna sala sa 200 mesta za sedenje ili 1.000 mesta za publiku koja će koncerte pratiti stojeći.
Srodni članci na portalu Gradnja:

Sa preko stotinu izvora svetlosti, LED ekranom od 18 kvadrata i zvučnicima najnovije generacije, ovo je sigurno jedna od najopremljenijih sala u gradu.
Sa preko stotinu izvora svetlosti, slobodnostojećim LED ekranom od 18 kvadrata, zvučnicima najnovije generacije, pokretnom klupama i spratnom visinom od oko 8 metara, ovo je sigurno jedna od najmodernijih i najopremljenijih muzičkih sala u gradu.
“Las Vegas ima Sferu, a Novi Sad Kocku” – kaže Vladimir Kozbašić iz SKCNS koji nas je proveo kroz objekat.
Osim crne muzičke kocke, SKC se može pohvaliti sa dva galerijska prostora koja su dinamiku dobila zahvaljujući trouglastim prozorima koji prate trougaonu šaru na fasadi od fibercementnih ploča.

Arhitektura u službi funkcije
Ovakav objekat osmislio je autor arhitekture Jovan Cvjetković iz firme SET d.o.o. Šabac, koja je u periodu 2019/2020. godine realizovala projektni zadatak.
Zahtevi klijenta su se u celosti odnosili na funkcionalnu organizaciju i potrebe koje se nisu mogle ostvariti u prostorima kojim su raspolagali u to vreme.

Videli su koliko žudimo za dobrim objektom, pa smo se svi trudili da dobijemo maksimum. Bila je to prava sinergija.
„Jedan od najvažnijih zahteva je bila koncertna sala, galerijski prostor, multifunkcionalni prostori i kancelarije za potrebe uprave SKCNS. Lokacija i planski dokument su delom odredili izgled objekta budući da je funkcionalna organizacija zahtevala maksimalnu iskorišćenost parcele“ – kaže Cvjetković za Gradnju.
Ovo je pravi primer kako je između investitora, projektanata i izvođača napravljena dobra saradnja.
“Videli su koliko žudimo za dobrim objektom, pa smo se svi trudili da dobijemo maksimum. Bila je to prava sinergija.” – rekao nam je Kozbašić.

Konstruktivna problematika
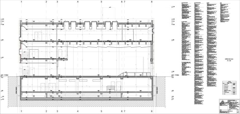
Objekat je projektovan sa podrumskom etažom u koju su smeštene tehničke prostorije i parking prostor. Zbog maksimalne iskorišćenosti prostora pristup garaži je obezbeđen preko auto-lifta, dok je rezerovar vode za potrebe gašenja požara smešten u tehničku etažu visine jednog metra ispod nivoa podruma.
Prizemlje objekta je projektovano prvenstveno za potrebe koncertne hale, dok su na spratu smeštene svlačionice za izvođače, apartman za izvođače, prostorija za probe/izložbe. Drugi sprat je namenjen kancelarijama uprave, galeriji i multifunkcionalnom prostoru namenjenom za odmor zaposlenih i posetilaca.
Objekat je izrađen u skeletnom sistemu armiranobetonske konstrukcije, dok su potrebe za savladavanjem velikih raspona koncertne hale obezbeđene primenom kasetirane tavanice.

U januaru otvaranje
Projekat vredan 764,4 miliona dinara privodi se kraju. U narednih nekoliko sedmica biće opremljena lokacija, uređeni trotoari, do kraja novembra završeni radovi na opremanju, te bi upotrebnu dozvolu objekat trebalo da dobije već u januaru.
Grafički prilozi
Foto-galerija
Faktografija
SKC Novi Sad
Novi Sad, Ulica Vladimira Perića Valtera 5
Studentski kulturni centar Novi Sad
Vlada AP Vojvodine
Jovan Cvjetković, dia
Dalibor Gavrilović, dia
2019/2020.
GAT d.o.o.
2023.
oko 3.480 m² (bruto)
Po+P+2
Gradnja.rs























Novi Sad je uvek novi grad sa starim Austro-Ugarskim smekom i ljubaznim, pitomim ljudima.
koji fasadni sistem je u pitanju? – pošto vidim da nisu mogli da usaglase raster na uglu objekta, već je ispalo ovo nesreno rešenje sa smicanjem
da li je baš morala da se izvodi ta temeljna kontra-ploča? nije to malo betona
šteta što arhitekta nije uspeo nekako da ove mašinske prostorije na krovu integriše unutar arhitekture objekta več ovako štrče
a i nadam se da je hidroizolacija na ravnom krovu nekako zaštićena – iz preseka mi deluje da je stavljana direktno preko termoizolacije…
Boze zdravlja da bude svirki ovde,