Savremena kuća izgrađena drevnom tehnikom
Stone House predstavlja vezu između savremene arhitekture i okolnog prirodnog pejzaža.
Prilikom projektovanja i dizajniranja kuće od 450 metara kvadratnih smeštene na severnoj obali španskog ostrva Menorka u Sredozemnom moru, firma Nomo Studio bazirala se na primeni lokalnog kamena, kojim je obložen znatan deo fasade.
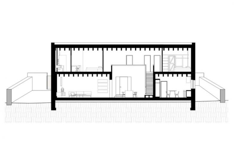
Primenjena tehnika gradnje krečnjačkih zidova je veoma stara i vrlo efektna, i upravo ona je omogućila uspostavljanje snažnog kontinuiteta između enterijera i eksterijera.

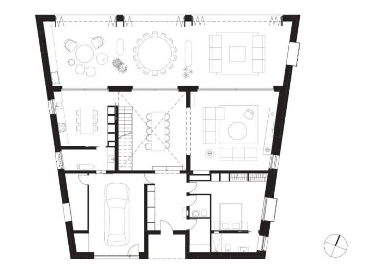
Natkriveni trem od 100 kvadratnih metara može se koristiti i kao zimska bašta zahvaljujući dvostrukom zastakljenju.
Trem kuće dominantni je element i on funkcioniše kao toplotni tampon objekta, ali i kao proširenje unutrašnjeg prostora. Natkriveni trem ima površinu od 100 kvadratnih metara i na njega se može izaći iz kuhinje i trpezarije ili preko dnevnog boravka, piše Domusweb.
Može se koristiti i kao zimska bašta zahvaljujući dvostrukom zastakljenju.

Veza s okruženjem
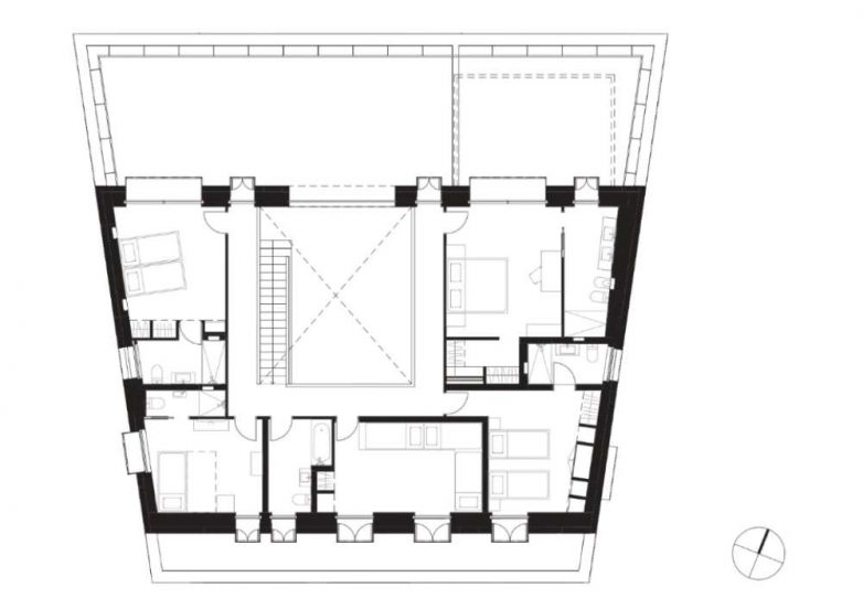
Stone House je organizovana na dva nivoa, a gotovo sve prostorije kuće imaju svoja spoljašnja proširenja kako bi se obezbedila veza s okruženjem.

Na spratu je smešteno šest spavaćih soba organizovanih oko hodnika duple spratne visine i one takođe imaju izlaz na terase na spratu kuće.

Mediteranski enterijer
Enterijer kuće je oblikovan kroz svetle tonove i prirodne materijale, a dizajn je veoma minimalistički i ujedno mediteranski topao.

Isticanje prozora
Primena belih malterisanih segmenata fasade takođe je inspirisana tradicionalnom arhitekturom, a zahvaljujući njima drveni prozori i vrata izgledaju još istaknutije.

Beli malterisani segmenti fasade još više ističu drvene prozore i vrata.






Grafičke podloge




Foto: Joan Guillamat
Kad ste već ovde…
