Prva nagrada pripala je studiju iz Turske, a dve jednakovredne treće nagrade dobili su Andreja Berić i Milena Vukmirović, te Dalia Dukanac i Stefan Đorđević.
Udruženje arhitekata Srbije objavilo je rezultate javnog međunarodnog jednostepenog arhitektonsko-urbanističkog konkursa za uređenje kompleksa, izgradnju novih i rekonstrukciju postojećih smeštajnih kapaciteta u kompleksu „Studentski grad“ na Novom Beogradu, na koji je do 25. oktobra pristigao ukupno 21 rad.
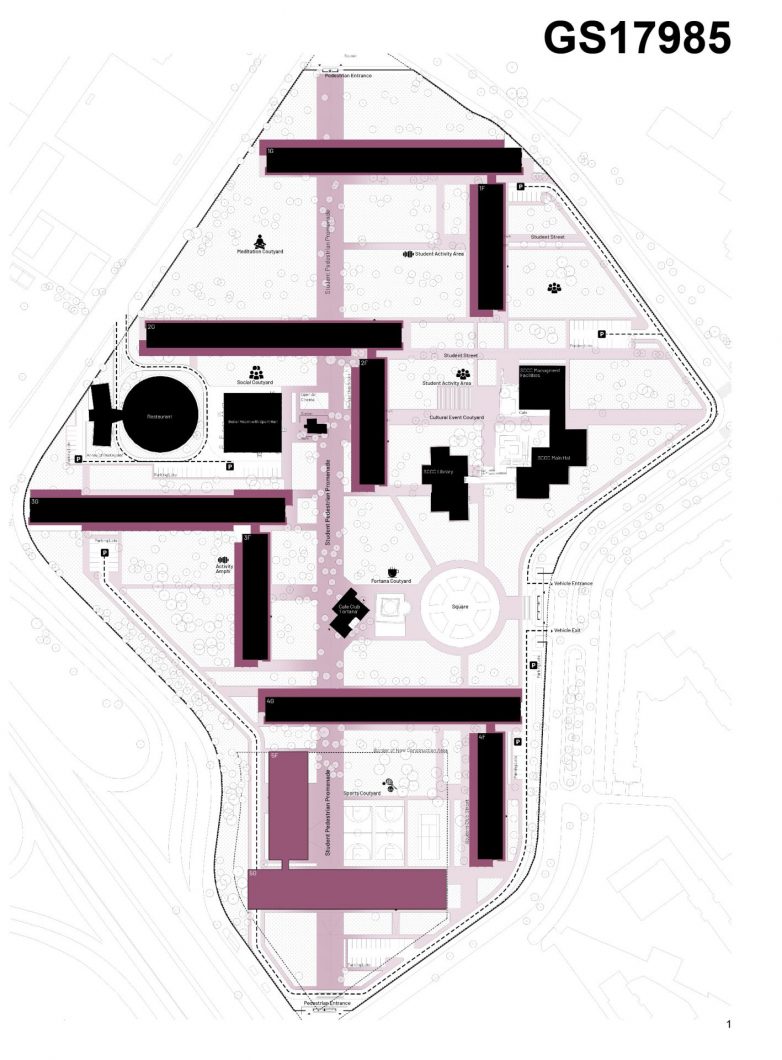
Raspisivač konkursa bila je Vlada Republike Srbije, Ministarstvo prosvete, uz podršku United Nations Development Programme, a žiri kojim je predsedavala arhitektkinja Grozdana Šišović jednoglasno je odlučio da prvu nagradu dodeli radu studija „Nous Architecture“ iz Turske.
Pročitajte još na Gradnja.rs:
- Predstavljamo sve nagrađene radove s konkursa za proširenje ETF-a u Beogradu
- Sinteza starog i novog: Evo kako će biti formiran kampus FLU u Beogradu
Prva nagrada – 28.000 USD
Autori pobedničkog projekta su arhitekti Cihan Sevindik i Siddik Guvendi, sa asistentima Emirhanom Ayatom, Tetianom Markov i Ekremom Zenginom, a nagrada će im biti dodeljena u neto iznosu od 28.000 američkih dolara.



Jednakovredna treća nagrada – 7.000 USD
Prvu od dve jednakovredne treće nagradu dobio je rad koji autorski potpisuju Andreja Berić i Milena Vukmirović, čiji su saradnici na projektu bili Boris Horošavin, Suzana Gavrilović, Aleksa Jovanović i Letisha Moody.


Jednakovredna treća nagrada – 7.000 USD
Treća jednakovredna nagrada dodeljena je i radu čiji su autori Dalia Dukanac i Stefan Đorđević, dok su njihovi saradnici na projektu bili Maja Savić i Kristina Žilić.


Otkupljeni radovi
Žiri je dodelio i pet jednakovrednih povišenih otkupa u neto iznosu od po 2.800 USD.
Povišena otkupna nagrada dodeljena je radu čiji su autori Jelena Miletić i Dejan Miletić.

Povišena otkupna nagrada dodeljena je radu autora dr Dušana Stojanovića, dipl. inž. arh. i dr Pavla Stamenovića, dipl. inž. arh. sa koautorima Đorđem Jovanovićem, b.arh; Anjom Ljujić, b.arh. i Aleksom Rašićem, b.arh.

Povišena otkupna nagrada dodeljena je radu čiji je autor Vlada Lukić, dok su njegovi saradnici na ovom projektu bili Aleksandar Tepavčević, Miloš Krstić i Vukašin Nikolić.

Povišena otkupna nagrada dodeljena je radu koji potpisuju autori Milan Ivanović, Filip Vasić, Milica Božović, Boris Ivanović, Danica Vićanović i Ivana Mitrović.

Takođe, povišena otkupna nagrada dodeljena je i radu urađenom u okviru studija „AKVS arhitektura“ iz Beograda, čiji su autori Anđela Karabašević Sudžum i Vladislav Sudžum. Projektantine su bile Marija Matijević, Teodora Stevanović, Mina Vujović i Jelena Smiljanić, a saradnica na projektu Sara Jevtić.

Sve nagrađene i nenagrađene radove možete u elektronskom formatu pogledati na ovom linku.

Ima par dobrih resenja koja poštuju kontekst ali je prvonagradjeno rešenje zaista najbolje. Čestitke!
Ništa bez slovenačkih biroa.
AKSV podbacio 🙁