Prefabrikovana vila u švajcarskim Alpima montirana za nekoliko dana
Ova energetski održiva kuća jednako je zadivljujuća kao i pogled koji se iz njene dnevne sobe pruža ka planinskim masivima.
Vila Montebar italijanskog arhitektonskog studija JM Architecture locirana je na vrhu proplanka u švajcarskim Alpima ne samo da bi imala puno prirodne svetlosti već i da bi se ventilirala hladnim vazduhom koji se diže uz padinu tokom toplih letnjih meseci. Ono što je zadivljujuće jeste činjenica da je vila montirana za svega nekoliko dana – naravno, zahvaljujući primpremnim radovima u fabrici, piše ArchDaily.
Svi otvori kuće se zatvaraju čineći kompoziciju kompletnom… a i sigurnijom od provalnika.
Delovi ove prefabrikovane drvene kuća doveženi su na lice mesta i montirani u veoma kratkom roku uz poštovanje svih lokalnih propisa za gradnju. Krov je morao biti tamne bojne, pepeljasto siv, kako bi se uklopio u pejzaž. Gledano iz daljine, kuća od pozadi izgleda kao jedna velika kamena gromada – izuzev balkonskih vrata koja se zatvaraju tokom letnjih meseci čineći kompoziciju kompletnom… a i sigurnijom od provalnika.
Energetski efikasna kuća
I krov i spoljni zidovi obloženi su kamenom vunom kako bi se postigli najviši standardi po pitanju enegetske efikasnosti. Za otvore je korišćeno Loe-E staklo sa aluminijumskih profilima, rasveta je kompetno LED dok je ispod poda postavljeno radijano podno grejanje.
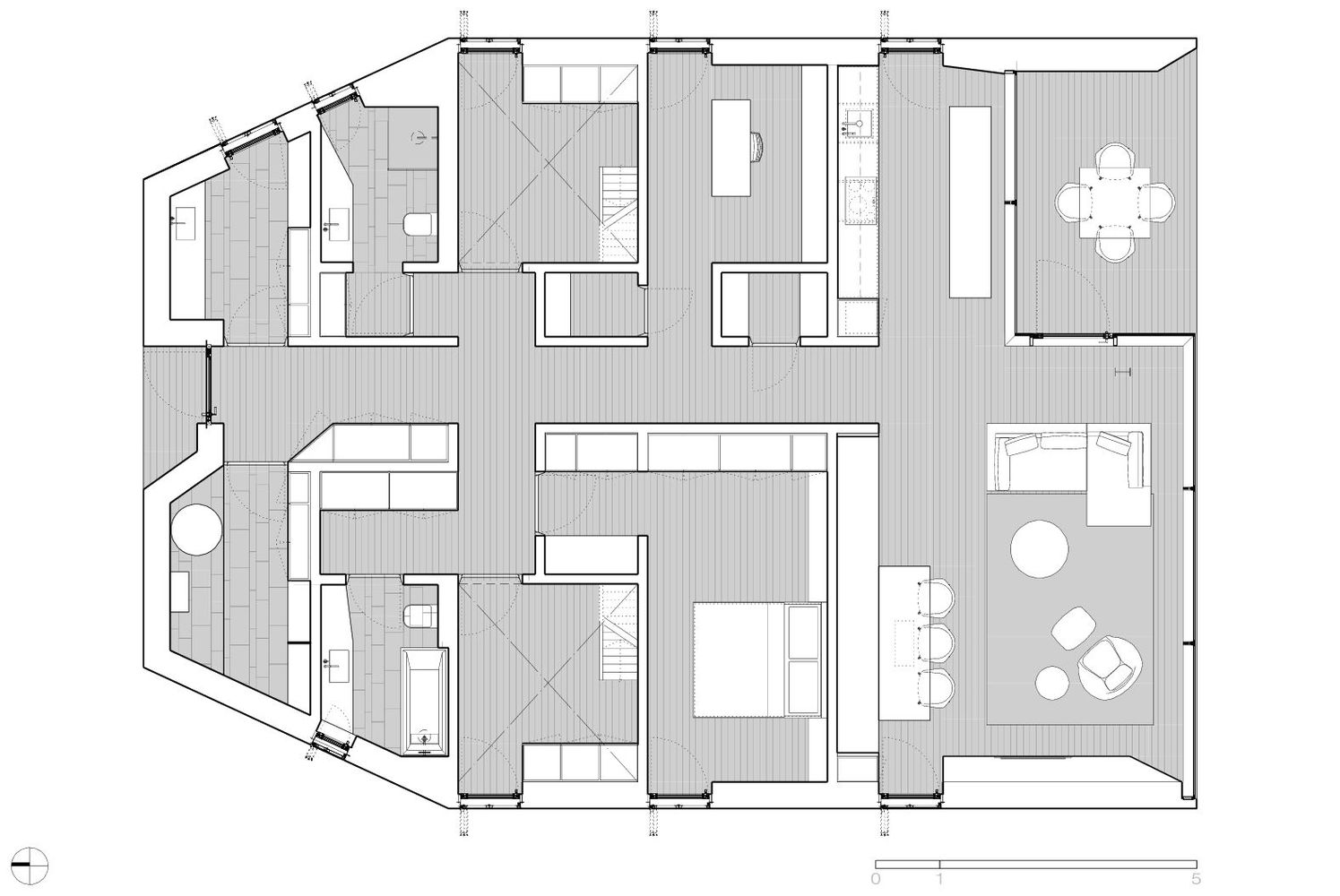
Funkcija u službi pogleda
Na južnoj strani kuće postavljena je dnevna soba koja ima sjajan pogle ka Alpima. U prizemlju se nalazi još i spavaća soba, dva kupatila, kuhinja, trpezarija, radna soba i vešernica dok su pod kosim krovom smeštene dve dečije sobe.


Foto: Jacopo Mascheroni
Pogledajte i ovu energetski efikasnu kuću koja uopšte nije priključena na struju.







