Osnovna škola u Sjenici kao ledeni breg u okruženju
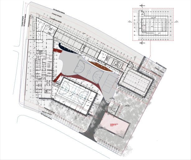
Spojeni toplim vezama, objekti škole, fiskulturne sale i bazena se međusobno preklapaju i uranjaju u teren, transformišući se u jedinstvenu funkcionalnu celinu.
Završen prošle godine, kompleks Osnove škole “Svetozar Marković” u Sjenici još jedan je u nizu upečatljivih javnih objekata u Srbiji iza čijeg arhitektonskog oblikovanja stoji Studio A&D Architects (SADA), koji je 2017. godine u Beogradu osnovao arhitekta Danilo Grahovac.
Ovenčan nagradom Luxury Lifestyle Awards 2024 u kategoriji arhitektura, kompleks se sastoji od tri objekta – škole, fiskulturne sale i bazena, uz koje su izgrađeni i sportski tereni za košarku i odbojku i tribine, kao i igralište za najmlađe, a više detalja saznaćete u nastavku.
Pročitajte još na Gradnja.rs:

Barijera između dve suprotnosti
Lokacija škole smeštena je u sklopu gradskog jezgra, u zoni starog parka, a kompleks se nadovezuje na postojeću borovu šumu parka koja postaje važan motiv u oblikovanju i arhitekturi.
“Tri objekta – škola, fiskulturna sala i bazen, se formalno čitaju kao zasebni objekti iako se, spojeni toplim vezama, preklapaju i uranjaju u teren transformišući se u jedinstvenu funkcionalnu celinu. Motiv šume ukazuje na mir, kojem se suprotstavlja dinamičnost saobraćajnica koje okružuju lokaciju” – kaže Grahovac i nastavlja:
“Kao ledeni breg, objekat nastaje kao barijera između ove dve suprotnosti. Prateći granice parcele, objekat izoluje unutrašnji prostor od spoljnih uticaja i na taj način formira unutrašnje dvorište koje postaje oaza za igru i socijalizaciju”.

Korisnički pristupi koncipirani su tako da se omogući nezavisno korišćenje svih delova kompleksa.
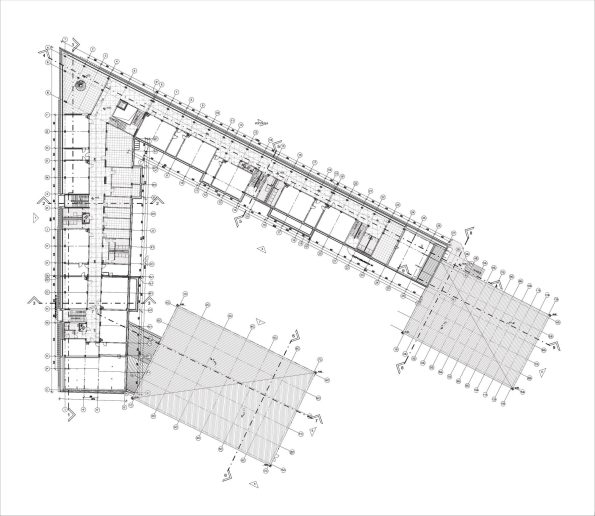
Objekat škole je najdominantniji, zauzima ugaonu poziciju na parceli i u direktnoj je interakciji sa okruženjem.
“Objekat je podeljen na krilo namenjeno nižim razredima i krilo namenjeno višim razredima škole koja se spajaju na samom uglu, formirajući hol koji po potrebi postaje višenamenski, svečani prostor”, kaže arhitekta.
Ovaj hol sa atrijumom po vertikali direktno je povezan sa unutrašnjim dvorištem, dok na prvom spratu atrijum uz sebe vezuje biblioteku, a na drugom čitaonicu.
“Ovi prostori zauzimaju najatraktivniju poziciju u objektu. Korisnički pristupi koncipirani su tako da se omogući nezavisno korišćenje svih delova kompleksa. Tako aktivnost kompleksa postaje celodnevna, a bazen i sala imaju mogućnost da se koriste i van radnog vremena škole”, ističe Grahovac.

Sala i bazen su konstruisani od lepljenog lameliranog drveta pa se motiv šume i drveta čita i u unutrašnjem prostoru.
U kompleksu je primetna gradacija otvorenosti objekata prema spoljnom okruženju – objekat škole je u potpunosti otvoren ka dinamici okruženja, ali svojom formom pravi unutrašnji, zaštićeni ambijent namenjen igri i druženju.
“Objekat sale otvara svoju uličnu fasadu ali krije svoje sadržaje dodatnom denivelacijom sportskog terena, a objekat bazena je u potpunosti zatvoren za okruženje i otvara se samo ka šumi. Sala i bazen su konstruisani od lepljenog lameliranog drveta pa se motiv šume i drveta čita i u unutrašnjem prostoru”, objašnjava sagovornik Gradnje.

Korišćena tri tipa fasade
Grahovac ističe da je energetskoj efikasnosti posvećena velika pažnja i ti zahtevi su ispunjeni primenom savremenih materijala i obnovljivih izvora energije.
Korišćena su tri tipa fasade – ventilisana fasada sa falcovanim limom kao završnom obradom, kontaktna fasada i staklena zid zavesa.
“Materijalizacija fasade i krova je istovetna, tako da objekat ostavlja monolitni utisak. Monolitnost ulične fasade se prekida kontinualno, u jasnim i dugačkim potezima, dok je dvorišna fasada znatno dinamičnija”, navodi Grahovac.

Celokupan kompleks škole u potpunosti je prilagođen osobama sa posebnim potrebama.
Škola „Svetozar Marković“ u Sjenici projektovana je za 960 učenika i za rad u jednoj smeni. Ukupna bruto površina objekta iznosi 9.870 kvadrata.
“Celokupan kompleks škole u potpunosti je prilagođen osobama sa posebnim potrebama, dok sadržaji odgovaraju najvišim standardima obrazovanja” – ističe na kraju osnivač Studija A&D Architecture.
Grafički prilozi
Foto-galerija

























Odlično izgleda, sada polako isto tako za sve ostale škole
Po kom osnovu se dobijaju poslovi za objekte od javnog značaja?
Zar nisu kružne stepenice zabranjene u javnim objektima?
spolja izgleda odvratno, kao hangar. uopste se ne uklapa u okruzenje, mada danas arhitekte samo zele paznju i da budu drugaciji tkd nista novo