Onia Exceptional Homes: Kako izgleda savremeno stanovanje u samom centru Budve
Kako se savremeni stambeni objekat uklapa u gusto urbano tkivo Budve, na spoju starog grada, obale i nove gradnje.
U jednom od najosetljivijih urbanih poteza Budve – na spoju starog grada, obalskog šetališta i guste savremene izgradnje – realizovan je stambeni objekat Onia Exceptional Homes. U okruženju u kome se novi objekti često bore za svaki metar prostora i pogleda, ovaj projekat nastaje kao pokušaj da se savremeni stambeni standardi usklade sa lokalnim graditeljskim nasleđem i prostornim ograničenjima istorijskog jezgra grada.
Investitor projekta je kompanija Belmont Developments d.o.o. iz Bara, dok je kompletno arhitektonsko rešenje objekta, uključujući i enterijere svih stambenih i zajedničkih prostora, povereno podgoričkom studiju NRA Atelier.
Radovi na izgradnji započeti su 2022. godine, a objekat je danas u potpunosti realizovan. Sa ukupnom površinom od 3.375 metara kvadratnih, Onia Exceptional Homes je tokom 2025. godine već prepoznat na međunarodnoj sceni, osvojivši pet arhitektonskih nagrada.
Pročitajte još na Gradnja.rs:

Grbaljski kamen u tehnici suvomeđe
Kako objašnjavaju arhitekte, vizuelni identitet objekta zasniva se na čistim linijama, smirenoj paleti i pažljivo biranim materijalima. „Svetli i zemljani tonovi omogućavaju skladno uklapanje u gusto urbano tkivo Budve, dok fasadne obloge unose suptilan kontrast i naglašavaju eleganciju omotača“, kažu iz NRA i dodaju:
„Ulazni prostor je projektovan kao prepoznatljiv arhitektonski akcenat: grbaljski kamen u tehnici suvomeđe unosi mediteranski duh i predstavlja omaž lokalnoj tradiciji, čija je vrednost danas posebno prepoznata jer je tehnika zidanja na suvo uvrštena na Uneskovu listu nematerijalne baštine“.

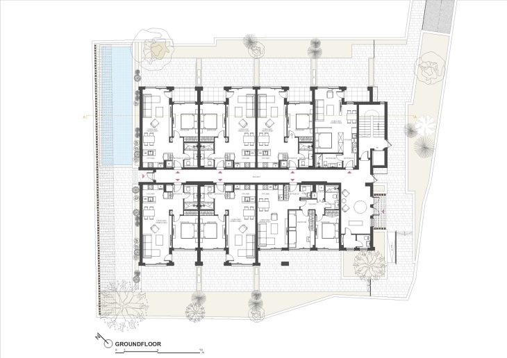
Svaki od 28 stanova projektovan je tako da obezbedi visok nivo udobnosti kroz optimalnu orijentaciju, promišljen raspored i veće površine.
Funkcionalna organizacija je razvijena sa jasnim fokusom na potrebe savremenog života. Svaka od 28 stambenih jedinica projektovana je tako da obezbedi visok nivo udobnosti kroz optimalnu orijentaciju, promišljen raspored i veće površine stanova, definisane isključivo sa ciljem unapređenja kvaliteta stanovanja.
„Stanovi u prizemlju dodatno su obogaćeni privatnim dvorištima od najmanje 30 m², što u urbanom kontekstu Budve predstavlja retku i vrednu prednost. Zajednički sadržaji uključuju recepciju, grejani bazen na dve etaže i zelene površine koje doprinose osećaju privatnosti i komfora“, objašnjavaju iz studija.

Estetski koncept fasade je osmišljen tako da jasno istakne spratnost objekta i unese ritam u njegovu ukupnu volumetriju.
Fasada objekta je oblikovana kao spoj savremenog arhitektonskog izraza i lokalnog graditeljskog nasleđa. Poštujući princip duha mesta, projektantski tim se opredelio za kombinaciju dva materijala koji se međusobno nadopunjuju – ventilisane fasade od Fundermax Max Compact Exterior HPL panela i grbaljskog kamena u stilu tradicionalne suvomeđe.
„Ovaj sistem je odabran zbog izuzetnih tehničkih performansi, ali i zbog mogućnosti da se kroz preciznu obradu i paletu tonova postigne čist, savremen vizuelni izraz koji naglašava arhitektonsku eleganciju objekta i stvara kontrast grbaljskom kamenu“, navode arhitekte iz NRA i nastavljaju:
„Estetski koncept fasade je osmišljen tako da jasno istakne spratnost objekta i unese ritam u njegovu ukupnu volumetriju. Kombinacijom belih i smeđih panela postignut je sklad između kontrasta i uklapanja u gusto urbano okruženje Budve. U tom okviru, ventilisana fasada donosi savremen izraz koji se razlikuje od okolnih objekata, ali istovremeno zadržava poštovanje prema vizuelnom identitetu lokacije“.

Značaj orijentacije objekta
Projektantski tim je pristupio ovom zadatku sa jasnom namerom da otvori objekta budu pozicionirani tako da u najvećoj mogućoj meri izbegnu direktno usmerenje prema susednim zgradama, čime se korisnicima obezbeđuje veći stepen privatnosti i vizuelnog komfora.
„Objekat je postavljen u pravcu severozapad-jugoistok, što se pokazalo kao optimalno rešenje u datim urbanističkim uslovima. Ovakva orijentacija omogućava ravnomernu distribuciju prirodne svetlosti tokom dana, uz smanjenje rizika od pregrejavanja u letnjim mesecima, što doprinosi energetskoj efikasnosti i termalnoj udobnosti stambenih jedinica“, navode iz NRA Ateliera i dodaju:
„Jutarnje sunce obasjava jugoistočne fasade, dok severozapadna strana prima prijatno difuzno svetlo u popodnevnim satima, bez izlaganja intenzivnom zapadnom suncu. U datom kontekstu, ovakva orijentacija dodatno doprinosi osećaju prostorne otvorenosti i vizuelne rasterećenosti, omogućavajući korisnicima da uživaju u prirodnom osvetljenju i ventilaciji, bez kompromisa po pitanju privatnosti“.

Jasno razdvajanje privatnih i zajedničkih zona
U skladu sa principima funkcionalne logike i prostorne ekonomije, unutrašnja komunikaciona šema je oblikovana prema logici pristupa i ograničenjima parcele. Glavno stepenište je pozicionirano na severoistočnoj strani objekta, delu koji je najmanje otvoren prema okolini – čime su prostori sa većim potencijalom za prirodno osvetljenje i vizure rezervisani za stambene jedinice.
Ova strana parcele bila je i jedina koja je omogućavala kolski i pešački pristup. „Takav raspored je omogućio racionalnu organizaciju unutrašnjih tokova kretanja i jasno razdvajanje privatnih i zajedničkih zona“, navode podgoričke arhitekte.
Stepenište, iako funkcionalno diskretno, projektovano je sa pažnjom prema detaljima i materijalizaciji, doprinoseći ukupnom estetskom utisku zajedničkih prostora. Njegova pozicija obezbeđuje efikasnu povezanost svih etaža, uz optimalno korišćenje površina namenjenih stanovanju.

Krov objekta je izveden u beloj boji, što osim estetskog utiska ima i jasnu funkcionalnu ulogu u smanjenju apsorpcije sunčevog zračenja.
Energetska efikasnost objekta je rezultat niza pažljivo donesenih projektantskih odluka koje kombinuju savremene tehnologije sa promišljenim prostornim rešenjima. Neki od ključnih elemenata su ventilisana fasada sa Fundermax HPL panelima, Alumil aluminijumska bravarija sa termo-prekidom, Velux krovni prozori, kao i racionalna orijentacija objekta koja omogućava optimalno korišćenje prirodne svjetlosti i ventilacije.
„Krov objekta je izveden u beloj boji, što osim estetskog utiska ima i jasnu funkcionalnu ulogu u smanjenju apsorpcije sunčevog zračenja. Svetle površine reflektuju veći deo sunčeve svetlosti u odnosu na tamne, čime se ublažava pregrevanje tokom letnjih mjeseci i doprinosi stabilnijoj unutrašnjoj temperaturi“, objašnjavaju iz studija NRA Atelier.
Kompletno opremanje Hansgrohe sistemom je realizovala kompanija Entext. Unutrašnji zidovi su izvedeni od Xella Ytong Fono blokova, koji obezbeđuju zvučnu izolaciju do 55 dB, a u kombinaciji sa dodatnim slojevima i pravilnom ugradnjom postižu i do 70 dB akustične zaštite.
Jasne linije u enterijeru
Enterijeri su oblikovani u duhu savremenog minimalizma, sa naglaskom na prirodne materijale, jasne linije, visok standard završne obrade i kvalitet materijala, a izvođenje svih enterijerskih radova, kako u stanovima, tako i u zajedničkim prostorima, realizovala je kompanija Lamex iz Danilovgrada.

Međunarodno nagrađivani projekat
Objekat Onia Exceptional Homes dobitnik je pet međunarodnih nagrada u 2025. godini: BIG SEE Architecture Award, ICONIC Design Award, BLT Built Design Award (Honorable Mention), International Design Award (Silver Winner) i Architecture MasterPrize (Honorable Mention).











