Od Dva arhitekta: Mirna kuća u gusto naseljenom delu Zagreba
U centru Zagreba, podignuta je nova kuća koja poštuje liniju postojećih objekata ali je podignuta iznad nivoa ulice kako bi se obezbedila privatnost.
Arhitekonski biro Dva arhitekta dobio je zadatak da u glavnom gradu Hrvatske isprojektuje porodičnu kuću koja će ispoštovati uličnu arhitekturu ali će pritom obezbediti novim vlasnicima mir i privatnost. Komšiluk je gusto naseljen i u njemu se nalaze prilično velike kuće. Zbog toga je ova kuća na trapezastom placu otvorena prema dijagonali gde se pruža pogled istovremeneo se krijući se od komšijskih pogleda koji je okružuju.
S dvorišne strane, enterijer se proširuje ka eksterijeru pomoću najvećeg otvora u fasadi.
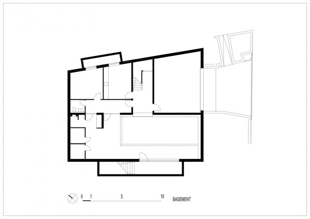
Kuća je podignuta od terena kako bi se dodatno kuća izolovala od komšilika. Dva nivoa kuće nalaze se iznad terena, dok je ispod terena garaža i bazen.
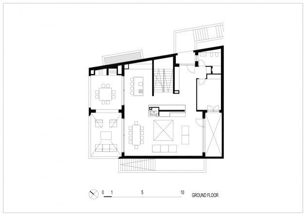
Dnevna soba u prizemlju orijentisana je i ka dvorištu na zapadu i ka ulicu na istoku.
Kombinovanjem izrazito tamnih i izrazito svetlih površina postignut je kontrast u enterijeru.
Foto: Bosnic&Dorotic















