Niška kuća u nizu rekonstruisana za savremen život jedne porodice
N House od 408 kvadrata karakterišu jednostavne pravougaone forme, svedene boje i materijali, a u cilju što skladnijeg uklapanja u ambijent.
Niška arhitektonska firma Polyarch Studio, koja stoji iza idejnog rešenja hotela od 490 kvadrata na Kopaoniku i kuće Sheep House na hrvatskom ostrvu Pagu, potpisuje i rekonstrukciju porodičnog stambenog objekta spratnosti P+2+Pk u gradu na Nišavi.
Želja investitora bila je nov i atraktivan stambeni prostor prilagođen zahtevima savremenog stila života jedne porodice, sa takvim oblikovanjem i materijalizacijom da se objekat uklopi u ambijent i ne naruši postojeće okruženje.
Detaljnom analizom zahteva klijenta, niški arhitekti došli su do funkcionalnog i oblikovnog rešenja objekta. Projektom rekonstrukcije obuhvaćena je izrada fasadnih i unutrašnjih zidova, zamena stolarije i završni unutrašnji radovi.
Pročitajte još na Gradnja.rs:
- Arhitekta se preselio na gradilište da bi vodio rekonstrukciju štale u dom
- Počela rekonstrukcija centralne kule na Starom sajmištu u Beogradu

Uklapanje u ambijent kuća u nizu
Objekat karakterišu jednostavne pravougaone forme, svedene boje i materijali, u cilju što skladnijeg uklapanja u ambijent, koji pretežno čine kuće u nizu.
„Moderan i upečatljiv izgled objektu pružaju alubond paneli drvenog dezena i betonska tehnika kojom su obrađeni delovi terasa, što u kombinaciji sa staklenim portalima i ogradama čini jedinstven vizuelni sklad“, kažu za Gradnju iz Polyarch Studija.
Osnovna ideja bila je stvaranje jedne celine u funkcionalnom i estetskom smislu, kako spolja tako i unutar objekta.
Predmetni objekat je sastavni deo kuća u nizu, koje mahom dominiraju ulicom u kojoj se objekat nalazi, a prilikom rekonstrukcije fasade sagledani su i okolni objekti.
Stoga je objekat jednostavne pravougaone forme kako bi se ispratila dinamika susednih objekata, ali i kako bi se stvorila jedna upečatljiva moderna fasada.
„Još jedan bitan aspekt je predstavljalo i dvorište iza objekta. Dodavanje i popločavanje staza, kao i raspored biljaka i drveća uređeni su u skladu sa fasadom objekta i na taj način stvorili jednu kompaktnu celinu“, kažu arhitekte.

Materijalizacija
Objekat je građen kao zidana konstrukcija čiji su zidovi povezani horizontalnim i vertikalnim armirano-betonskim serklažima, objašnjavaju dalje iz Polyarcha.
Fundiranje temelja je izvedeno na trakastim temeljima na odgovarajućoj dubini, dok su temeljni zidovi izrađeni od armiranog betona, izlivenog u obostranoj daščanoj oplati, i ojačani su horizontalnim i vertikalnim AB serklažima.
Noseći zidovi u objektu su izgrađeni od giter blokova u produžnom malteru, a međuspratna konstrukcija je sitnorebrasta armiranobetonska, i to tipa MK-TM3 iznad prizemlja (visine 16 + 4 cm) i tipa MK-LMT iznad spratova (visine 14 + 4 cm).

Najveći izazov bio je uklapanje u postojeću strukturu objekta, a da se pritom odgovori na sve zahteve investitora.
Objektom dominira demit fasada u kombinaciji sa alubond panelima drvenog dezena i betonska tehnika koja je prisutna na pojedinim delovima fasade, pretežno u obradi terasa.
Akcenat je na velikim aluminijumskim portalima i natkrivenim terasama koje formiraju kubus koji doprinosi dinamici fasade. Stolarija je od aluminijuma sa termoprekidima sa klasičnim mehanizmima otvaranja.
Kako naglašavaju autori, prilikom projektovanja najveći izazov bio je uklapanje u postojeću strukturu objekta, a da se pritom odgovori na sve zahteve investitora.
„Cilj kojem smo težili bio je da se omogući pre svega dobra komunikacija u kući i u dvorištu, ali i da se objekat rekonstrukcijom postojeće fasade vizuelno uklopi u okruženje“, navode iz Polyarcha.

Program
Objekat je orijentacije severozapad-jugoistok, a glavni ulaz u objekat je sa severozapadne fasade.
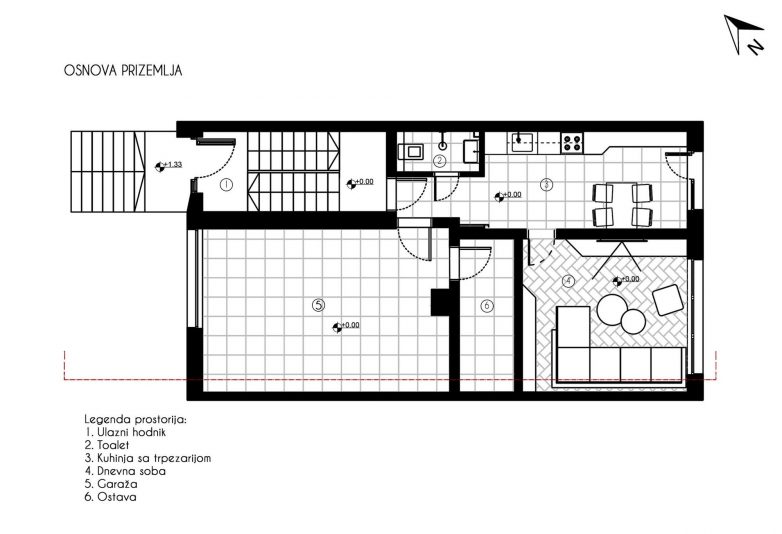
Prizemlje se koristi kao tehnička etaža, na prvom spratu je jedna stambena jedinica, dok drugi sprat i potkrovlje čine zasebnu stambenu jedinicu.
Prizemlje je izvedeno kao tehnička etaža, tu se nalazi garaža sa svojom ostavom, ostava i servisna prostorija. Na samom ulazu u objekat je pozicionirano dvokrako stepenište koje predstavlja vertikalnu vezu sa spratovima.

Dizajn enterijera za moderan i otvoren dom
Kako dalje dodaju iz Polyarcha, enterijerom dominira drveni dekor u kombinaciji sa sivom bojom, a kontrast tome postignut je belom bojom na zidovima i detaljima u nameštaju. Autentičnom izgledu ovog prostora doprinosi crvena opeka, neobičan oblik plafona i razni detalji.
„Uprkos industrijskom stilu, ovaj dom odiše toplinom. Ovo je postignuto zahvaljujući velikoj količini prirodne svetlosti, dekorativnim jastucima, mekim tkaninama i tepisima“, zaključuju na kraju iz Polyarcha.
Grafički prilozi
Foto-galerija
Faktografija
N House
Niš, Srbija
Polyarch Studio
2019.
408,50 m2
P+2+Pk
Mladen Jovanović








Umesto da se gradilo u starom srpskom stilu pa da imamo jedinstvena, prepoznatljiva naselja kao što su normalne zemlje radile, mi imamo bućkuriš u arhitekturama naselja , frankenštajnske sklepotine. Ovako nešto se vidja na zapadu, imitacija već postojećeg ništa origibalno.