Modularni objekti iz Vrčina: Od ideje do useljenja za samo dve nedelje
Arhimod objekti grade se brzo, bezbedni su i energetski efikasni, a mogu se i naknadno proširiti bez rizika od oštećenja ili narušavanja postojećeg dizajna.
Tradicionalna gradnja često podrazumeva duge rokove, nepredviđene troškove, kao i neizvesnost u svim fazama planiranja i izgradnje objekta do konačne realizacije željenog cilja.
Kao protivteža, u svetu i kod nas sve češće se javlja potreba za modularnom gradnjom, posebno u situacijama kada stambeno pitanje želi da se reši na bezbedan, kvalitetan i energetski efikasan način, a da se pritom značajno uštedi na vremenu.

Mogućnost naknadnog proširenja
Iako je jedno vreme bilo uvreženo mišljenje da je modularni način gradnje „arhitektura bez slobode”, danas modularne zgrade ispunjavaju sve kriterijume i zahteve modernih i održivih nekretnina, bilo da je u pitanju udoban dom za svakodnevni život ili vikendica u prirodi, na obali, planini ili bilo kojoj drugoj lokaciji .
Kako za naš portal navodi Milomir Ćurčić iz kompanije Arhimod iz Vrčina, montiranje i izgradnja modularnih objekata radi se prema individualnim potrebama i zahtevima svakog klijenta.
Princip ovakve gradnje, podrazumeva i da u svakom momentu postoji mogućnost naknadnog proširenja već izgrađenog prostora bez rizika od oštećenja ili narušavanja postojećeg dizajna.
Čitav proces od ideje i realizacije do useljenja Arhimodovih objekata traje samo dve nedelje.
Takođe, jednom sagrađen objekat može se u budućnosti preneti na bilo koju drugu lokaciju ili pak renovirati i promeniti njegov kompletan dizajn, a sve u roku od samo nekoliko dana.
„Svi naši objekti su građeni od najkvalitetnijih materijala, moderni su, dugotrajni, energetski efikasni i, što je najvažnije, visoko su bezbedni”, kažu u Arhimodu, dodajući da zemljotresi, klizišta i druge elementarne nepogode ne mogu srušiti objekat niti mu pričiniti značajnu materijalnu štetu. U slučaju poplave, renoviranje i vraćanje u prvobitno stanje može trajati najduže četiri dana.
Arhimodovi objekti grade se u skladu sa CE i ISO, najvišim svetskim građevinskim standardima, a čitav proces od ideje i realizacije do useljenja traje samo dve nedelje.
Različiti moduli i njihovo kombinovanje
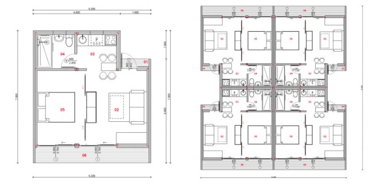
Postoje višenamenski objekti od 30 do 168 metara kvadratnih (neto) koji su mogu kombinovati iz različitih modula u zavisnosti od želje kupaca. To su i polumoduli koji su napravljeni iz razloga da bi se mogla proširiti spavaća soba ili dnevni boravak i na taj se objekat može prilagoditi kupcu.

Od čega se prave modularni objekti
Moduli se prave od čelične konstrukcije koji su koncipirani tako da mogu da stanu u gabaritni transport.
Pod objekta se pravi od pocinkovanog lima pa je objekat dugotrajan. U zavisnosti od opremljenosti, modularni objekti mogu sa različitim nivoom izolacije pa tako kuća može doći doći sa 10 centimetara vune plus 10 cm fasadnog panela sa tvrdopresovanom kamenom vunom, što zadovoljava energetsku efikasnost do klase A.
Objekat dolazi na lokaciju završen 80 posto, a potom se na licu mesta rade završni radovi.
Od kafića do turističkih kompleksa
Na sve objekte dobija se višegodišnja garancija na materijale kao i na građevinske radove, dok nivo opreme klijent bira prema svom ličnom stilu i potrebama, kažu u Arhimodu.
Pored stambenih objekata, vikendica ili bungalova za odmor, ova kompanija gradi i višenamenske komercijalne objekte većih kapaciteta.
Turistički kompleksi na atraktivnim lokacijama, sve vrste kolektivnog smeštaja većih kapaciteta, vrtići, škole, starački domovi, hoteli, kolektivni centri, mini tržni centre i prodavnice – sve se ovo danas može podići uz pomoć modularne gradnje.
Iz Arhimoda napominju da imaju i idealna rešenja za montažne kancelarije, restorane, kafiće i druge objekte po želji klijenta.
Cena modularnih objekata
I naravno, sve na kraju interesuje koliko to košta. Cena modularnih objekata Arhimod košta od 550 evra po metru kvadratnom po sistemu ključ u ruke u zavisnosti od nivoa i kvaliteta opreme.
U ovaj iznos ulazi i cena montaže objekta, cena projekta za izradu temelja i projekat standardnih objekata.
Kontakt
Ako želite da posetite fabriku modularnih kuća i uverite se u kvalitet ovih objekata, ili su vam potrebne bilo kakve informacije o Arhimod proizvodima pozovite 060/060-7002 ili posetite sajt www.arhimod.com.













splav im je jako interesantan
Dobar dizajn ovih objekata i energetska efikasnost, kao i dobar odnos cena i kvaliteta je sve što je potrebno da imate kvalitetno stanovanje i objekat u duhu vremena.
Lepo, jednostavno, skromno.
Obični kontekneri samo lepo ofarbani. Lepo je ovo ali 550 evra je previše. Druga stvar, sve je ovo tanko, odzvanja dok hodaš… Montažne Ok, brvnare OK, čak su i jeftinije, ovo ne vredi toliko
Samo mi nije jasno kako si ti to sve video i procenio?! Neznas razliku izmedju kontejnera i modularne gradnje. Da li si ikada bio u nekom takvom objektu pa znas da škripi? Jedino,ako si bio u mobail home,ali je to razlika dupe i oko. Ja sam posetio ovu firmu i stvarno je za svaku preporuku. Odnos cene i kvaliteta je super i daleko bolje od svega što poštoji na našem tržištu. Ne uporedivo sa brvnarama i montažnim kucama koje su daleko ispod ovog nivoa.
Realno za nas standard i cenu je u pravu,u sopstvenoj reziji garantujem mnogo manju cenu.Kvalitet izrade konkretno ne mogu da komentarisem jer nisam video.
Da li montirate kuce u BiH.Hvala
Postovana gospodo
Kakva je razlika izmedju vase modularne kuce i kontejnerske kuce?
Dobar dan, gradite i u CG na more? Hvala
@Mićko aj ti lepo u osnovnu ponovo pa lagano ispocetka od azbuke pa dalje
Nije mi jasno kako ovo moze da kosta isto kao montazna kuca (ista je cena kvadrata)?