Moderna interpretacija tradicionalne bele kuće na Santoriniju
Sa blistavo belom fasadom u skladnom kontrastu sa plavetnilom neba i vode, ova letnja vila predstavlja razigranu verziju tradicionalnih grčkih kuća na moru.
Bela, kubična struktura, čiji projekat potpisuje studio Kapsimalis Architects, zamišljena je kao savremena verzija tradicionalnih potpuno belih kuća s plavim prozorima koje se mogu videti širom Santorinija.
Kuću jednostavno nazvanu Summer Villa, ukupne površine 600 kvadratnih metara, arhitekte su osmislile kao sintezu kubičnih belih volumena čija međusobna razigranost kreira mnogobrojne prostore za uživanje i razonodu, s pogledom usmerenim na Egejsko more.

Projektom je reintepretirana tradicionalna bela kuća na Santoriniju ali bez plavih prozora.
Neki od spoljašnjih zidova objekta imaju istaknute otvore, koji uokviruju raznovrsne poglede, dok se određene strukture ukrštaju formirajući natkrivene prolaze. Uz korišćenje bele boje na fasadi, time je dobijena moderna interpretacija tradicionalne bele kuće na Santoriniju.
Na krovu objekta i uz fasadu su zasađene raznovrsne vrste trave i vretenasta stabla masline kako bi se objekat što bolje uklopio u okruženje.
Međutim, glavni cilj projekta je bio da dizajn vile predstavlja kontinuitet ostatka hotela. Naime, Summer Vila je sastavni deo hotela Andronis Arcadia smeštenog na Santoriniju, piše Dezeen.


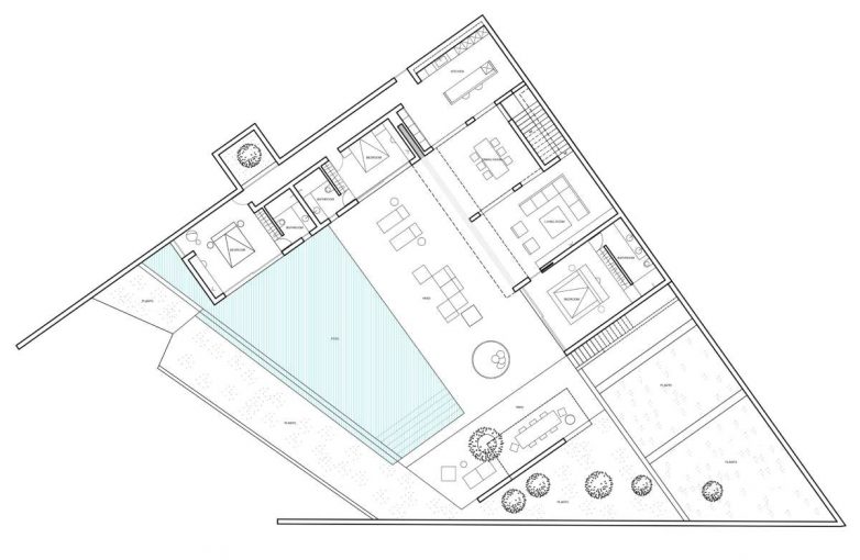
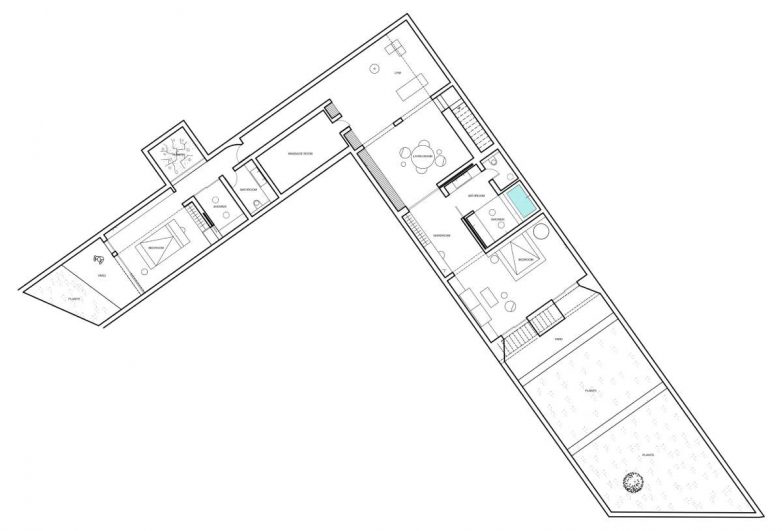
Unutrašnjosti vila veoma je jasno podeljena na tri nivoa. Na poslednjem spratu je smešten apartman za goste sa direktnim izlazom na terasu za sunčanje.



U enterijeru su prirodni tonovi i materijale kako bi se evocirao „letnji, udoban osećaj koji je u skladu sa načinom života na ostrvu“.
Zajednički prostori su organizovani u otvorenom konceptu i kreirani kroz prirodne tonove i materijale, kako bi se evocirao „letnji, udoban osećaj koji je u skladu sa načinom života na ostrvu“.


Enterijerski detalji
Nameštaj u vili je uglavnom od drveta ili svetlih tekstila, dok su elementi poput umivaonika izvedeni od prirodnog kamena, a možda i najzanimljiviji element, uzglavlje kreveta napravljen je od belih keramičkih blokova.


Gostima je na raspolaganju i teretana, koja ima i spa sobu, a na prostranoj terasi gde je postavljen i centralni bazen, nalazi se mnoštvo kreveta i ležaljki za potpuni užitak.

Grafičke podloge
Foto: Yiorgos Kordakis
Kad ste već ovde…




video sam ovu kuću ranije, ima mnogo boljih rešenja samo ne znam kako da vam poašljem da se šokirate koliko su dobri! od svega ovde mi se iskreno nameštaj jedino ne dopada , baš je loš!