M Invest Home na Voždovcu planira zgradu od 10 hiljada kvadrata
Nova zgrada se kaskadno povlači ka sredini fronta parcele čime se podiže kvalitet otvorenog prostora ali se ujedno i vizuelno širi profil ulice.
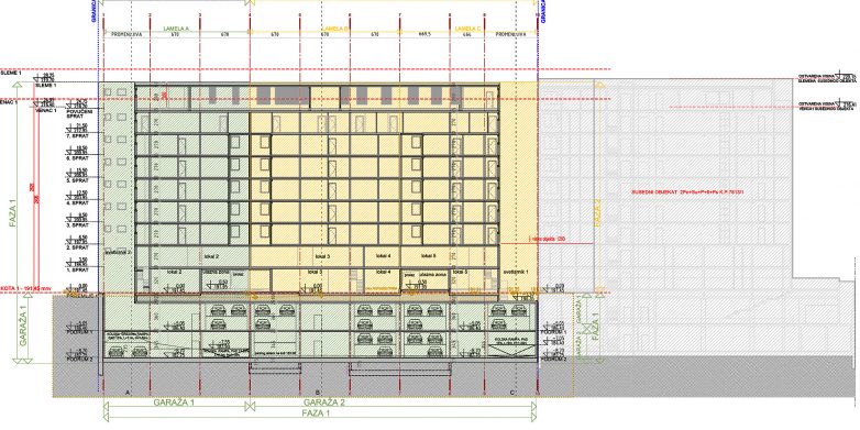
Između ulica Vojvode Stepe i ulice Druge Srpske armije na Voždovcu investitor M Invest Home planira izgradnju stambeno-poslovnog objekata 2Po+P+7+Ps od oko 10.000 kvadratnih metara. Urbanistički projekat, koji je na Javnom uvidu do 1. decembra, izradio je IBM Consult iz Beograda dok idejno rešenje objekta potpisuje studio Zabriskie.
Pročitajte još na Gradnja.rs
- U Vojvode Đurovića na Voždovcu niče nova stambena zgrada
- U Višnjici u planu izgradnja skoro 2.000 novih stanova
- Na granici Zvezdare i Vračara u planu novi gradski orijentir

Ka sredini fronta parcele planirani objekat se kaskadno povlači, podižući tako kvalitet otvorenog prostora.
Planirani objekat, postavljen kao dvostrano uzidani u odnosu na bočne granice parcele, imaće 13 lokala i 97 stambenih jedinica.
Planirani objekat je u zoni vezivanja na susedne objekte smešten na građevinskim linijama, nastavljajući se na postojeći objekat sa južne strane koji je smešten na građevinskoj liniji, a na severnoj granici iz razloga da ne sputava planom predviđenu novu gradnju na susednoj parceli da bude postavljena na građevinskim linijama.

Relaksiranje dugačkog kontinualnog fronta ulice
Ka sredini fronta parcele planirani objekat se kaskadno povlači, formirajući na taj način proširenja prednjih dvorišta ka obe ulice, koja dodatno podižu kvalitet otvorenog prostora omogućavajući formiranje kvalitetnih većih zelenih i uređenih slobodnih površina u pojasevima uz ulicu, navodi se u projektu.
Ovako oblikovanim volumenom se, takođe, relaksira dugačak kontinualan front planom predviđen u ulici Vojvode Stepe u predmetnom bloku, i vizuelno se širi profili ulice.
Kaskadno povlačenje volumena je dodatno omogućilo da stanovi putem ugaonih terasa i prozora budu primarno orijentisani ka proširenjima prednjih dvorišta, pre nego ka saobraćajnicama.

Obezbeđeno 135 parking mesta
U četiri lokala smeštena u prizemlju pristupa se iz ulice 2. Srpske armije, a prustup u devet lokala na etaži prizemlja je omogućen iz obe ulice.
Kolski pristupi rampama kojima se ulazi u podrumske nivoe su formirani iz ulice 2. Srpske armije. U dve podzemne podrumske garaže, na dva nivoa, obezbeđeno je ukupno 135 parking mesta od čega je sedam predviđeno za osobe sa posebnim potrebama.

Javni uvid do 1. decembra
Javna prezentacija stambeno-poslovnog objekta na Voždovcu biće organizovana od 24. novembra do 1. decembra do kada je rok da se podnesu primedbe i sugestije na ovo rešenje.
Kad ste već ovde…

Očajno….
Obzirom na kontinuirani front ulice, dali su predviđeni pasaži za bolju komunikaciju ulice sa dvorištem?
A da neko otvori prolaz/ulicu koja bi izlazila iz naselja u ulicu V. Stepe?
Prolaz je otvoren 1. novembra. Deo trase se vidi na slici 2.
ma dobro, ovo je klasična tezga zabriskog, od nečeg mora i da se zarađuje ! realno to je ružan kraj i neka se sređuje. što je najvažnije u čitavoj jadnoj srpskoj priči!
А инфраструктура, а ПАРКИНГ?????
Vide se parkinzi u preseku. Lepo piše u tekstu „obezbeđeno je ukupno 135 parking meste“.
Dosta zanimljiv stambeni sklop i zanimljiva struktura stanova.
Kombinacija povlačenja u odnosu na građevinsku parcelu i ubacivanje bočnih svetlarnika stvorili su jednu razuđenu osnovu i sasvim novu tipologiju zgrada.
Postaviti čak 6 stanova na jedno stepenišno jezgro je zaista veština.
Stanovi su male kvadrature. Ne deluje mi da je investitor tu arhitektama dao previše slobode…