Kuća u Sarajevu sa zidovima od hrasta
Dogradnjom kuće iz osamdesetih godina stvoren je Half House sa zidovima od hrasta koji su zamišljeni kao unutrašnje transformabilne fasade.
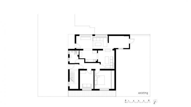
Studio Projekt V Arhitektura, na čelu sa Vernes Čaušević i Lucy Dinne, dobio je zadatak da osmisli dogradnju „garsonjere“ na bosansku kuću staru 40 godina. Vlasnici kuće, inače korisnik invalidskih kolica i njegova supruga, želeli su prostran i svetao prostor koji je pritom praktičan za život.
Postojeća porodična kuća sagrađena je osamdesetih godina prošlog veka i tokom svog životnog veka je rekonstruisana kroz niz spontanih intervencija i proširenja. Posledice ovakvih neplaniranih obnova su bile ograničen prostor za život, tj. onemogućeno kretanje u invalidskim kolicima i okupljanje velike porodice.
Dogradnja, koju su autori nazvali „Half House” (pola kuće), imala je za cilj da reaguje na spontani pejzaž posleratne arhitekture, kroz jednostavnu minimalističku arhitekturu koja uvodi pravilnost u svoje okruženje.
U funkcionalnom smislu, dogradnja je između samostalne garsonjere, prostora za okupljanje porodice i seoske vikendice.
„Garsonjera“ može da funkcioniše nezavisno od tela glavne kuće. Ona sadrži veliki trpezarijski prostor, dnevni boravak otvorenog plana, natkrivenu terasu sa roštiljem, toalet sa tušem i gornju galeriju za odmor i čitanje sa odličnim pogledom. U funkcionalnom smislu, dogradnja je između samostalne jedinice, prostora za okupljanje porodice i seoske vikendice, čime se obogaćuje mogućnosti korišćenja za ukućane.

Velika staklena vrata
Nova dogradnja dobila je oblik krova sa jednim nagibom i dva bočna zida, stvarajući dugačak prostor otvorenog plana koji daje osećaj preglednosti i prostranosti. Spajanje unutrašnjeg prostora sa dvorištem postignuto je staklenim kliznim vratima koja se otvaraju punom širinom prostorije.
Klizna vrata se sakrivaju u bočne zidove i rasterećuju pogled ka spolja. Tako se produžuje dnevni boravak na terasu i tokom leta se stvara osećaj velikog natkrivenog prostora na otvorenom.
Dugački bočni zidovi obloženi su panelima od prirodnog hrastovog furnira i protežu se čitavim prostorom.
Ključna karakteristika projekta su dugački bočni zidovi obloženi panelima od prirodnog hrastovog furnira. Zidovi se protežu čitavom visinom i dužinom trpezarijskog prostora i dnevnog boravka. Zamišljeni su kao unutrašnje transformabilne fasade, sa pažljivo dizajniranim otvorima za prozore, sedenje, police, ormariće, rasvetu i prostor za budući lift do galerije. Takođe, prostor menja ambijente u zavisnosti od dnevnih aktivnosti ukućana i dinamike zidova.
Zidovi asociraju na drvene elemente tradicionalne bosanske kuće.
Unutrašnji hrastovi zidovi uvode prirodu u prostor, referišući se na dramatične i opsežne šume. Zidovi takođe asociraju na drvene elemente tradicionalne bosanske kuće.
Ugradni plakari su inspirisani „Musandera“, tj. linijom dubokih ugradnih plakara koji se obično protežu duž cele dužine zida i kroz koje se ulazi u sobu. Galerija sa drvenom ogradom takođe podseća na drvene verande „Divanhana“ i „Kemarija“, ali za razliku od njih ona gleda na dvorište i dnevni boravak.
Galerija kao oaza mira
Galerija, sa ugrađenim policama za knjige, miran je prostor odvojen od ostatka kuće koji omogućava razmišljanje, čitanje, jogu i igru. Ovaj prostor se može koristiti i za spavanje, sa susednim ugrađenim ormarima za odlaganje stvari.
Spajanje starog i novog
Veliki otvor u drvenom zidu ispod galerije deluje kao granica između starog i novog dela. Otvor spaja novu garsonjeru s postojećom kuhinjom koja će takođe doživeti adaptaciju u drugoj fazi transformacije prizemlja kuće.
Umeće arhitekata da se poistovete sa okruženjem spontane gradnje i tradicionalnih elemenata je pozitivan primer prakse u kojoj se nasleđe adaptira za savremene potrebe korisnika i njihovog stila života. Krajnji razultat je dogradnja koja deluje toplo, prostrano i funkcionalno, baš kako su vlasnici želeli.
Faktografija:
- naziv objekta: Half House (prva faza)
- mesto: Sarajevo, Bosna i Hercegovina
- autori projekta: Vernes Čaušević i Lucy Dinne
- generalni izvođač: Nivelir
- konstrukcija: T&E Inženjering
- stolarija: Hano
- stolar: Mahir Šehić
- godina: 2019.
- površina: 90 m2
- fotografija: Projekt V Arhitektura
Grafički prilozi
Kad ste već ovde…









