Kuća okrenuta unutrašnjem pejzažu s tri stabla
Oko krošnje drveća, arhitektura ove kuće na Ibici kao da lebdi, te zajedno čine harmoničan odnos prirode i izgrađenog.
Na čvrstim kamenim temeljima, bela, donekle apstraktna forma objekta naizmenično kombinuje otvorene i zatvorene prostore, što je čini idealnim životnim prostorom imajući u vidu da se nalazi u samom srcu Ibice. Iako je podignuta u ruralnom području, ona se na nalazi na samoj granici sa gradićem Santa Gertrudis čime je dobro povezana sa urbanim tkivom.
Arhitekte iz biroa Gallardo Llopis Arquitectos prilikom projektovanja rezidencijalnog objekta House of Three Trees (Kuća Tri drveta; prim.prev) kao polaznu tačku su uzeli volumetrijske aksiome prepoznatljive za lokalnu mediteransku arhitekturu, te ih zatim oblikovani svojim savremenim arhitektonskim jezikom.
Introvertni objekat okrenut je ka svom unutrašnjem pejzažu sa tri drveta.
Okružena susedima, na gotovo ravnoj podužnoj parceli, objekat je oblikovan kroz „introvertni karakter“ gde je arhitektura morala stvoriti svoj unutrašnji pejzaž ka kojem može biti otvorena, kažu arhitekte za ArchDaily.
Integrisanje spoljašnjih prostora u zapreminu objekta je prepoznato od strane arhitekti kao najefikasniji mehanizam za oblikovanje prelaznih ambijenata.
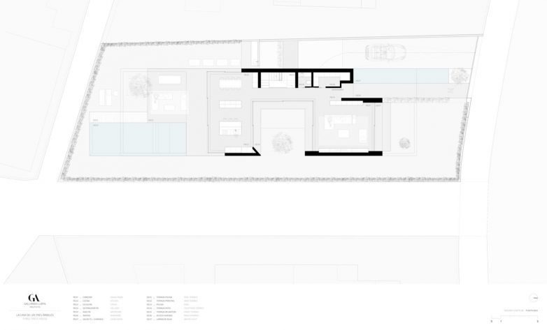
Kubusni volumen je „izrezan“ kako bi se omogućilo formiranje terasa na različitim visinama i sa različitim orijentacijama.
Vitki čempres, drvo masline i graciozna vrba
U skladu sa lokalnom mediteranskom kulturom ovi otvoreni prostori su ispunjeni ili se množe pre reći oblikovani biljkama, a ponajviše stablima tri drveta. Svojim karakterom, vitki čempres, drvo masline i graciozna vrba daju identitet svakoj terasi, ali i unutrašnjim prostorima koji su organizovani oko njih.
Stabla daju identitet svakoj terasi, ali i unutrašnjim prostorima koji su organizovani oko njih.
Neposredno prisustvo drveća kontroliše jačinu prodora sunčeve svetlosti u unutrašnjost i pravi prijatne zone hladovine na otvorenom.
Dok je u zoni prizemlja pravougaoni volumen potpuno eliminisan, u zoni sprata ostaje u formi obodnih konzolnih zidova, koji kreiraju zanimljiv okvir spoljašnjeg prostora.
Kuća prati uzdužnu osu koja prolazi kroz različite prostore, kako kroz zajedničke tako i kroz privatne prostorije, dok se mestimično prepliću sa spoljašnjim prostorima.
Funkcionalna organizacija
Kuća je organizovana prema jasnoj diferencijaciji funkcionalnog prostore. Na prizemlju, koji je otvoren i prozračan, smešteni su dnevne zone raspoređene tako da su usmerene prema određenim zonama na otvorenom.

Kubusni volumen je „izrezan“ kako bi se omogućilo formiranje terasa na različitim visinama i sa različitim orijentacijama.
Nivo sprata je rezervisan za privatne prostore i noćni prostor koji se otvara prema terasama, koje čuvaju intimnost spavaćih soba.
U nivou ispod tla smešten je garažni prostor, kao i pomoćne prostorije, koje mogu biti multifunkcionalne.
Grubi kamen i glatki zidovi
Materijalnost objekta izražava programsku razliku između dva nivoa kuće. Odnos između grube teksture klesanog kamena i glatkih belih površina naglašava postignutu ravnotežu između tradicije i savremenog.
Grafičke podloge
Kad ste već ovde…


















