Kružna 26: Stanovanje na visokom nivou
U Zagrebu je nikla zgrada koja svojim oblikovanjem fasade ali i unutrašnjom funkcijom prostora pomera granice stanogradnje.
„Zagrebačka škola arhitekture“ označava specifičnu arhitektonsku kulturu prostora koja podrazumeva racionalnost, funkcionalnost, ekonomičnost i primenu novih tehnologija, ali objedinjuje i kritička promišljanja elemenata tradicionalne, regionalne arhitekture, datosti podneblja i logike materijala. NFO (Neformalna grupa) čiji su osnivači Kata Marunica i Nenad Ravnić, nedavno je u Zagrebu realizovala višeporodični stambeni objekat koji po svojim ukupnim kvalitetima predstavlja istaknuti primer hrvatskog regionalizma.
Istureni balkoni nosioci su vizuelnog identiteta objekta, ali i produžetak stambenih sadržaja – veza prirode i svakodnevnice.
U haotičnom urbanizmu porodičnih kuća i stambenih zgrada, u neposrednoj blizini jarunske pijace, nikao je višeporodični slobodnostojeći stambeni objekat nesvakidašnjeg izgleda. „Uvjetovan zahtjevom za maksimalnim GBP-om od strane investitora i strogim uvjetima oblikovanja definiranim GUP-om, formiran je tamni volumen vrlo racionalnih proporcija i gotovo arhetipskog oblika kuće”, naglašava Kata Marunica.
Ograničena maksimalnim volumenom, zona arhitektonske intervencije svedena je na kontaktnu zonu unutrašnjeg i spoljašnjeg prostora. Istureni balkoni nosioci su vizuelnog identiteta objekta, ali i produžetak stambenih sadržaja – veza prirode i svakodnevnice.
Trostrana orijentacija stanova
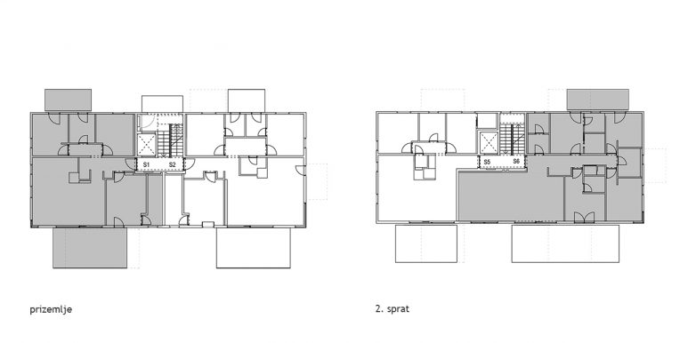
“Tlocrti stanova postavljeni su načelno i tokom projektiranja su individualizirani i prilagođavani željama kupaca”, ističe Marunica. Stambena zgrada Kružna 26 ima osam stanova – dva po etaži. Reč je o maloj, ali složnoj zajednici suseda.
Zbog malog gabarita objekta, orijentacija svakog stana je trostrana. Površina stanova je natprosečna i kreće se u rasponu od 93 do 153 kvadratnih metara. Organizacija stanova prati dnevni ritam korisnika, pa je podela na dnevnu i noćnu zonu aktivnosti jasno naznačena.
Struktura stanova po spratovima varira. Na prizemlju i prvom spratu nalaze se trosobni stanovi sa dva centra, dok se na trećem spratu nalaze dupleks apartmani. Na drugom spratu se nalazi jedan trosoban stan i jedan petosoban stan. U podrumskoj etaži, za svaki stan, nalazi se spremište i dva parking mesta.
Zgrada bez klime i radijatora
U ovom objektu nema radijatora, niti klima uređaja. Kontrola temperature u prostorijama vrši se putem sistema grejanja i hlađenja u plafonu. Za razliku od tradicionalnih, plafonski sistem grejanja i hlađenja ne stvara buku, ne uzrokuje kretanje i sušenje vazduha. Pored toga, štedi novac i energiju.
Površina stanova je natprosečna i kreće se u rasponu od 93 do 153 kvadratnih metara.
Novi stilovi života u gradu teže da sebi obezbede odgovarajući stambeni okvir. Gradska svakodnevnica koja se učestalo menja ne omogućava uspostavljanje statičkih šema, ali uslovljava pojavu novih stambenih potreba čije zadovoljenje ne leži u iskustvu i teoriji stečenih tradicijom. Za njihovo zadovoljenje neophodne su inovacija i originalne zamisli. Kroz savremenu interpretaciju ideja „zagrebačke škole arhitekture“, biro NFO svojim projektom Kružna 26 nadmašuje granice poznatih tipologija i doseže vrhunske rezultate na polju savremene stambene izgradnje.
Osnove

Faktografija:
- autor: NFO
- projektni tim: Kata Marunica, Damjan Kolundžić, Nenad Ravnić, Goran Rukavina, Dijana Pavić, Nikica Pavlović, Ivana Triva, Sara Vulić
- saradnici: Radionica statike d.o.o., Inspekting d.o.o., Termoprojekting d.o.o., Grid d.o.o., PBG d.o.o.
- investitor: Fakini d.o.o.
- godina projektovanja: 2017.
- godina realizacije: 2019.
- površina: cca 1500 m²
- fotografija: Bosnić+Dorotić
Kad ste već ovde…







