SADA je zamislio da od sada policijska akademija u Zemunu izgleda ovako
Studio A&D Architects (SADA) na čelu sa arhitektom Danilom Grahovcem potpisuje projekat atraktivnog objekta čiji se projekat nalazi na javnom uvidu.
Grad Beograd oglasio je javnu prezentaciju urbanističkog projekta za rekonstrukciju i dogradnju Naučno-stručnog školskog parka u zemunskoj ulici Pregrevica.
Nosilac izrade predmetnog urbanističkog projekta je beogradska firma Studio A&D Architects (SADA), kao glavni i odgovorni projektant potpisan je Danilo Grahovac, dia, dok je investitor Kriminalističko-policijski univerzitet (KPU) u Zemunu, najviša i jedina institucija za visoko obrazovanje policijskih službenika u Srbiji.
Pročitajte još na Gradnja.rs:

Predviđena fazna realizacija građenja
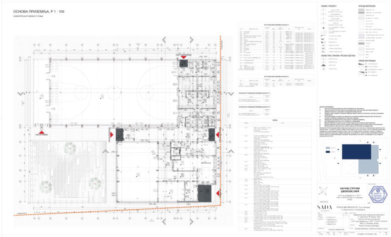
Objekat Naučno-stručnog školskog parka formiran je rekonstrukcijom postojećeg objekta fiskulturne sale Kriminalističko-policijskog univerziteta, pri čemu se deo objekta sa svlačionicama uklanja i dograđuje deo objekta spratnosti Po+P+2.
Predmet ovog projekta je rekonstrukcija i dogradnja objekata koji zajedno formiraju objekat Naučno-stručnog školskog parka, kao i dvorišne površine na kojoj se on nalazi.
Unapređenje funkcije fiskulturne sale
Kompleks se sastoji od objekta za obuku studenata KPU i policije kao i fiskulturne sale. Fiskulturna sala zadržava svoju postojeću namenu, uz unapređenje funkcije.
Na nivou podruma predviđena je filmska streljana, mala sala za borilačke sportove, teretana, svlačionice i ambulanta za sportsku medicinu.
Prostor za taktiku preduzimanja dokaznih i potražnih radnji je centralna prostorija u prizemlju koja predstavlja fleksibilan i adaptibilan prostor koji se može transformisati u prostorne jedinice različite strukture (npr. stanove, kafiće i slično).

Višenamenska prostorija sa sklopivim nameštajem može se prepakovati tako da se prostorija transformiše od sudnice do sale za sastanke i slično.
Na prvom spratu formiran je galerijski prostor – gledalište za 200 posetilaca sa kog se može posmatrati realizacija taktičkih vežbi u prizemlju.
Formirana je i višenamenska prostorija sa sklopivim nameštajem koji se može prepakovati tako da se prostorija transformiše od sudnice (prostorija za simulaciju suđenja u sklopu nastave na KPU) do sale za sastanke i slično, kao i dve manje prostorije za simulaciju i vežbe – prostorija za zadržavanje i prostorija za intervjuisanje i ispitivanje.
Na drugoj etaži nalazi se operativni centar u okviru dežurne službe (komandni centar, računarska oprema) sa prostorijom za dežurnog, kao i tri učionice za nastavu.
Prema novoprojektovanom stanju, ukupna bruto izgrađena površina Objekta B iznosi 614 m², Objekta A 2.138 m², što ukupno iznosi 2.752 m².

Primedbe i sugestije od 12. do 20. septembra
Kao i uvek, podsećamo da zainteresovana lica mogu tokom javne prezentacije da izvrše uvid u urbanistički projekat, kao i da svoje primedbe i sugestije na planirana rešenja u pisanoj formi dostave na pisarnicu Sekretarijata za urbanizam i građevinske poslove, ul. Kraljice Marije br. 1, i to u periodu od 12. do 20. septembra 2024. godine.







mega gadno
Otkad je Akademija Univerzitet?
da li će ovo biti najsmešniji projekat kao student druge godine da ga je radio? tonemo
Banalna arhitektura sa neuspelom opnom. Već toliko puta viđeno i istrošeno rešenje.
Šta je ovo drage kolege i prijatelji….? Kako se dobijaju ovakvi poslovi i zašto nema konkursa u pravom smislu reči, a ne samo da se poslovi dobijaju na osnovu “najniže ponuđene cene“ ili ko zna kako već?
uzmeš par kutija
staviš neke letve na fasadi
i eto ti arhitektura
Brutalna bruka. Sta vise reci na obradu?!