Novi kompleks u Bloku 63: U Jurija Gagarina u planu objekat od deset spratova
U objektu od skoro 40.000 kvadrata naći će se 192 stana, 15 poslovnih prostora, 20 poslovnih apartmana, kao i podzemna garaža na tri nivoa sa čak 365 parking mesta.
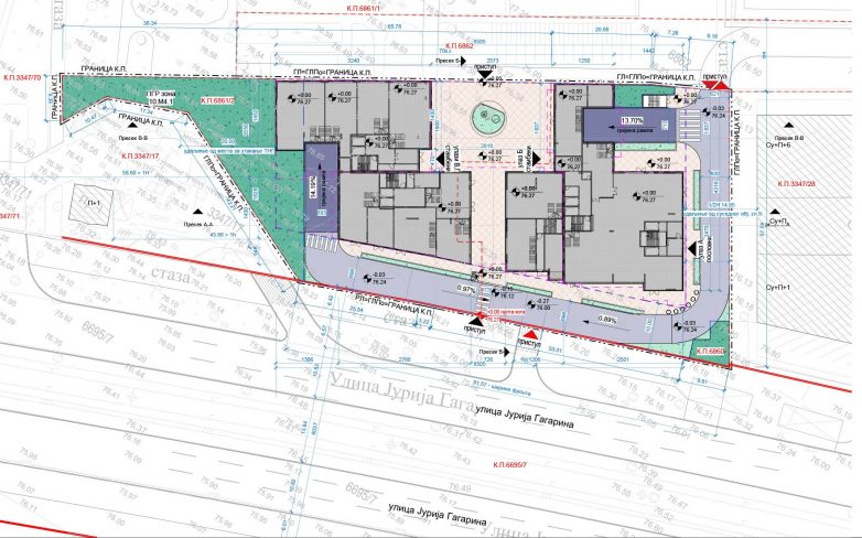
Grad Beograd stavio je do 9. maja na javni uvid urbanistički projekat za izgradnju stambeno-poslovne zgrade, spratnosti 3Po+P(+Ga)+9+Ps, u Ulici Jurija Gagarina broj 271 u Bloku 63 na Novom Beogradu.
Nosilac izrade i obrađivač projekta je preduzeće „Novi plan” d.o.o. iz Beograda, naručilac i investitor je Slađan Vrejić, takođe iz Beograda, dok je odgovorni projektant Slobodanka Ćuković, dia.
Pročitajte još na Gradnja.rs:
- Na Novom Beogradu planiran kompleks Newport od 50.000 m2
- U Bloku 11a na Novom Beogradu planira se kula do 80 metara

Na mestu KUD Rad
Urbanističkim projektom obuhvaćene su dve cele katastarske parcele u KO Novi Beograd, ukupne površine od 5.230 m², koje će spajanjem formirati građevinsku parcelu.
Parcela ima direktan pristup na Jurija Gagarina, dok je sa druge strane direktno oslonjena na planiranu dvosmernu, pristupnu kolsko-pešačku saobraćajnicu sa alejom za parkiranje.
Na građevinskoj parceli na kojoj će se graditi kompleks bio je srušeni KUD Rad.

Garaža na tri podzemne etaže
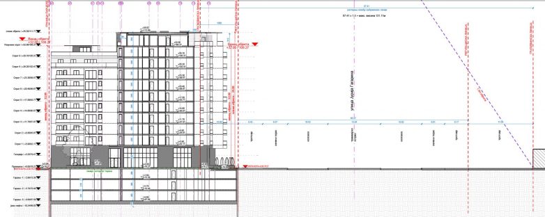
Na predmetnoj građevinskoj parceli predviđa se izgradnja stambeno-poslovnog objekta spratnosti -3Po+P(+Ga)+9+Ps, koji je po položaju na parceli slobodnostojeći.
Planirani objekat se sastoji od 3 podruma, prizemlja sa galerijom, 9 spratova i povučenog sprata. Objekat je podeljen u 4 lamele sa zasebnim ulazima i zajedničkom podzemnom garažom.
U podzemnim etažama, tj. u Podrumu -3, -2 i -1, smeštena je garaža koja se sastoji od parking mesta i prostora za horizontalnu i vertikalnu komunikaciju, kao i od tehničkih i pomoćnih prostorija.

U objektu su ukupno projektovana 192 stana, 15 poslovnih prostora, kao i 20 poslovnih apartmana.
U okviru prizemlja projektovani su poslovni prostori sa galerijom sa zasebnim ulazima u odnosu na stambeni deo objekta i komunikacije stambenog dela objekta.
Na spratovima od 1. do 9. i na povučenom spratu su projektovani stambeni prostori, prostori za komunikaciju i pomoćne prostorije i u lameli A poslovni apartmani i prostori za komunikaciju.
U objektu su ukupno projektovana 192 stana, 15 poslovnih prostora, kao i 20 poslovnih apartmana.
Ukupna bruto površina objekta iznosi 38.480 kvadratnih metara, od čega na nadzemni deo otpada 25.499 m², a na podzemni preostalih 12.981 m².

Pasaž u prizemlju objekta
Pešački prilaz objektu je u visini prizemlja. Od glavnog pešačkog pristupa do ulaza u stambene delove objekta pristupa se preko pasaža u prizemlju objekta, dok se u nastavku može pristupiti unutrašnjem dvorištu koji je takođe u nivou terena.
Svim poslovnim prostorima se može direktno pristupiti sa popločanja oko objekta na koti ±0.00, i sa kolsko-pristupne saobraćajnice.

Ukupno je ostvareno 365 parking mesta, od čega je čak 39 parking mesta namenjeno osobama sa posebnim potrebama.
Sve etaže objekta su u svakoj lameli povezane sa po 2 lifta i dvokrakim stepeništem, a lamela V i sa još jednim dodatnim stepeništem, dok su garaže dodatno povezane kolskim rampama i stepenicama za direktan izlazak na parcelu.
Parkiranje je rešeno na tri nivoa, a ukupno je ostvareno 365 parking mesta, od čega je čak 39 parking mesta namenjeno osobama sa posebnim potrebama.
Grafički prilozi
















Ovo je stvarno „kazna za oči“, da li može makar malo kreativnije da bude??
Zaista boli koliko svaku poljanu na nbg popunjavaju kvadratima.
Jedan mudar covek je rekao: „Kada vidite ovako lose rendere, odmah vam bude jasno da je cela sustina projekta da se sto vise pokrade…“
Sramotno sta se dopusta u ovoj zemlji
Tužno.
Katastar i urbanizam u Beogradu.
Kriminal.