Kad savršenstvo kruga i bogatstvo zelenila posluži kao glavna inspiracija za enterijer restorana
Lanac japanskih restorana Ryu otvoren je na još jednoj lokaciji ali ovoga puta on je potpuno otvoren ka prirodi koja ga okružuje.
Studio Ménard Dworkind architecture & design je pri oblikovanju enterijera ovog suši restorana kombinovao japanski senzibilitet sa savremenim pristupom projektovanju, dajući prioritet prirodnim materijalima koji će vremenom dobiti patinu.
Inspirisani japanskom zastavom i geometrijom kruga, arhitekte su oblikovale prostor na način da se ovaj geometrijski oblik javlja kroz čitav prostor, piše Contemporist.
Inspirisani krugom, arhitekte su oblikovale prostor na način da se ovaj geometrijski oblik javlja kroz čitav prostor.
U ovom restoranu otvorenog koncepta i kuhinja je postala deo istog prostora ali je od njega tek suptilno odvojena transparentnim panelima koji dopuštaju da gosti imaju nagoveštaj šta se u njoj dešava.
Stolovi su pretežno organizovani uz velike prozore ka uličnom frontu. Većina sedenja je izvedena kroz krivudavu formu, tako da su ti prostori prilično opušteni i udobni.
Kombinovanje svetlog drveta sa betonom, savršena je podloga za mnoštvo biljaka koje svetlost dobijaju i preko velikog svetlarnika.
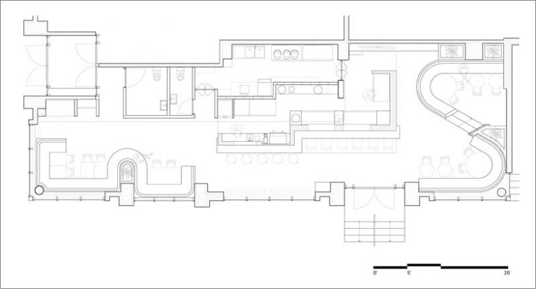
Osnova restorana:
Foto: David Dworkind
Kad ste već ovde…








