Ova prostrana vila od preko 370 m2 projektovana je u Eco Lux standardu; Foto: Relja Ivanić
Domaći projekti, Izdvojeno, Kuća godine 2020

Vila na lakat na Senjaku po projektu studija OBE

Kuća K House u elitnom delu Beograda ima fasadu od grafitnog stiropora, ali i brojne rekreativne sadržaje kao što su zatvoreni bazen, teretana, spa i prostor za masažu.

Kuća na lakat oduvek je bio simbol blagostanja. To je obično bila velika kuća koja se nalazila u elitnom delu grada ili na uglu glavnog sokaka. Porodice koje su baš htele da se pohvale koliko su imućne, stavljale bi dve kapije (iz svake ulice po jednu). No, danas je situacija malo drugačija. Porodice koje žele da predoče svoje bogatstvo, angažuju poznatog arhitektu.

Tipologija urbanih vila oduvek je podrazumevala preplitanje stambenih i rekreativnih sadržaja, dnevnih aktivnosti i svečanosti, rada i razonode. Reč je o kući gde se reprezentativno susreće sa svakodnevnim, a porodično sa svečanim. Pa tako, što je standard stanovanja veći, to prateći sadržaji zauzimaju primat nad stambenim.

O tome možda najbolje svedoči K House, urbana vila od 370 kvadrata na Senjaku, čiji su autori Jasna Kavran i Ksenija Pantović iz beogradskog Studija OBE. Naime, pored komfornih dimenzija, ova vila ima teretanu, spa i zatvoreni bazen, a projektovana i građena po Eco Lux standardu.

K House na Senjaku projektovana je po Eco Lux stambenom standardu.

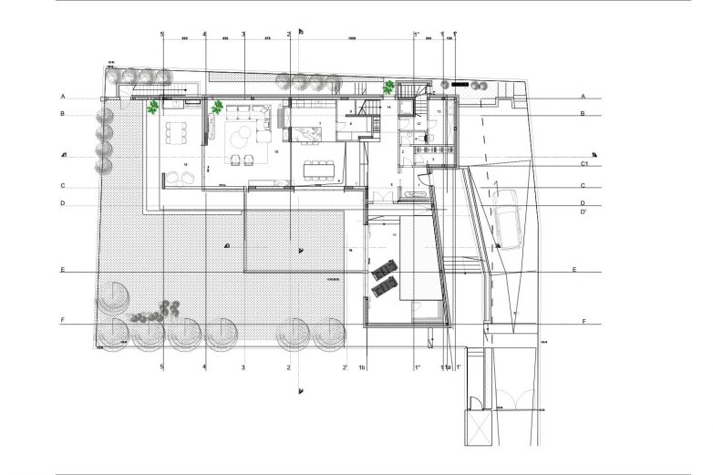
Jedan od glavnih zahteva klijenta bilo je formiranje što većeg travnjaka i otvorenog prostora ispunjenog zelenilom. Iz tog razloga, vila je organizovana „na lakat“, po ugledu na stare, ušorene kuće.

Prizemlje se u potpunosti zatvara prema ulici, a u punoj meri se otvara prema dvorištu, čime se spoljašnji i unutrašnji prostori međusobno prepliću. Prožetost otvorenog i zatvorenog prostora zahtevao je primenu velikih prozorskih otvora, prepusta i erkera, ali i nestandardni konstruktivni sistem. Konstruktivni  sklop je mešovit, a sastoji se od zidanih zidova, armirano-betonskih grada i stubova.

Povučenost u odnosu na regulaciju i zatvaranje prema javnom prostoru, te specifični „L“ oblik omogućili su visok stepen privatnosti, ali i spektakularne vizure. Kolski pristup i popločani plato sugestivno razdvajaju objekat od ulice. Stepenovanje volumena, kao i korišćenje različitih sistema održive arhitekture neke su od ključnih karakteristika koje ovu kuću čine senzacionalnom.

Jedna od glavnih žela klijenta bio je veliki, besprekorno dobro održavan travnjak; foto: Relja Ivanić
Stepenovanje volumena ovoj vili daje prepoznatljiv izgled; izvor: Studio OBE

Fasada od grafitnog stiropora

Fasada je urađena po principu kontaktne (demit) fasade, sa debelim slojem termoizolacije od grafitnog stiropora. Fasadnu stolariju čine aluminijumski prozori i vrata (sa profilima sa prekinutim hladnim mostom), zastakljenim troslojnim staklom sa niskoemisionom folijom. Korišćena je Alumil spoljna stolarija u crnom tonu. Sa spoljne strane postavljeni su brisoleji nemačke firme Warema.

Tretman fasade podeljen je u dve jasno razdvojene celine. Postament objekta čini prizemlje obrađeno u natur betonu, dok su volumeni na spratu snežno bele boje. Drugi sprat je povučen, a njegovo prisustvo se tek nazire. Ograda je staklena i gotovo neprimetna.

U oblikovanju dominiraju ravni krovovi, linije okapnice i snažni horizontalni potezi. Kako su površine pod ravnim krovom značajne, one su prekrivene belim kamenom kako bi se unutrašnjost zaštitila od pregrejavanja. Bela fasada ima istu ulogu, kao i duboke terase koje štite unutrašnjost od direktnog upada letnjeg sunca.

Fasada je demit, spoljna stolarija Alumil, a brisoleji nemačke firme Warema; foto: Relja Ivanić

Bogatstvo rekreativnog sadržaja

Želja klijenta bila je maksimalni dimenzioni komfor svih zona, dobra prirodna provetrenost i njihova orijentacija i otvorenost prema dvorištu. „Formiranjem zona koje se nadovezuju jedna na drugu, došlo se na ideju o formiranju duple visine iznad prostora trpezarije i puštanju osvetljenja u centralni deo objekta“ – navode projektanti. Ne samo da dominira svojim volumenom, već je atrijum i orijentacioni centar kuće, dok prostoru trpezarije daje svečan i reprezentativni karakter.

U funkcionalnom smislu, objekat se sastoji iz dnevne i noćne zone koje su međusobno povezane jednokrakim drvenim stepeništem. Dnevnu zonu čini ulazni deo, dnevna soba, kuhinja i trpezarija, kao i bazenska prostorija sa saunom i delom za masažu. Sadržaji se nižu linijski, sem bočnog rekreativnog krila.

Na spratu su odvojene spavaće sobe za decu i roditelje, a tu se nalazi i odvojeni radni kutak. Povučeni sprat (drugi nivo) namenjen je za teretanu i preko njega se izlazi na krovnu terasu, na kojoj su smešteni solarni paneli. U podzemnoj etaži nalazi se garaža, kao i prateće prostorije – vešeraj i mašinska soba.

Zatvoreni bazen u vizuelnoj je vezi sa dvorištem; foto: Relja Ivanić

Dnevnu zonu čini ulazni deo, dnevna soba, kuhinja i trpezarija, kao i bazenska prostorija sa saunom i delom za masažu.

„Enterijersko uređenje vođeno je idejom o pružanju maksimalnog komfora korisnicima, praćeno dizajniranjem određenih elemenata u prostoru – komoda u dnevnoj sobi, police, prostor kamina“ – navode Kavran i Pantović za naš portal.

Od materijali u enterijeru zastupljeni su prirodno i bojeno drvo, prirodni mermer, keramika, teraco, te velike bele površine. Najveći broj komada nameštaja dizajniran je po meri od strane arhitekata, dok je korišćeno i nekoliko dizajnerskih brendova.

U enterijeru dominiraju velike, bele površine; foto: Relja Ivanić
U enterijeru dominiraju velike, bele površine; foto: Relja Ivanić
Trpezarija ima duplu spratnu visinu; foto: Relja Ivanić
Trpezarija ima duplu spratnu visinu; foto: Relja Ivanić

Kao na plaži u Rovinju

Prema natkrivenoj terasi nalazi se Umomuku outdoor kolekcija – sofa, fotelja i stočić, čiji dizajn potpisuje hrvatski 3LHD. Radi se o nameštaju za udobno i opušteno sedenje nenametljivog i jednostavnog dizajna. Izvorno je dizajniran za plažu Mulini u Rovinju, a naknadno redizajniran za svakodnevnu upotrebu.  Ležaljka Umomoku deo je prostorije s unutrašnjim bazenom. Fotelja Oblique sastavni je deo dnevnog boravka, a Monk barske stolice deo su trpezarije.

Otvoreni i zatvoreni prostor u prizemlju međusobno se prepliću; foto: Relja Ivanić
Umomoku garnitura; izvor: PROSTORIA
Umomoku garnitura; izvor: PROSTORIA
Umomoku ležaljka; izvor: PROSTORIA
Umomoku ležaljka; izvor: PROSTORIA
Umomoku fotelja; izvor: PROSTORIA
Umomoku fotelja; izvor: PROSTORIA

Osavremenjena tradicija

“Arhitektura je maestralna, precizna i veličanstvena igra prostornih celina objedinjenih svetlošću” – govorio je Le Korbizje. Vodeći se ovim načelima, Jasna Kavran i Ksenija Pantović iz studija OBE su jednom tradicionalnom tipu vrhunskog stanovanja kao što je „kuća na lakat“ dale nov život i značenje kroz smelu igru volumena, stambenih i rekreativnih sadržaja.

Kao lađa usidrena u luci, K House se nadvija nad glinenim crepovima elitnog, ali po svojoj arhitekturi baš i ne progresivnog beogradskog naselja. Ovaj projekat skreće pažnju da se pojam „luksuzno“ (pre svega) odnosi na dimenzionalne i prostorne standarde, dobru osunčanost, orijentisanost i provetrenost prostorija, te primenu trajnih materijala i obnovljivih izvora energije, integracije rada, rekreacije i stanovanja.

Arhitektice Kavran i Pantović na svež i kreativan način uvode tradicionalne teme u život beogradske elite

Faktografija:

  • naziv objekta: K House
  • mesto: Senjak, Beograd
  • autori projekta: Studio OBE
  • autorski tim: Jasna Kavran i Ksenija Pantović
  • godina projektovanja: 2019.
  • godina izgradnje: 2020.
  • površina: 370 m2 (nadzemno)
  • spratnost: Po(G)+P+1+Ps
  • fotografija: Relja Ivanić

Grafička dokumentacija:

Fotogalerija:

U dvorišnom krilu nalaze se rekreativni sadržaji; foto: Relja Ivanić
U dvorišnom krilu nalaze se rekreativni sadržaji; foto: Relja Ivanić
Zatvoreni bazen u vezi je sa dvorištem; foto: Relja Ivanić
Zatvoreni bazen u vezi je sa dvorištem; foto: Relja Ivanić

Kad ste već ovde…

Postani deo Gradnja zajednice

Najnovije vesti s našeg portala svakog petka u vašem sandučetu.

Dizajn enterijera

Srodni tekstovi

5 komentara

  1. arhitekta

    ovaj projekat je za svaku pohvalu
    bravo za koleginice iz studija OBE!

  2. Milena Pantović

    Sve pohvale za Studio OBE

  3. Nada

    Kuca je zanimljiva, zasluzuje pohvale…..Koliko je opravdano postavljati staklenu ogradu na terasi i ulaznom delu u objejat je diskutabilno…za odrzavanje posebno….

  4. Vesna Marković

    VM.NS
    Poštovana Gradnja – Glasala sam za kuću na Senjaku, sa ocenom 10, pre svega zbog vizuelnog utiska udobnosti i topline za život jedne porodice, prostranost i osvetljenost, pažljivo i funkcionalno osmišljen životni i relax prostor… moderan i savremen dizajn celokupng stambenog objekta.
    Sugestija:
    Pored zatvoreng bazena, sa postojanjem i otvorenog bazena, mislim da bi ocena bila 10 sa *.
    Uz opise i pomenute brendove u tekstu, a radi lične informisanosti, volela bih da postoji spisak prodajnih objekata opremljenosti: nameštajem, karamikom, rasvetovm … kao i nazivi firmi-izvođača radova (Bgd/NS)
    Hvala …
    Želim vam srećan rad u 2021. godini…. uz kreatna druženja i nove teme.

Ostavite odgovor

Obavezna polja *