Otkriveno šta sve predviđa projekat rekonstrukcije Hotela Slavija
Obnovljeni hotel na Vračaru dobiće novu staklenu fasadu, dok će kapacitet biti smanjen na 176 soba, sa većim i komotnijim apartmanima nastalim spajanjem po dve sobe u jednu.
Preduzeće Slavija hoteli d.o.o. podnelo je resornom Ministarstvu zahtev za odlučivanje o potrebi procene uticaja na životnu sredinu za projekat rekonstrukcije beogradskog Hotela Slavija čiji su novi vlasnici IM Matijević.
Zahtev je izradila kompanija Euro Green d.o.o. iz Novog Sada, idejno rešenje projekta arhitekture potpisuje AG-UNS Arhitektonsko-građevinski institut, takođe iz Novog Sada, dok je odgovorni projektant Andraš Lukač, mia.
Pročitajte još na Gradnja.rs:

Bez promena u domenu forme
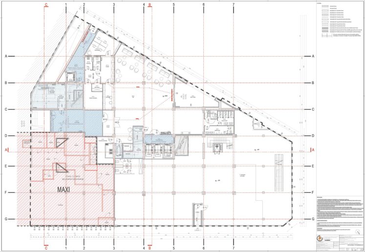
Površina parcele na kojoj je planirana rekonstrukcija iznosi 1.433 metra kvadratna. Projekat rekonstrukcije je rađen na osnovu snimanja objekta prilikom izlaska na teren, s obzirom da arhivski projekat za Hotel Slavija nije pronađen.
Kako se navodi u idejnom rešenju, urbanistička postavka rekonstrukcijom Hotela Slavija suštinski se ne menja. Izmena do koje dolazi jeste dodavanje ulaza u lokal sa zapadne strane iz Makenzijeve ulice. Spratnost (2Po+P+18) kao i gabariti objekta ostaju isti kao i po postojećem stanju.
S obzirom da se gabariti objekta ne menjaju uopšte, objekat se u domenu forme ne menja, već se zadržava već postojeći arhitektonski jezik sa dominantnim i snažnim postamentom i elegantnim vertikalnim reperom u obliku kule.

Sa bočnih strana kule postavljeni su brisoleji, koji svojom promenom u dimenziji poprečnog preseka daju efekat refeljisane površine.
U novoj fasadnoj organizaciji kula je gotovo u čitavom omotaču upakovana u prozirnu staklenu zid zavesu sa brisolejima kao predfasadnim elementima koji služe za smanjenje spoljašnjeg uticaja sunca u cilju poboljšanja energetske efikasnosti kule Hotela Slavije.
Sa bočnih strana (duže strane kule), postavljeni su brisoleji, koji svojom promenom u dimenziji poprečnog preseka daju efekat refeljisane površine. U površinu koji zauzimaju dati brisoleji su istaknuti krugovi kako bi aludirali na kružni tok Slavija, koji je najdominantniji urbanistički element okruženja.
Sa frontalnih strana (uže strane kule) su okačeni brisoleji sa rasvetom, kojima se stvara dodatni kvalitet objekta. Sa zadnje strane kule, kao i u postojećem stanju, najdominantniji element fasade jeste protivpožarno stepenište.
Stepenište je po svom gabaritu i izgledu dominantno, samim tim, sa istaknutom materijalizacijom, ostaje dominantan element na fasadi rekonstruisanog objekta. S obzirom da je spoljašnje stepenište, radi obezbeđivanja zaštite od atmosferskih uticaja uvode se elementi protivkišnih žaluzina koji su dodatni estetski element zadnje fasade objekta.

Spajanje po dve sobe u jednu
Prema novom rešenju, na tipskoj etaži se nalazi 11 hotelskih soba sa zasebnim mokrim čvorom, čime se kapacitet hotela smanjio za gotovo duplo sa većim i komotnijim apartmanima spajanjem po dve sobe u jednu. Tipska etaža se ponavlja na 16 etaža, čime dolazimo do brojke od ukupno 176 apartmana.
Postojeći pregradni zidovi se uklanjaju i zamenjuju gipsanim zidovima, tako da neće biti dodatnog većeg opterećenja na postojeću konstrukciju, a sva postojeća stolarija će biti zamenjena novom, navodi se u idejnom rešenju.
Jedan deo mezanina je predviđen za formiranje kancelarijskog prostora za osoblje hotela, recepcija se menja i smanjuje i uz prostor recepcije u holu hotela uvodi se novi javni mokri čvor za posetioce. Takođe, u rekonstruisanom hotelu planirana su i četiri poslovna prostora.
Javni uvid traje 15 dana
Zainteresovani organi, organizacije i javnost mogu izvršiti uvid u sadržinu zahteva, svakog radnog dana od 11 do 13 časova, u prostorijama Ministarstva u Beogradu, Omladinskih brigada 1, kancelarija 424, kao i na veb prezentaciji Ministarstva. Mišljenja na podneti zahtev se mogu dostaviti Ministarstvu u roku od 15 dana od dana oglašavanja.
Grafički prilozi








BuildUp 2025: Konferencija o hotelima
Kako izgleda savremeni hotel – od ideje do realizacije? O tome ćemo govoriti 23. oktobra na konferenciji BuildUp 2025: Horekatura – arhitektura ugostiteljstva, koja će se održati u hotelu Crowne Plaza i okupiti arhitekte, investitore, hotelijere i stručnjake iz građevinske industrije. Tema narednog izdanja posvećena je hotelima – kao tipologiji prostora, investicionom potencijalu i arhitektonskom izazovu.
Prijavite se već danas na www.buildup.rs i ostvarite 10% popusta na early bird ulaznicu. Ponuda važi u ograničenom roku!

Rak rana velikih hotela su podzemne garaže. Pre kupovine Matijević je obećavao čak pet spratova sa garažama, vešerajem i kuhinjom, od toga sada nema ništa sem spajanja dve sobe u jedan apartman.