Kako je hotelu u Bohinju fasadnim omotačem udahnut nov život
Novi vlasnici hotela Bohinj odlučili su se za radikalnu rekonstrukciju objekta, a čitav proces bio je usmeren ka održivosti i energetskoj sanaciji.
Hotel Bohinj, nekadašnji Hotel Kompas, postepeno je građen i razvijan tokom protekle tri decenije i nije se mnogo mislilo o konačnom izgledu objekta. Smešten na visoravni, što mu pruža intimu ali i pogled na Bohinjsko jezero, okolne planine i crkvu Janeza Krstnika, hotel je nedavno doživeo kako konstruktivnu tako i estetsku transformaciju pod budnim okom ljubljanskog biroa OFIS arhitekti.
Osnovni volumen objekta je sačuvan, a dopunjen je novom drvenom strukturom u formi omotača.
Osnovni volumen objekta je sačuvan, a dopunjen je novom drvenom strukturom u formi omotača. Osim što su na ovaj način formirani novi balkonski prostori, kao i forma ukupne mase objekta, drveni okviri pružaju i strukturnu zaštitu od čestih zemljotresa u ovom regionu, kažu arhitekte za ArchDaily.

Dijalog s planinskim vrhovima
U eksterijeru je korišćeno drvo ariša, koje je dalo hotelu prirodan izgled, a fasada koja nosi ulaznu zonu dopunjena je dogradnjom sa većim holom duple spratne visine.
Dvovodni krovovi ostavljeni su u izvornom izgledu i inspirisali su nove trouglaste forme koje stvaraju prijatan dijalog sa planinskim vrhovima u pozadini. Celokupna nova fasada i novi arhitektonski elementi su inspirisani detaljima lokalne arhitekture, kao i lokalnim zanatskim radovima.
Sobe karakterišu dezeni, teksture i nameštaj inspirisan lokalnim zanatstvom.
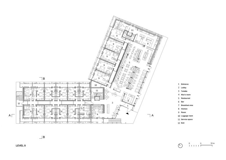
Renovirani hotel sada ima 69 soba, čiji dizajn karakterišu dezeni, teksture i nameštaj inspirisan lokalnim zanatstvom. Sobe su različitih veličina i organizacije, te postoje dvokrevetne, trokrevetne kao i porodični apartmani sa panoramskim prozorima i balkonima.
Hodnik kao toplar
Hodnici hotela su veoma zanimljivi i karakteristični prostori hotela. Oni nude jedinstveno iskustvo koje je inspirisano šetnjom kroz bohinjske tradicionalne toplar drvene strukture. Ovi primeri vernakularne arhitekture mogu se i dalje videti u neposrednoj blizini hotela.
Prolazak kroz hodnike hotela nudi gostima posredno iskustvo šetnje kroz ove jedinstvene strukture. Ipak, ovako formirani hodnici nisu samo lepa referenca za dizajn, već i neka vrsta upozorenja, imajući u vidi da svake godine nestane nekoliko primera ova tradicionalne arhitekture, jer se veoma često urušavaju i sami usled neadekvatnog održavanja.
Skladan enterijer
Zajednički prostori u kojima gosti mogu uživati su lobi, restoran i trpezarija za doručak, bistro u retro dizajnu sa tradicionalnom pećkom, a mogu posetiti i malu kongresnu dvoranu i vinoteku.
Pojedine stolice u restoranu napravljene su od recikliranih plastičnih boca.
Sav nameštaj, uključujući stolice, klupe, zavese i tapacirung, kao i rasveta su dizajnirani po narudžbini posebno za ovaj objekat.
Prirodni dizajn
Rasveta u obliku grana pruža prijatnu i intimnu svetlost, dok su neke od stolice posebno usmerene na održivost i izvedene su od recikliranih plastičnih boca.
U čast legendarnog hotelskog mačora
Kako u eksterijeru i u enterijeru primarno korišćeni materijal je drvo ariša, od kog su izvedene zidne i plafonske drvene obloge kao i nameštaj.
U određenim zonama hotela na podu se može videti teraco, koji je izveden od crnog kamena koje dominira u sivim drobljenim stenama. Veliki tragovi crnog kamena, koji vode do ulaza i predvorja hotela, izvedeni su u znak sećanja na čuvenog gospodina Maksa, legendarnog hotelskog mačora, koji je nakon što se prethodni hotel zatvorio radi renoviranja nestao u nepoznatom pravcu.
Refence na Triglav
Grafika koja se može videti na tkaninama, staklu i zidovima hotela predstavlja siluetu četvorice hrabrih ljudi koji su prvi osvojili Triglav, najvišu slovenačku planinu još davnog 26. avgusta 1778. godine.
Hotel sadrži i mali velnes centar sa otvorenim bazenom sa toplom vodom, okružen travnjakom.
Hotel sadrži i mali velnes centar sa otvorenim bazenom sa toplom vodom, okružen travnjakom, dok je stari bazen zamenjen kaminom i prostorom za društvena dešavanja.
Energetska sanacija
Deo obnove hotela je podrazumevao i energetsku sanaciju. Prilikom projektovanja pažnja je znatno posvećena efikasnom korišćenju energije. Toplotne pumpe se koriste za zagrevanje objekta, dok je sva rasveta zasnovana na LED tehnologiji, koja štedi energiju, sa senzorima kako bi se kontrolisalo vreme korišćenja.
Grafički prilozi
Faktografija
- projekat: Hotel Bohinj, Slovenija
- autori: OFIS arhitekti
- površina: 5.800 m²
- godina: 2021.
- fotografija: Ziga Intihar, Ales Gregoric, Andras Boros
















