Haus B: Porodična kuća s lučnim krovom i energetski efikasnim rešenjima
Održiva kuća karakteristična je po oblom simetričnom krovu i izduženoj fasadi čiji oblik diriguje raspored prostorija u unutrašnjosti.
Kuća jednostavnog imena Haus B nalazi se u nekada klasičnom predgrađu Frankfurta na Majni u Nemačkoj izgrađenom tokom 1960-ih. Njena arhitektura koju potpisuje biro one fine day zasniva se na strogo određenim geometrijskim odnosima koji ipak omogućavaju određeni stepen elastičnosti kako bi se odgovorilo na različite zahteve klijenta, lokalnih propisa i specifične lokacije za izgradnju.
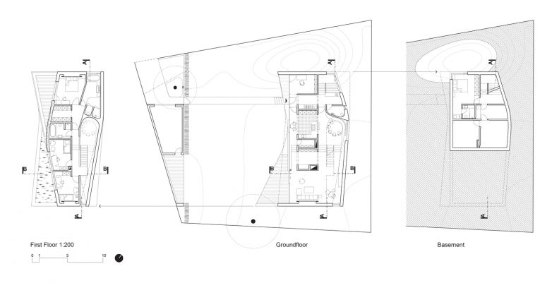
Objekat se proteže od severozapada ka jugoistoku, zahvaljujući čemu je veći deo placa osvetljen tokom skoro čitavog dana, a bašta zaštićena od ulične buke. Kuća je podeljena u dva sektora, odnosno na dva nivoa, a njen najzanimljiviji deo je lučni krov koji najvišu tačku dostiže u samom centru kuće.

Lučni krov omogućio je stvaranje nesvakidašnjih oblika prostorija u enterijeru.
Obli simetrični krov je omogućio i nesvakidašnji oblik prostorija u unutrašnjosti. Sa druge strane, donji sektor kuće ima potpuno ravan moderan krov sa terasom.
Dugačka i obla
Dugačka južna fasada takođe je blago zaobljena, što pruža zanimljiv vizuelni efekat kada se kuća posmatra iz daljine. Ova zanimljiva rešenja uspela su da vizuelno povežu kuću sa njenom velikom baštom. Deo za sedenje tako je povezan sa isturenim delom fasade na istočnoj strani.
Neobična geometrija ove izdužene kuće uslovila je i raspored prostorija u enterijeru. U donjem delu tako se nalaze zajedničke prostorije otvorenog plana. Sobe među kojima su dnevni boravak, biblioteka, trpezarija i kuhinja nadovezuju jedna za drugu, a povezuje ih isti dugački stakleni zid.

U centralnom delu nalazi se i dominantno stepenište koje vodi do soba na spratu. Pomenuta krovna terasa nalazi se ispred dečjih soba.

Toplotna pumpa i solarni paneli
Haus B je osmišljena tako da zadovolji zahteve najnovijih nemačkih propisa o štednji energije (EnEV). Zbog orijentacije ka jugu i jugo-zapadu, moguće je koristiti solarne panele dugo i tokom hladnih dana, dok zakrivljeni krovovi i podesive platnene žaluzine štite unutrašnjost od sunca tokom leta.

Grejanje i topla voda dobijaju se preko toplotne pumpe na koju su priključeni i solarni paneli.
Pri izgradnji kuće korišćeni su mahom izdržljivi materijali. Sve spoljašnje zidne i krovne površine sadrže do 20 centimetara debele slojeve toplotne izolacije, a pritom i svi prozori imaju minimum dupla stakla. Grejanje i topla voda dobijaju se preko toplotne pumpe na koju su priključeni i solarni paneli.

U nastavku pogledajte i originalne planove kuće i svih njenih sektora:








Fotografije: Roland Borgmann; Projekat i crteži: one fine day
Kad ste već ovde…




