Green Line: Kompleks na mestu IMT-a sa kulom visine 160 metara (video)
Novi Beograd dobija naselje kojim će osim visinskih orijentira dominirati i 800 metara dug zeleni koridor sa parkovima, teretanama i fontanama.
Kada su Le Korbizjeove ideje Atinske povelje počele da se realizuju u Jugoslaviji, njegovi projekti za tromilionski grad i sva druga slična arhitektonsko-urbanistička rešenja, bila su primarni uzor našim arhitektama.
Nekoliko generacija domaćih arhitekata odrastalo je uz geometrizovane urbanističke strukture i vedute na crtežima i maketama, u kojima su dominantne pozicije zauzimali kartuzijanski poslovni neboderi, a okruživala ih višeporodična stambena naselja.
Nažalost, ove ideje samo su delimično razvijane na prostoru novobeogradskih blokova, gde su nekoliko decenija građene isključivo stambene strukture, pretvarajući Novi Beograd u gigantsku, bezsadržajnu spavaonicu. Tek početkom 2000-ih, započinje nova etapa u razvoju drugog urbanog jezgra naše prestonice.
Arhitekte započinju da razbijaju arhitektonsko-urbanističku monotoniju i uvode novi sadržaj, kako bi svaka mikro-lokacija imala što više potencijala za samoodrživo stanovanje, poslovanje i kulturno-edukativni sadržaj. A blok (Blok 67a) i West 65 (Blok 65), dali su ključne smernice u daljem razvoju i oblikovanju savremenog novobeogradskog urbanizma, koji je prepoznat i od strane njihovih novih stanovnika.
Iz beogradskog biroa ZAP, koji je iznedrio upravo koncept A bloka, dolazi nam novi arhitektonsko-urbanistički projekat, koji svojim konceptom pretenduje da Le Korbizjeove utopijske ideje materijalizuje u estetsku i funkcionalnu realnost.
Srodni članci na portalu Gradnja:
Urbanistička analiza
Područje bivše fabrike IMT-a prepoznato je u GUP-u Beograda i Planu generalne regulacije kao jedino preostalo za značajnu organizovanu izgradnju na teritoriji Novog Beograda i za grad Beograd predstavlja izuzetan prostorni, funkcionalni i investicioni resurs.
Rad na master planu kompleksa IMT u Bloku 64 započet je na inicijativu vlasnika lokacije, kompanije ABL Solvent d.o.o. iz Beograda, kako bi se sagledali potencijali lokacije koja obuhvata katastarsku parcelu 2908 KO Novi Beograd, i površini od 35,8 hektara i definisalo preliminarno urbanističko-arhitektonsko rešenje, čiji će se rezultati implementirati u plan detaljne regulacije.
Prema planu generalne regulacije, veći deo prostora parcele obuhvata stanovanje kao osnovnu funkciju, ali i sve druge kompatibilne funkcije, koje prirodno nadopunjuju stanovanje – dečije ustanove, škole, zdravstvene ustanove, prodavnice i drugi manji lokali čija namena odgovara primarnoj funkciji stanovanja. Segmenti parcele, koji izlaze na ulice Jurija Gagarina i Egipatsku (nekadašnja Zemunska), pripadaju zoni mešovitih gradskih centara, gde su predviđeni poslovni objekti više spratnosti.

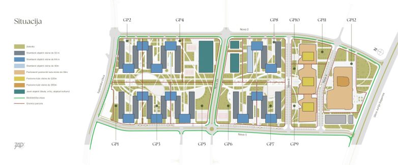
Autori su odlučili da podele ovu veliku parcelu na četiri nezavisne celine – blokove, koje bi adekvatno funkcionisale sa svojim različitim sadržajem.
Autori urbanističkog rešenja su arhitekte Jelena Stojkov i Bojan Zabukovec, dok su autori arhitektonskog rešenja pored potonjeg i Nebojša Petković i Tamara Popović. Najpre su odlučili da podele ovu veliku parcelu na četiri nezavisne celine – blokove, koje bi adekvatno funkcionisale sa svojim različitim sadržajem.
Na taj način, dobijeni su blok 1 – oko 11,4 ha, blok 2 – oko 7,2 ha, blok 3 – oko 3,5 ha i blok 4 – oko 3,8 ha. Da bi infrastrukturna funkcionalnost bila na najvišem nivou, predviđeno je povezivanje ulica Jurija Gagarina i Egipatske dvema novim saobraćajnicama, sa radnim nazivima Nova 1 i Nova 2, dok bi između blokova takođe bile prosečene tri manje saobraćajnice, sa radnim nazivima Nova 2a, Nova 3 i Nova 4.
Velika opterećenost novobeogradskih saobraćajnica i nedostatak parking mesta, uslovili su da širina ulica Nova 1 i 2 bude između 31,5 i 34,5 metara, sa dve kolovozne trake, biciklističkom stazom, trotoarima, zelenim pojasom i parking mestima, dok bi ulice Nova 3 i 4 imale širinu od oko 23 metra, sa obostranom parking zonom, trotoarima i zelenim pojasom.
Pored uličnog, predviđeno je i parkiranje u podzemnim garažama svih stambenih i poslovnih objekata.

Primarni koncept projekta Green Line
Polazeći od sveobuhvatnog sagledavanja prostora, njegovih razvojnih mogućnosti, konteksta stambenog okruženja, potencijala da unapredi lokalni ambijent i upotpuni siluetu Novog Beograda formirano je rešenje koje prostorno, funkcionalno, ekološki i estetski povezuje postojeći ambijentalni karakter stambene izgradnje u zapadnom delu i započetu transformaciju privrednih kompleksa u komercijalne i stambene sadržaje, u istočnom delu lokacije.
Ne želeći da se multiplikuje arhitektura organizovane stambene izgradnje bloka 64, a ni da se ponovi organska, spontana forma nastalih blokova na istočnoj strani kompleksa, ponuđeno je rešenje uredno organizovane suprastrukture sa izraženom organskom formom zelenila i parternog uređenja.
Zapravo, „landmark“ prostora je zeleni koridor, koji se u dužini od 800 metara proteže od Egipatske ulice do ulice Jurija Gagarina, varirajuće širine od 20 do 50m i završava se u zoni komercijalanih objekata izrazite visine, koji će definitivno unaprediti siluetu Novog Beograda.

Koncept čine dva niza stambenih objekata koji meandriraju kroz blokove 1 i 2 i čine nastavak stambenog okruženja.
Ono što je pozitivna strana ovog koridora jeste da je isti u startu zamišljen kao parkovska celina, dodatno oplemenjenog sadržaja u vidu dečijih igrališta i sportskih terena, što nije bio slučaj sa pejzažnim strukturama starih blokova iz 60-ih i 70-ih godina, koji su završili kao zapuštene livade ili kao uzurpirano građevinsko zemljište. Jedini propust kod zelenog koridora jeste njegov prekid na ulici Nova 2a, ali i on može biti adekvatno rešen izgradnjom jednostavne pešačko-biciklističke pasarele, kako bi se kretanje pešaka i biciklista (često dece) nesmetano odvijao duž dva stambena bloka.
Koncept čine dva niza stambenih objekata koji meandriraju kroz blokove 1 i 2 i čine nastavak stambenog okruženja. Orijentacija stambenih objekata je severozapad-jugoistok, odnosno jugozapad-severoistok. Koncept stambenog meandra osmislio je upravo Le Korbizje, a naše arhitekte uspešno implementirale u ranim fazama razvoja Novog Beograda.
Međutim, ovaj koncept sada je uspešno razrazđen i u uslovima privatnog investicionog kapitala, koji zahteva veću zauzetost, odnosno objekte više spratnosti, kako bi potencijali parcele bili što bolje iskorišćeni.

Uži i viši objekti (do 64m), postavljeni su po obodu i po unutrašnjoj zoni blokova, dok su duži i niži objekti (do 32m) pozicionirani su tako da formiraju unutrašnja dvorišta.
Arhitekte su odlučile da uže, ali više objekte (do 64m), postave po obodu i po unutrašnjoj zoni blokova, kako bi svojim siluetama što manje bacali senku na ostale objekte. Duži, ali niži objekti (do 32m) pozicionirani su tako da formiraju unutrašnja dvorišta, koja imaju ulogu parkovskih mikrocelina, a međusobno su povezani manjim prolazima. Ovakav ritam formi odlično je usklađen sa prepoznatljivim arhitektonskim potpisom, koji je biro Zap već ostvario na A bloku, kompleksu Lastavica i kompleksu Square 43.
Velika površina parcele i veći broj stambenih jedinica, uslovio je da se u planu detaljne regulacije predvidi i jedna osnovna škola, u okviru bloka 1, jedan vrtić, u okviru bloka 2, ali i da se u tri stambene jedinice, unutar samih meandara, pojave tri manje predškolske ustanove, kao dodatni kapaciteti u prizemnim etažama objekata. Takođe, u okviru bloka 2, predviđen je i jedan manji objekat isključivo kulturnog sadržaja, a čija će konačna funkcija biti naknadno određena.
Poslovne kule kao vizuelni reperi
Pažljivo osmišljenom urbanističkom strukturom, arhitekte su saobraćajnicama i prostornim dispozicijama, odvojili poslovne blokove 3 i 4 od stambenih. Time je omogućeno da dva sadržaja nesmetano funkcionišu i da se međusobno ne preklapaju, to jest ne ugrožavaju.
To je veoma važno ako na kraju čitavog kompleksa imamo dve zasebne celine, blok 3 sa tri manje poslovne kule koje su visine između 112 i 120 metara i blok 4, koji gleda na ulicu Jurija Gagarina, sa glavnom poslovnom kulom, visine do 160 metara.
Intenzitet saobraćaja i protok ljudi, zaposlenih u ovim poslovnim objektima, nalažu da isti bude jasno odvojen od stanovanja, koji poseduje potpuno drugačiju socijalnu strukturu i dinamiku funkcionisanja.

Pozicija glavne poslovne kule, koja bi izlazila na ulicu Jurija Gagarina, njena forma i arhitektura, usloviće da se ista pozicionira kao novi vizuelni reper Novog Beograda.
Urbanističko-arhitektonska struktura poslovnih kula, poprilično je unikatna, jer do sada nije postojala inicijativa nekog domaćeg ili stranog investitora, koju bi ispratilo odgovarajuće prostorno-arhitektonsko rešenje, a koje bi se našlo u rangu sa navedenim.
Tri manje kule poseduju kubičnu formu, kojoj je suprotstavljena zakrivljena forma centralne kule. Oba tipa kula poseduju fasadu u vidu kompleksne staklene opne, koja je na oba tipa kula drugačije „zasečena“, čime su autori uspostavili određenu dinamiku i poigrali se sa otvorenim i zatvorenim površinama fasadnog platna.
Pozicija glavne poslovne kule, koja bi izlazila na ulicu Jurija Gagarina, njena forma i arhitektura, usloviće da se ista pozicionira kao novi vizuelni reper Novog Beograda.
Blizina drugih novobeogradskih centara (oko 1 do 3km) i starog beogradskog jezgra (oko 5km), kao i veoma stručno rešen urbanizam, ovo naselje postavlja u sam vrh prestižnih, kako stambenih tako i poslovnih lokacija. Ono što je nekada posmatrano kao utopija nedovršenog modernizma, postala je realnost savremene arhitekture.
Grafički prilozi
Foto-galerija






pa kako pa šta? pa ja ne prepoznajem gde je ovo života mi, a ja tu blizu živim, pa gde će svi ti ljudi, pa lady-b taman kupila pet spratova u novom reperu west65 kad ono nova kula novi reper, pa dajte ljudi da prvo zapamtim ovaj od juče reper inače kod delte sve zgrade polako tonu, sležu se, ljudi moji sve je ovo na pesku jel to neko pominje?
Ne pominje niko nista , to je savremena gradnja.moze i na pesku i na vodi ,….
Neka hvala ,ziveli nam blokovi 64,…..61 zivela stara gradnja firmi Trudbenik,Ratko Mitrovic , Rad , Energoprojekt
Pre svega, te firme koje pominjete su imale ozbiljne strucnjake, iskljucivo su radile po projektu, sa svim mogucim (ne-politickim) dozvolama i proracunima. Pogledajte malo sta se desava sa novosagradjenim zgradama. Ili to ne zelite da vidite?
Krljaj samo kvadrate i peri pare, a posle „drzi bure vodu dok majstori odu“. Da li je neko razmisljao o kapacitetu: vodovoda, kanalizacije, saobracajnica, parking mesta itd.? Niko naravno, samo „u se, na se i poda se“. To je arhitektura danas.
Naravno da se očekuju negativni komentari na ovaj projekat… u pripravnosti smo već godinama, a pokazalo se i s razlogom. Počinjemo – 3,4, sad!
Hajde da probamo da izuzmemo sve ono što smo i očekivali – prevelika gustina, prevelika spratnost na već opterećenu infrastrukturu Novog Beograda. To je sve očekivano. Nije predstavljeno u članku koji prostor zauzimaju podzemne garaže, ali s obzirom na prevelik broj stanova verovatno celu površinu lokacije? Šta će stvarno moći da se posadi i opstane u ovoj predstavi zvanoj Green line? Sigurno ne ono što je dato u 3D. Evo sinoć smo imali ogromnu količinu padavina… gde će završavati ta voda pošto neće biti zelenih površina da je upije? Da li ima i mrvice svesti o toplotnim ostrvima? Pa naravno da ne.
Kad se kompleks gleda van konteksta možda bi neko i rekao da je urbanizam kvalitetan zbog središnje zone u odnosu na rešenja koja smo navikli da gledamo poslednjih godina, ali u kontekstu teško. Drugi čudan momenat jeste blokiranje te zelene linije i strujanja vazduha ka Savi sa ne 1 već 2 kule. Svi znamo zašto su ikone brutalizma u komšiluku, Panonski jedrenjaci , postavljeni uzdužno… baš iz tog razloga. Ali mora da vetrovi drugačije danas duvaju. Zato su možda projektanti datog rešenja rešili da naprave džepove na meandrima koji se završavaju 20tospratnicama? Kako će tačno strujati vazduh?
I kao finalna kritika, a iz konteksta nasleđa jako bitna, mada opet jasno je kako se prema nasleđu odnosimo, jeste potpuni izostanak uzimanja u obzir urbanističkog rešenja blokova 61, 62, 63 i delom 64, njihove spratnosti i pozicija objekata. Nov kompleksa će ih nadvisiti, i objekti su potpuno suprotno postavljeni, a središnja osa duž Japanske i Evropske ulice prekinuta.
Kvalitet arhitektonskih rešenja nema potrebe komentarisati.
Hoćete li opet da se pitate zašto svaki nov projekat nailazi na kritiku stručne i nestručne javnosti? Hoćemo li pomenuti i već nepodnošljive saobraćajne gužve ka tom delu NBG-a? Hoćemo li pomenuti pokušaj da se u okviru starih Savskih blokova guraju potrebne javne funkcije koje nisu našla svoje mesto u ovim kompleksima da bi investitori imali što više prostora za izgradnju? Hoćemo li pomenuti da se ne radi ništa na poboljšanju infrastrukturalnih kapaciteta? Mi hoćemo, a investitori i vlasti koje im to omogućavaju će se smeškati.
Jel se ovo uopste moze nazvati arhitekturom? Estetika mozda prihvatljiva za period tranzicije, ali davno prevazidjana i nikad privlacna.
Konacno Novi Beograd raste u visinu ?
Ovo je užas ko polaže pravo da gradi kule na mestu gde treba da bude park po uzoru na central park u Njujorku… taj zeleni koridor brojaće niz od 200 dekorisanih stabala visine do pet metara.. da bar ostane ovako kako je sada, to bi bilo daleko više zelene površine od ovog predviđenog nakaradnog arhitektonskog zločina. Ujedno sve će to biti rušeno do kraja ovog veka kad se ustanovi da niti je bezbedno niti zdravo živeti u toplotnom ostrvu sa najzagađenijim vazduhom u Evropi. Priča o tome da Novi Beograd ima kulturno-obrazovni program ima i poslednji put je izgrađen u vidu bioskopa na fontani u bloku 1, koji ne radi, kao ni biblioteka.. i to pre 45 godina.. sve drugo je građeno u privatnoj režiji Delte ili Ušća. O pozorištima, parkovima i igralištima ništa.
Projekat koji je ovde predočen i tekst kojim se opisuje ( spisak kepih želja ) šta je ideja – koncept navedenog prostora NEMAJU VEZE JEDNO SA DRUGIM ! Ovo je rekao bih , najjadnija faza investitorske gradnje u Bgd ! Ovo nema veze sa idejom da su ljudi bitni , ovo veze nema sa okruženjem ( čak ni sa blokovima u ovom delu N.Bgd – a ) … ovo je totalni raspad sistema – i cela “ tekstualna akrobatika “ da se ovo predstavi kao nešto osmišljeno i stručno promišljeno NE PIJE VODU !
OVO JE STRUČNO REČENO = KATASTROFA
Naš Beograd sve ružniji i odvratniji. Samo ću reći – ???????
Neprirodno je raditi i živeti na 150 visine. Totalno ludilo sadašnje vlasti a mislim i neznanje
Beograd je odavno prenaseljen. Još pre 20 godina sam slušala pametnog čoveka koji je rekao da ne postoji infrastruktura za više zgrada, stanovnika i vozila. Ali kad se radi na silu onda se takve činjenice ignorišu. Da li neko ko odlučuje o bilo čemu u ovom gradu i državi zna tj vidi kada padne malo jača kiša da se fekalije izlivaju iz šahtova po ulicama. Dobićemo koleru, ali ćemo zato imati kule do nebesa.
Arhitektura je nauka. Kada nešto projektuješ i gradiš ima milion parametara i pravila koja mora da ispoštuješ. Kompletna nova gradnja u Beogradu je za kvadrat više. Nabijaju se zgrade i kompleksi gde im nije mesto. Gospodo, imate livade iza Borče, Surčina, Čukarice pa širite grad.
Šta 160 metara?160 kilometara dame i gospođo…
Lično mi se ne dopada da se grade kule, i to čak 4 preko 100 m visine na malom prostoru, Pored toga i predviđene stambene zgrade su vrlo visoke, posebno one od 64 m.
Biće sve prenatrpano i preveliko opterećenje saobraćajem, gde će gužve koje su već sada velike biti još veće, i onemogućavaće protok vozila prema Dr Ivana Ribara.
Bilo bi dobro da se novo rešenje nadoveže na ul. Japansku i Evropsku, i zgrade formirati u skladu sa tim.
POSECI DRVO ZGRADU POSADI!!!
Zanimljiv koncept.mada bilo bi još lepše i modernije da izgrade klaster od 10-ak nebodera na jednoj strani a a ostatak pretvore u pravi park-šumu.
Po meni jedina mana projekta je mali broj kula i nedovoljna visina glavne kule. Po meni glavna kula bi trebala da bude makar 250 m visoka (idealno ka 300 m), dok bi ove dodatne kule trebalo da budu izmedju 150-200 m.
Takodje stabeme zgrade bi trebalo da budu visinom od 15 do 35 spratova (recimo do 120 m visine) i tada bi konacno dobili objekte koji bi zaklonili blokove koji su simbol 80ih godina gle izgradnje i 90ih godina prodadanja
Pogotovo mi se ova ideja svidja sto je jako blizu blokova, sto ce sigurno usloviti ljude koji vise ne zele da zive u blokovima, a pri tome imaju mogucnosti, da i dalje zive u kraju, ali u fensi zgradi i fensi stanu, sto mislim da je odlicna opcija.