Dva u jedan: Obrazovni kompleks na obali Južne Morave
U centru male opštine Doljevac, na mestu montažne barake locirane uz staru školsku zgradu, nastao je obrazovni kompleks sastavljen od vrtića i školske zgrade.
Projektni zadatak i zahtevi investitora bili su kreiranje „Obrazovnog kompleksa“ koji bi sadržao prostor za predškolsku ustanovu i srednju stručnu školu na mestu pređašnjeg objekta predškolske ustanove “Lane”.
Specifičnost ovog projekta bila je potreba da se dve međusobno nezavisne celine integrišu u jedinstven objekat i zadovolje svi zahtevi koje definišu potrebe obrazovanja obe grupacije.
Forma dvojnog objekta
Kako bi uskladili ove celine sa svim potrebama i različitostima, arhitekte iz projektnog biroa Kapaprojekt odabrali su da kroz formu dvojnog objekata iznesu ovaj zadatak, pri čemu se sadržaji ni po čemu ne bi ugrožavali. Pored toga, cilj je bio implementirati savremenu arhitekturu u ruralni ambijent, i izgledom i sadržajem unaprediti naselje i kvalitet života u specifičnoj sredini jedne male opštine koja se intenzivno razvija.
“Ideja je bila stvoriti jedinstvenu strukturu sa suptilnim naznakama razlika u sadržaju. Glavna, ulazna fasada dela objekta u kome je smešten vrtić, razigrana je linijskim panelima u različitim nijansama kako bi se naznačilo inspirativno okruženje za najmlađe i vizuelno akcentovao sadržaj. Naglašavanjem volumena određenih učionica u vidu izbačenih kubusa, stvorili smo odnos negativnog i pozitivnog prostora koji uobličava kontinuirana opna u drvo dekoru zakošena u jednoj ravni.” – ističe za naš portal Aleksandar Stojanović, jedan od autora.
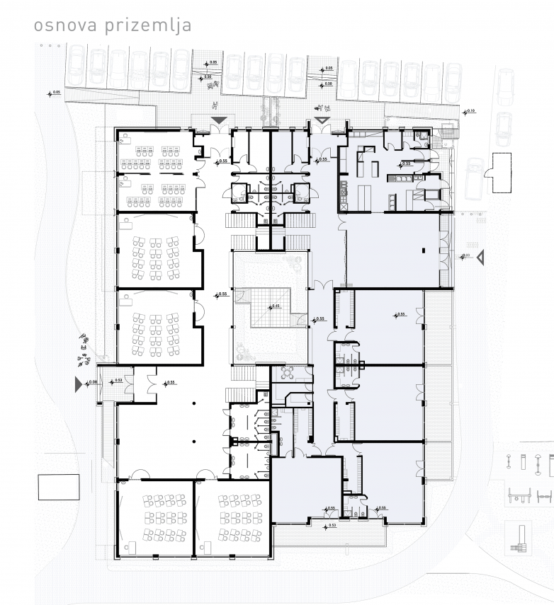
Centralni zeleni atrijum omogućava „dubinu“ osvetljenja, provetravanje i lepši ukupni ambijent kompleksa.
Novi objekat ima kapacitete i sadržaj u skladu sa propisima za ovu vrstu objekta, savremenim pedagoškim trendovima kao i tekućim i perspektivnim potrebama investitora. Definisan je broj grupa dečijeg vrtića i broj klasičnih i specijalizovanih učionica srednje škole. Predviđen je i jedan auditorijum za 41 osobu za predavanja, ispitne testove, obuku nastavnika i slično. Osim prostorija namenjenih obrazovnim funkcijama, projektovane su potrebne komunikacije, administrativne i prateće tehničke prostorije.
Objekti funkcionišu kao dve odvojene celine sa posebnim ulazima. Jedini segment koji objedinjuje objekte, osim opštih pristupnih saobraćajnica i konstrukcije, jeste centralni zeleni atrijum sa kontrolisanim pristupom, koji omogućava „dubinu“ osvetljenja, provetravanje i lepši ukupni ambijent kompleksa.
Akustika i vinil
U učionicama i ostalim prostorijama za boravak dece u kojima je neophodno prigušenje zvuka, postavljen je spušteni akustički plafon od armstrong ploča u pravilnim rasterima sa sopstvenom potkonstrukcijom.
U važnijim delovima holova i hodnika, učionicama i dečijim boravcima, postavljeni su PVC vinil podovi u više boja.
Zakošena fasada i naglašavanje konzolnih kubusa
Zbog vrhunskih termičkih karakteristika, kvaliteta završne obloge, estetskog momenta i trajnosti celokupne fasadne konstrukcije, prvi izbor bila je ventilisana fasada u kombinaciji sa demit fasadom.
Obrada fasadnog zida ventilisane fasade je od fiber-hpl fasadnih ploča tipa Trespa, spojena specijalnim fabričkim nitnama na aluminijumsku potkonstrukciju sa ankerima i kotvama. Ispod ploča, nakon postavljanja ankera, postavljena je kamena vuna sa paropropusnom-vodonepropusnom folijom.
Dominantni oblikovni elementi na fasadi su zakošeni zid ventilisane fasade i kubusi učionica koji konzolno prepupušteni daju dodatnu dinamiku izgledu objekta, dok deo objekta u kome je smeštena predškolska ustanova je samo ima mirniji prikaz.
Naglašavanjem volumena određenih učionica u vidu izbačenih kubusa, stvorili smo odnos negativnog i pozitivnog prostora.
Konstrukcija objekta je skeletna, sa armirano betonskim stubovima i gredama, monolitnim međuspratnim pločama od armiranog betona i temeljima-samcima povezanim armirano betonskim temeljnim gredama.
Zbog blizine rečnog toka Južne Morave i tla slabije nosivosti, predviđen je shodno geo-mehaničkom elaboratu adekvatni šljunčani tampon, podložni betonski sloj i dubina fundiranja, koja se primenjuje na ovakvom tlu.
Krov je od čeličnog plastificiranog “samouklapajućeg“ lima na standardnu drvenu konstrukciju-elementi konstrukcije standardnih dimenzija, sa štafnama u oba pravca i kompletnim podaščavanjem.
Grafički prilozi
Faktografija:
- autori: Kapaprojekt
- autorski tim: Aleksandar Stojanović, Vladimir Ivanović, Božidar Koković
- investitor: Opština Doljevac u saradnji sa programom “Evropski progres“
- izvođač: “Ljuba Invest“ Paraćin
- objekat: Obrazovni kompleks “Lane“ Doljevac
- lokacija: Doljevac
- površina: 2.800 m2
- godina projektovanja: 2016.
- godina realizacije: 2019.
- fotografija: Mladen Jovanović
Kad ste već ovde…









