Razigranost i spontanost najmlađih bili su inspiracija za ovaj šatorasti vrtić
Arhitekte smatraju da ovaj objekat nije ustanova u klasičnom smislu, već da predstavlja maštovito oblikovan prostor koji omogućava razvoj dečje kreativnosti.
Jarko obojeni i zakošeni oblici karakterišu novu predškolsku ustanovu u češkom mestu Ričani, jednom od većih predgrađa glavnog grada Praga, a za koju projekat potpisuje studio Architektura.
Dizajn vrtića „Vetrnjik“ zasnovan je na detinjstvu, sa konceptom koji ima za cilj da dočara razigranost i spontanost, pa su se baš zato u projektu našli oblici koji interpretiraju jazbine i šatore.
Pročitajte još na Gradnja.rs:
- Pogled u bolju budućnost: 10 projekata škola i dečjih vrtića u Srbiji i regionu
- Vrtić razigrane forme koji uvažava karakter sremske ravnice

Odsustvo geometrije u dečijem umu
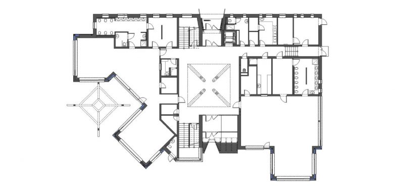
Ova ustanova za najmlađe sadrži vežbaonicu, baštu, igralište i učionice raspoređene po blokovima u različitim bojama, koji se granaju iz centralne bele strukture.
„Osnova nepravilne forme se oslanja na odsustvo geometrije u dečijem umu, kao i na drugačije uspostavljen red, na razigranost i spontanost.“, rekao je za Dezeen direktor studija Architektura David Kraus.

Svaki od blokova jarkih boja sadrži po jednu učionicu, dok se ostali sadržaji nalaze u glavnoj beloj „kocki“.
Arhitekte ističu da su im deca bila inspiracija, odnosno njihove igre, pokreti, vizije, kao i njihove razmere. Dečija spontanost, neorganizovanost, nepredvidivost, čistoća, radoznalost i optimizam uticali su na dizajn.
Svaki od blokova jarkih boja sadrži po jednu učionicu, dok se ostali sadržaji nalaze u glavnoj beloj „kocki“.

Ulaz nalik na svemirski brod
Fasada vrtića koja je usmerena ka ulici ima ulaz koji liči na svemirski brod i ova zona smeštena je uz „živi zid“ za koji se arhitekte iz Praga nadaju da će rasti i dodatno se širiti.
Nakon što prođu ulaz, posetioce i đake dočekuje prostor atrijuma smešten u beloj centralnoj zgradi. U okviru ove strukture smešteni su i kancelarijski prostori i drugi praktični sadržaji.

Zona ispod mreže se može koristiti kao prostor za organizovanje mužičkih ili pozorišnih događaja,
kao i izložbi.
Zanimljiv element u ovoj zoni je i velika mreža koja se oslanja na četiri drvena stabla, a zona ispod mreže se može koristiti kao prostor za organizovanje mužičkih ili pozorišnih događaja, kao i izložbi.
Iz atrijuma se granaju pojedinačne učionice, koje su povezane sa baštom. Prostori učionica, zahvaljujući masivnim prozorima, imaju dosta prirodnog svetla.

Pejzaž dečije fantazije
Prostor igrališta koje je osmišljeno uz objekat vrtića trenutno je u izgradnji, a arhitekte se nadaju da će, kada bude završeno, to biti prostor ispunjen prirodom i pokretač maštovitih igara.
„Najveći napor je bio da se dobro dizajnira dnevni boravak, koji će biti pun zabavnih atrakcija, penjalica, i koji će biti svojevrsni pejzaž dečije fantazije, a možda čak i zabavni park. Hteli smo da napravimo objekat za decu koji nije ustanova, već je razigran i omogućava razvoj kreativnosti“, dodao je na kraju David Kraus.










