Dizajn iz Beograda za vizuelni identitet medijskog brenda Bloomberg Adria širom regiona
Pogledajte kako su prostorni koncept i osnovne vrednosti klijenta prilagođeni različitim organizacijama i veličinama prostora na potezu od Skoplja do Ljubljane.
Projekat dizajna enterijera za uredničke centre Bloomberg Adria, projektovan i realizovan tokom 2021. i 2022. godine u pet glavnih gradova bivših jugoslovenskih republika, ponovo nam u fokus stavlja beogradski studio MAIN architects, koji je svojim pristupom uspeo da izazove veliko zadovoljstvo klijenta krajnjim rezultatom, odnosno izvedenim prostorom.
Da bismo u potpunosti shvatili projektni zadatak, autori navode da je neophodno da razumemo da je Bloomberg Adria regionalna multimedijalna platforma (digitalne i društvene platforme, TV, događaji uživo i slično), koja svojim korisnicima pruža vesti i analize iz oblasti poslovanja, finansija, tehnologija, politike, klimatskih promena i mnogih drugih oblasti.
Na prostoru jugoistočne Evrope Bloomberg Adria će poslovati po licenci svetskog poslovnog lidera u oblasti medija, prestižnog brenda Bloomberg, a program će se realizovati iz više uredničkih centara – regionalni urednički centar u Beogradu, kao i urednički centri u Zagrebu, Ljubljani, Sarajevu i Skoplju.
Pročitajte još na Gradnja.rs:
- Prostor kao igra: Enterijer novosadskog Playrixa za veselu atmosferu stvaralaštva
- Dinamične boje, grafike i skulpture za enterijer Termoventa u kuli Skyline

Transparentnost kao osnovna vrednost
Projektni zadatak je podrazumevao da se osmisli jedinstven vizuelni identitet poslovnih prostora za sve uredničke centre Bloomberg Adria, a istovremeno u skladu sa konceptom, vizuelnim identitetom i poslovnom kulturom Bloomberga kao globalnog brenda.
„Kroz nekoliko faza interakcije sa klijentom, došli smo do toga da je osnovna vrednost koju klijent želi da neguje i istovremeno komunicira ka javnosti transparentnost proizvodnje i emitovanja TV programa i drugih sadržaja“ – kažu za Gradnju iz studija MAIN architects.
Bilo je potrebno osmisliti fleksibilne elemenate koji bi se mogli primeniti u svim uredničkim centarima u regionu.
U prostornom pogledu, kako dodaju, ovo je podrazumevalo otvorenost prostora i veliki udeo zajedničkih prostora u funkcionalnoj organizaciji, a što manje privatnih i izdvojenih/odvojenih prostora koje je trebalo svesti na nivo neophodnosti.
Pored ovoga, projektnim zadatkom je bilo predviđeno da se osmisli jedan ili više prepoznatljivih, ali dovoljno fleksibilnih elemenata koji bi bili u skladu sa poslovnom kulturom Bloomberga i koji bi mogli podjednako uspešno da se primene u različitim prostorima svih navedenih uredničkih centara u regionu.

Fosterove premise primenjene u manjoj razmeri
U skladu sa projektnim zadatakom, beogradske arhitekte su želele da enterijer poslovnih prostora za Bloomberg Adria bude deo „globalne Bloomberg priče“, pa su tako i inspiraciju pronašli kroz istraživanje i analizu poslovnih prostora Bloomberga širom sveta.
„Svakako da je na nas najviše utisak ostavila nova zgrada sedišta i poslovnog prostora Bloomberga u Londonu, koju je projektovao Foster+Partners, a čija izgradnja je završena 2017. godine. Jasno je da je ova zgrada svojim značajem, arhitekturom, površinom od oko 102.000 m² i budžetom, a i u svakom drugom pogledu, na jednom sasvim drugom nivou“– kažu arhitekte.
Ipak, naglašavaju, iz ovog projekta su izvukli nekoliko prostornih i funkcionalnih premisa koje su značajne za globalni brend Bloomberga, a koje su primenljive globalno u manjoj prostornoj razmeri i skromnijem budžetu nego što je to bio slučaj sa Fosterovom zgradom.

Nastojali smo da prostor uredničkih centara Bloomberg Adria oblikujemo kao otvoren i neutralan.
Zgrada sedišta Bloomberga u Londonu oslikava stav Majkla Blumberga, osnivača, da su ljudi najznačajniji resurs i da radni prostor treba da neguje i ohrabruje povezivanje i saradnju među ljudima, podstiče inovativnost i otvorenost, a Norman Foster je rekao da arhitektura zgrade predstavlja otelotvorenje osnovnih vrednosti Bloomberga i specifičan odgovor na njegove potrebe.
„Kod Fosterove zgrade, sa aspekta prostorne organizacije izdvojili bismo tri elementa – spiralna rampa, otvorenost radnih prostora i ‘špajz’. Otvoreni radni prostori po spratovima povezani su centralnim atrijumom i spiralnom rampom, čija velika širina omogućava i podstiče kratke spontane razgovore sa kolegama, pritom ne remeteći protok ljudi“ – objašnjavaju iz MAIN-a.
Otvoreni „špajz“ duple spratne visine, koji je pravi prikaz Bloombergoovog etosa, predstavlja centralni hab zgrade i dinamičan prostor koji povećava mogućnost spontanih susreta, neformalnih diskusija i društvene interakcije; prostor gde se zaposleni i gosti mogu skupljati i sastajati uz grickalice i piće. Ovaj prostor oslikava značaj saradnje i deljenja u Bloombergu.
„Nastojali smo da prostor uredničkih centara Bloomberg Adria oblikujemo u skladu sa ovim konceptima i principima, kao otvoren i neutralan (nenametljiv) koji predstavlja podlogu za saradnju, interakciju i međusobnu povezanost i zavisnost svih korisnika“ – kažu arhitekte za naš portal.

Nova verzija špajza
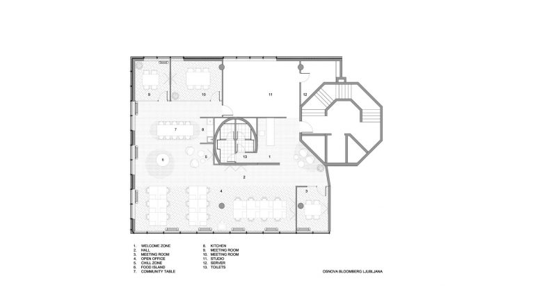
Kao najdominantniji detalj u enterijeru, a ugledajući se upravo na „špajz“ u Londonu, MAIN arhitekti osmislili su svoju skromniju verziju „špajza“ u obliku „food islanda“ – ostrva za hranu koje je inspirisano pijačnim tezgama i njihovom dinamikom – kao i „community table“, tj. veliki trpezarijski sto u sklopu „chill“ zone, kao centralnog mesta za spontane susrete i društvenu interakciju.
„Ova dva elementa oslikavaju kulturu okupljanja, diskutovanja i razmene informacija u dinamičnom i otvorenom okruženju (kao na pijačnim tezgama ili berzi) sa jedne strane i sa druge strane zajedničkih obroka u privatnoj, sigurnoj i otvorenoj atmosferi porodičnog trpezarijskog stola“ – objašnjavaju arhitekte.
Dodaju da se ova dva elementa u nekoj od varijacija pojavljuju u svakom od poslovnih prostora uredničkih centara Bloomberg Adria.
Imajući u vidu da su arhitekte prostor koncipirale kao neutralan, poseban akcenat u koncepciji prostora predstavljaju umetnička dela, a ovaj detalj takođe su preneli iz koncepcije javnih prostora Fosterove zgrade.
„Nažalost, na fotografijama se to još uvek ne primećuje, jer još uvek čekamo da prostor bude oplemenjen umetničkim delima, ali se na 3D vizualizacijama može uočiti njihov uticaj na ukupan doživljaj prostora“ – kažu za Gradnju iz beogradskog studija.

Tipska scenografija TV studija
Karakterističan detalj u enterijeru je i sam televizijski studio, ali učešće MAIN-a u ovom delu se završava na definisanju pozicije studija i obezbeđivanju građevinskih preduslova da se studio sa tehničke i tehnološke strane dovede nameni.
Za taj deo posla (audio oprema, rasveta i slično) bile su angažovane specijalizovane firme. Studio je imao i tipsku, unapred određenu scenografiju, tako da beogradske arhitekte ni u tom delu nisu učestvovale, iako je u jednom trenutku postojala mogućnost da se radi „custom“ scenografija.

Prilagođavanje različitim kvadraturama
Svi urednički centri se nalaze ili su planirani, po fit-out modelu, u okviru savremenih poslovnih centara.
Poseban izazov je bio kako jedinstveni prostorni koncept i osnovne vrednosti Bloomberga kao globalnog brenda koje su implementirane u prostornom konceptu prilagoditi različitim organizacijama i veličinama prostora uredničkih centara u Beogradu (600 m²), Zagrebu (200 m²), Ljubljani (270 m²), Sarajevu (160 m²) i Skoplju (195 m²).
Urednički centar u Beogradu kao regionalni centar prostorno je najveći urednički centar u okviru Bloomberg Adria, smešten je u okviru savremenog poslovnog centra Navigator 2, a arhitekti su na raspolaganju imali otvoren prostor sa velikim staklenim površinama na fasadi, odnosno sa dosta prirodnog svetla, što im je, može se reći, olakšalo posao u delu organizacije i uređenja prostora za koje nisu imali specifične prostorne i tehničke zahteve.

Urednički centar u Beogradu kao regionalni centar prostorno je najveći urednički centar u okviru Bloomberg Adria.
Ipak, kako ističu, ono što je bila olakšavajuća okolnost za ostatak prostora nije i za prostor televizijskog studija, jer on zahteva veću čistu spratnu visinu od one koju su arhitekte imale na raspolaganju, pri čemu je uticaj prirodnog svetla na scenografiju i rasvetu prilikom kontrolisanog snimanja televizijskog programa nepoželjan.
„Ovaj problem smo rešili tako što smo u zoni televizijskog studija demontirali postojeći podignuti pod, kako bismo dobili veću visinu, i montirali blackout zavese kako bismo sprečili nepoželjan uticaj prirodnog svetla na set“ – kažu sagovornici našeg portala .
Slična situacija je, dodaju, bila i u drugim gradovima i uredničkim centrima, pri čemu je dodatni izazov bio uklopiti sve sadržaje potrebne za funkcionisanje televizije i pomenute karakteristične elemente enterijera u okviru još manjih prostora.

Otvorenost i održivost
Kada je reč o načinu upotrebe i izboru materijala, iz studija navode da su i u tom segmentu opet uticale osnovne vrednosti koje neguje Bloomberg kao globalni brend – otvorenost i održivost.
„U skladu sa osnovnim vrednostima Bloomberga i činjenicom da Fosterova zgrada u Londonu ima BREEAM sertifikat i najviše ocene u oblasti održivosti, za Bloomberg Adrija regionalni urednički centar u Beogradu izabrana je savremena poslovna zgrada sa LEED Gold sertifikatom. Za nas kao projektante i kasnije za izvođače to je značilo da su se svi ugrađeni materijali morali da zadovoljavaju LEED standarde što je bio zahtev i standard koji je postavio zakupodavac tj. vlasnik zgrade“ – kažu autori.
Kako dodaju, otvorenost i jedinstvo prostora su želeli da postignu minimalnom upotrebom vertikalnih pregrada, zbog čega je izbor materijala za pod imao važnu ulogu u koncipiranju prostora. Različita materijalizacija podova, različite teksture i boje iskorišćene su da se vizuelno i prostorno razgraniče različite funkcionalne zone i kreira dinamični prelaz između različitih prostora – za komunikaciju, za socijalizaciju, za rad i sastanak.

Podovi koji sprečavaju statički elektricitet
Na odabir različitih tipova podova za pojedine funkcionalne zone uticao je način korišćenja pojedinih prostornih zona (frekvencija prohodnosti) i karakteristike odabranih materijala (trajnost, fleksibilnost popravke, lakoća održavanja, apsorpcija zvuka).
Za ovaj projekat su korišćene tri vrste podova: 1) itison ploče, 2) LVT (luxury vinyl tile) i 3) samorazlivajući antistatički epoksidni pod. Itison ploče dimenzija 50 x 50 cm, u dve različite boje, postavljane su preko postojećeg podignutog poda i korišćene su uglavnom za prostore za rad i sastanke. Itison je korišćen za ove prostore jer dobro apsorbuje zvuk i daje topliji karakter prostoru.
LVT je korišćen u najfrekventnijim zonama prostora, kao što je ulazna zona sa recepcijom i u zonama u kojima postoji veća opasnost od nastajanja mrlja.
Samorazlivajući antistatički epoksidni pod primenjen je u televizijskom studiju. Ova vrsta poda poseduje trajnu elektroprovodljivost i sprečava pojavu statičkog elektriciteta.

Multifunkcionalna rasveta
Jedan od elemenata enterijera kod Fosterove zgrade Bloomberga u Londonu koji im je privukao pažnju jeste poseban dizajn i multifunkcionalnost rasvete koja kombinuje funkcije grejanja, hlađenja, osvetljenja i akustičnosti.
To ih je inspirisalo da u svom konceptu za enterijer regionalnog centra u Beogradu u najfrekventnijim i najbučnijim delovima prostora predvidimo posebno dizajniranu i multifunkcionalnu rasvetu koja pored osvetljenja kombinuje i funkcije prečišćavanja vazduha i apsorpcije zvuka.
„Ovo je bio važan element koncepta, ali smo, nažalost, u kasnijim fazama projekta morali da odustanemo od ovog tipa rasvete kako bismo se prilagodili planiranom budžetu“ – navode arhitekte.

Zvučna odvojenost uz vidljivost i povezanost
Da bi se obezbedio određeni nivo zvučne odvojenosti pojedinih zona, a ipak zadržala željena vidljivost i povezanost, arhitekte su primenile akustičko odvajanje režije od televizijskog studija, na kancelariji glavnog i odgovornog urednika, kancelariji finansijske službe i na tri sale za sastanke. Ove prostorije su staklenim pregradama odvojene od hodnika i na taj način svima vidljive, dok su međusobno pregrađene gipsanim zidovima.
Maksimalna transparentnost postignuta je upotrebom staklenih pregrada sa minimalnom upotrebom aluminijumskih profila od 3 cm (zidni profili) i 4 cm (podni i plafonski profili), sa pripadajućim zaptivnim gumama, pri čemu staklena površina čini 99,90% ukupne površine staklenih pregrada.
Korišćena su dva tipa staklenih pregrada – sa jednostrukim staklom sa 36 dB akustičke zaštite za kancelarije urednika i sa dvostrukim lamerilanim (pamplex) staklom sa visokim stepenom akustičke zaštite od 45 dB za sale za sastanke. Vertikalni sastav između staklenih panela je nevidljiv, bez profila. Staklena vrata sa aluminijumskim ramom su integrisana u okviru staklenih pregrada.

Pozitivne rekacije zaposlenih
Kada je sve završeno i kada su kancelarije useljene, reakcije korisnika prostora su uglavnom pozitivne, pri čemu je ipak postojala određena doza početne sumnjičavosti na sam koncept otvorenosti i povezanosti prostora. Veliki broj zaposlenih je navikao da ima svoju kancelariju, tradicionalno radno mesto.
Ovakav otvoreni koncept prostora je sa njihove strane zahtevao određene korekcije i prilagođavanja nekih njihovih ustaljenih navika u načinu obavljanja posla i ponašanju i komunikaciji na radnom mestu, jer kako zaključuju arhitekte – niko nije presrećan kada mora da menja svoje dugogodišnje navike.
„Na kraju, stvorili smo za naše prilike jedan novi otvoreni i interaktivni koncept televizijskog poslovnog prostora“ – kažu za portal Gradnja iz MAIN architects.
Grafički prilozi
Faktografija
Bloomberg Adria
MAIN architects
Beograd – 600 m2, Zagreb – 200 m2, Ljubljana – 270 m2, Sarajevo – 160 m2, Skoplje – 195 m2
2021–2022.
2021–2022.
Marko Simić

