Hotel, pijaca i novih 6 stambenih zgrada planirani oko Gazele
Beograd na vodi je na korak bliži Beogradskom sajmu jer je ovog puta najavljena izgradnja u blokovima 28, 29a i 30, odnosno preko puta Ložionice.
U toku je javni uvid u urbanistički projekat za izgradnju oko mosta Gazela, kojim je najavljeno još jedno širenje naselja Beograd na vodi.
Obrađivač urbanističkog projekta je IBM Consult, idejno rešenje objekta pijace izradio je studio DA Dizajn arhitektura, dok idejno rešenje hotela i stambeno-poslovnog kompleksa potpisuje firma Arhi.pro.
Odgovorni urbanista je Ivana Stanojević, dia, odgovorni projektant objekta pijace je Jugoslav Janjić, dia, odgovorni projektant hotelskog objekta Dejan Sokolov, a odgovorni projektant stambeno-poslovnog kompleksa je Ivana Milić, dia.
Pročitajte još na Gradnja.rs:

Pijaca sa parkiranjem na spratovima
Pijaca, o kojoj smo ranije pisali, projektovana je kao slobodnostojeći objekat, spratnosti P+5. U okviru objekta predviđeni su pijaca sa lokalima, nadzemna garaža na dva nivoa sa ukupno 192 parking mesta, poslovni deo, te nadzemni deo sa tehničkim prostorijama i skladištima.
Glavni sadržaj u prizemlju čini otvoreni deo pijace i lokali. Kolski ulaz u nadzemnu garažu (i izlaz) obezbeđen je na nivou prizemlja.
Na nivou prvog sprata predviđene su kancelarije, dok je drugi sprat je namenjen garaži sa 86 mesta, dok će treći imati 106 mesta za parkiranje vozila.
Ukupna bruto nadzemna površina objekta iznosi 17.641 m², a projekat potpisuje studio DA Dizajn arhitektura.

Novi hotel u Beogradu na vodi
Hotel sa četiri zvezdice predviđen je u bloku 29 na parceli 48 x 150 metara, a projektovao ga je Arhi.pro.
Glavni ulaz u hotel projektovan je centralno u odnosu na plato na čeonoj fasadi.
Prateći oblik parcele, volumen hotela sastavljen je od dva podužna pravougaona kubusa. Širi volumen je visine P+1, gde su smešteni javni sadržaji hotela, dok je uži volumen visine 6 spratova, gde se nalaze smeštajne jedinice hotela.
Projektovana su ukupno 62 parking mesta, od kojih je 58 smešteno u podzemnoj etaži, dok se 4 nalaze ispred hotela.
Hotelske sobe smeštene su na gornjim spratovima, od drugog do sedmog, povezane sa gostinskim liftovima direktno iz ulaznog hola. Predviđene su ukupno 163 smeštajne jedinice.
Ukupna bruto nadzemna površina objekta iznosi 14.821 m², dok ukupna bruto površina podzemnih etaža iznosi 3.556 m².

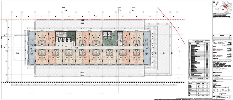
Kompleks sastavljen od šest objekata
Kako se navodi u UP-u, projektovano je šest objekata sa dva zajednička nivoa podzemnih etaža svi spratnosti 1Po+P+9, te objekti B1 i B2, oba spratnosti 2Po+P+8.
Ukupan broj stanova različite strukture u kompleksu iznosi 649. U garaži je ostvareno ukupno 758 parking mesta, od čega je 5% parking mesta predviđeno za osobe sa invaliditetom.
Ukupna BRGP nadzemno za sve objekte u kompleksu iznosi 60.745 m². Ukupna površina podzemnih etaža iznosi 21.143 m².

Primedbe i sugestije do 16. septembra
Zainteresovana fizička i pravna lica mogu tokom javne prezentacije da izvrše uvid u urbanistički projekat kao i da svoje primedbe i sugestije dostave Agenciji za prostorno planiranje i urbanizam Republike Srbije do 16. septembra 2024. godine.







pitanje je dana kada će opkoliti Adu
Meni se ovo đa 🙂 hajde da kazem da je jedina mana, uslovno receno, sto nisu malo vise zgrade, ali obzirom da ce oko sajma biti dozvoljena visina do 120 metara, okej je da izmedju kule beograd ima jedan blok zgrada sa nizom visinom, jer ce potom doci svakako deo sa visim zgradama.
Idealna lokacija za ziveti beogradski san
šta to znači „beogradski stan“
stanovati u jeftinim i loše projektovanim stanovima i zgradama
plaćati nekretninu 4-5x više od proizvodne cene
gledati komšiji u prozor
živeti život stan, kuća, teretana, kafić, restoran
taj san pretvoriće se u komšmar
čim ljudi shvate koje s**** su im uvalili
šta reći?
tonemo